Bildegalleri

EiendomsMegler 1 ved Eystein Wullum har gleden av å presentere Kyavegen 23! (Foto: Julian Nonstad/Nonstad foto)
Persaunet
LYS OG PRAKTISK 3-ROMS LEILGIHET MED SØRVESTVENDT BALKONG | Kjøkken med TG1 | P-plass i kjeller | Nærhet til "alt"
Prisantydning2 250 000 kr
Nøkkelinfo
- Boligtype
- Leilighet
- Eieform
- Andel
- Soverom
- 2
- Internt bruksareal
- 60 m² (BRA-i)
- Bruksareal
- 73 m²
- Eksternt bruksareal
- 13 m² (BRA-e)
- Balkong/Terrasse
- 7 m² (TBA)
- Etasje
- 2
- Byggeår
- 2007
- Energimerking
- D - Mørkegrønn
- Rom
- 3
- Tomteareal
- 2 899 m² (eiet)
Fasiliteter
Barnevennlig
Balkong/Terrasse
Garasje/P-plass
Kabel-TV
Heis
Offentlig vann/kloakk
Parkett
Vaktmester-/vektertjeneste
Sentralt
Bredbåndstilknytning
Moderne
Rolig
Lademulighet
Visning
tirsdag, 24. februar
16:00 – 17:00
Våre visninger har påmelding. Dette gjør vi for å kunne yte bedre service for våre kunder. Verdifullt for boligkjøper og for oss. Vi anbefaler at salgsoppgaven lastes ned digitalt før visning, og ring oss gjerne på forhånd for spørsmål om boligen. Passer ikke angitt tidspunkt, ta kontakt så finner vi en løsning. Skulle det mot formodning ikke være påmeldte til angitt visningstidspunkt vil ikke visning bli gjennomført.
Om boligen
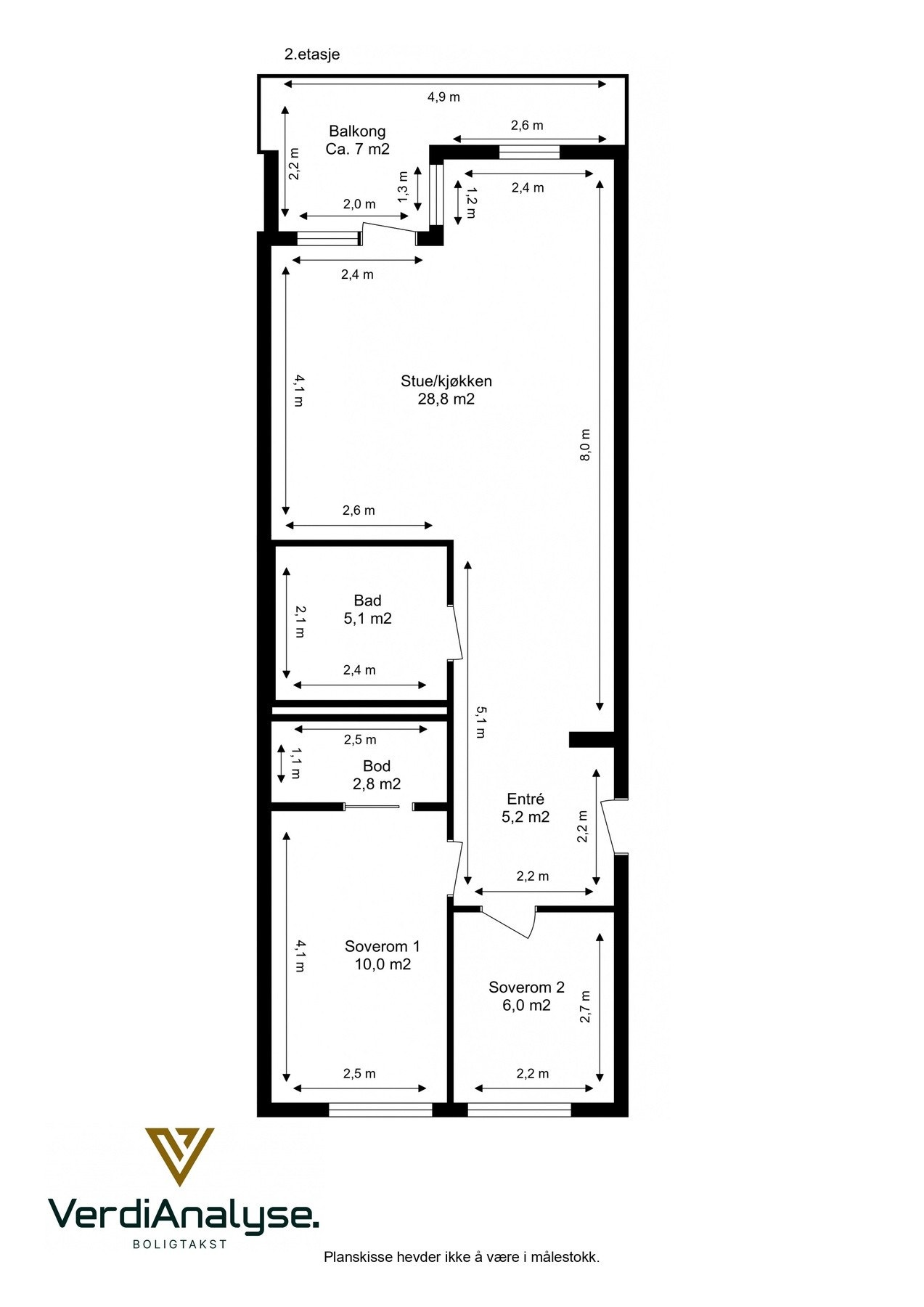
EiendomsMegler 1 v/ Eystein Wullum har gleden av å ønske velkommen til Kyavegen 23! En lys og praktisk 3-roms leilighet i 2. etasje. Leiligheten har flere gode kvaliteter og fremstår velholdt.
Persaunet er kjent for å være et rolig og trygt sted å bo, samt at man når Trondheim sentrum til fots, på sykkel eller via gode bussforbindelser. Det er flere butikker og alt av nødvendige fasiliteter i umiddelbar nærhet.
Persaunet er kjent for å være et rolig og trygt sted å bo, samt at man når Trondheim sentrum til fots, på sykkel eller via gode bussforbindelser. Det er flere butikker og alt av nødvendige fasiliteter i umiddelbar nærhet.
- Praktisk planløsning med åpen stue/-kjøkkenløsning på 28,8 m²
- Sørvestvendt balkong på ca. 7 m²
- Tidløst kjøkken med TG1 fra takstmann
- Flislagt bad med varmekabler i gulv og opplegg til vaskemaskin
- 2 gode soverom på hhv. 10 og 6 m² der det største er tilknyttet bod/walk-in-closet
- parkeringsplass i felles parkeringskjeller. I følge selger er det mulig å bytte plass i garasjen for å få tilgang til elbillader
- Heis i bygget
- Svært gode bussforbindelser i umiddelbar nærhet
- Flere butikker i nærheten
NB: Knappen for å vise hele beskrivelsen har kun en visuell effekt.
NB: Knappen for å vise hele beskrivelsen har kun en visuell effekt.
Salgsoppgaven beskriver vesentlig og lovpålagt informasjon om eiendommen
Se komplett salgsoppgaveNyttige lenker
Nærområdet
EiendomsMegler 1 Valentinlyst
Vi loser deg trygt gjennom hele boligsalget
Annonseinformasjon
| FINN-kode | 450721342 |
|---|---|
| Sist endret | 13. feb. 2026 09:19 |
| Referanse | 34250384 |
Annonsene kan være mangelfulle i forhold til lovpålagt opplysningsplikt. Før bindende avtale inngås oppfordres interessenter til å innhente komplett informasjon fra meglerforetaket, selger eller utleier.




























