Bildegalleri

Velkommen til Gunnars gate 20 - Eldre og velholdt bolig med stort potensiale!

Hamar

Eldre og velholdt enebolig med stort potensiale i et meget attraktivt område! Gode solforhold. Moderniseringsbehov.

Prisantydning6 950 000 kr
Totalpris
7 144 740 kr
Omkostninger
194 740 kr
Kommunale avg.
16 375 kr per år
Eiendomsskatt
14 808 kr per år
Formuesverdi
1 415 216 kr

Nøkkelinfo

Boligtype
Enebolig
Eieform
Eier (Selveier)
Soverom
3
Internt bruksareal
285 m² (BRA-i)
Bruksareal
302 m²
Eksternt bruksareal
17 m² (BRA-e)
Byggeår
1973
Energimerking
D - Gul
Rom
5
Tomteareal
831 m² (eiet)

Les mer om bruksareal her

Fasiliteter

Barnevennlig
Garasje/P-plass
Hage
Offentlig vann/kloakk
Peis/Ildsted
Rolig
Sentralt
Bademulighet
Turterreng

Visning

torsdag, 19. februar
18:00 – 19:00
For å delta på visning, ber vi om at du melder deg på. Da sikrer vi at du får nødvendig informasjon og at det er satt av tilstrekkelig med tid. Kontakt megler dersom annet tidspunkt ønskes. Husk å lese salgsoppgaven før visningen, så du stiller forberedt. Ønsker du kun å bli holdt orientert, kan du fra eiendommens hjemmeside få varsel om solgtpris, eller kontakte megler.
Visningspåmelding

Om boligen

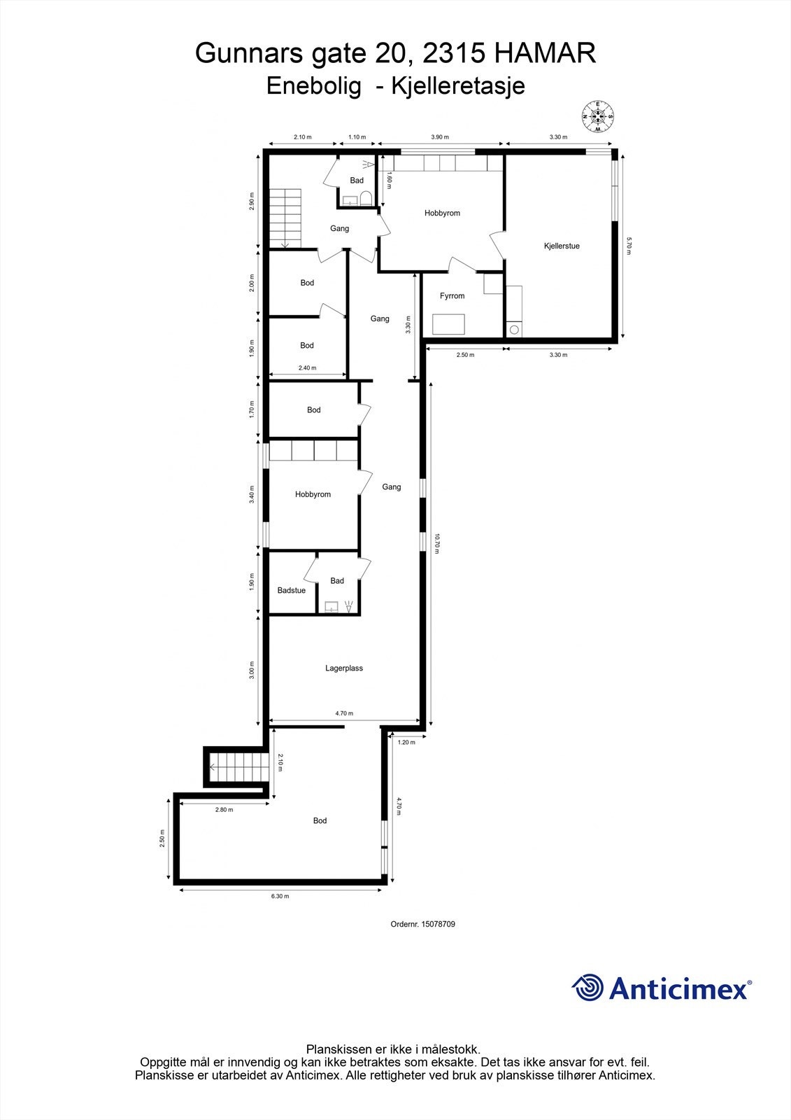
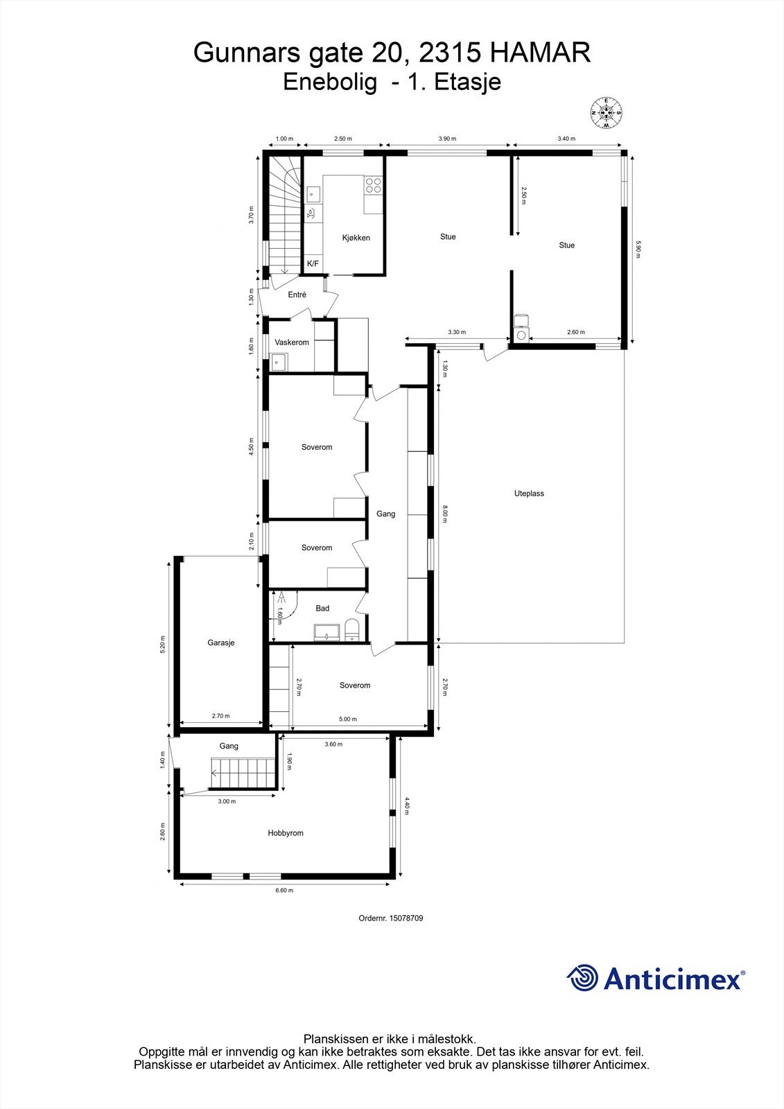
Gunnars gate 20 ligger i et meget attraktivt, rolig og etterspurt boligområde, som består av velholdte villaeiendommer. Her bor man med gangavstand til Hamar sentrum med hyggelig adkomst langs strandpromenaden og kun minutters gange til Mjøsa. Boligen fremstår velholdt med moderniseringsbehov - en bolig med stort potensiale for å skape sitt drømmehjem! Alle nødvendige rom på ett plan, hvor 1. etasje inneholder kjøkken, 2 stuer, 3 soverom, bad og vaskerom, samt romslig hobbyrom med egen adkomst. Fra stue er det utgang til solrik uteplass og videre til en pent opparbeidet hage. Kjeller med 2 baderom, badstue og flere boder for gode oppbevaringsmuligheter. Garasje med plass til én bil.

Velkommen til en hyggelig visning!

Salgsoppgaven beskriver vesentlig og lovpålagt informasjon om eiendommen

Se komplett salgsoppgave

Nærområdet

Annonseinformasjon

FINN-kode450715071
Sist endret13. feb. 2026 07:41
ReferanseKR65.2623

Rapporter annonse

Annonsene kan være mangelfulle i forhold til lovpålagt opplysningsplikt. Før bindende avtale inngås oppfordres interessenter til å innhente komplett informasjon fra meglerforetaket, selger eller utleier.