Bildegalleri

Avdelingsleder/Eiendomsmegler Øyvind Guldhaugen presenterer Bergveien 12!
Harstadbotn
Innholdsrik og familievennlig enebolig i rolig område - flott kjøkken - super utsikt og meget gode solforhold - garasje
Prisantydning4 150 000 kr
Nøkkelinfo
- Boligtype
- Enebolig
- Eieform
- Eier (Selveier)
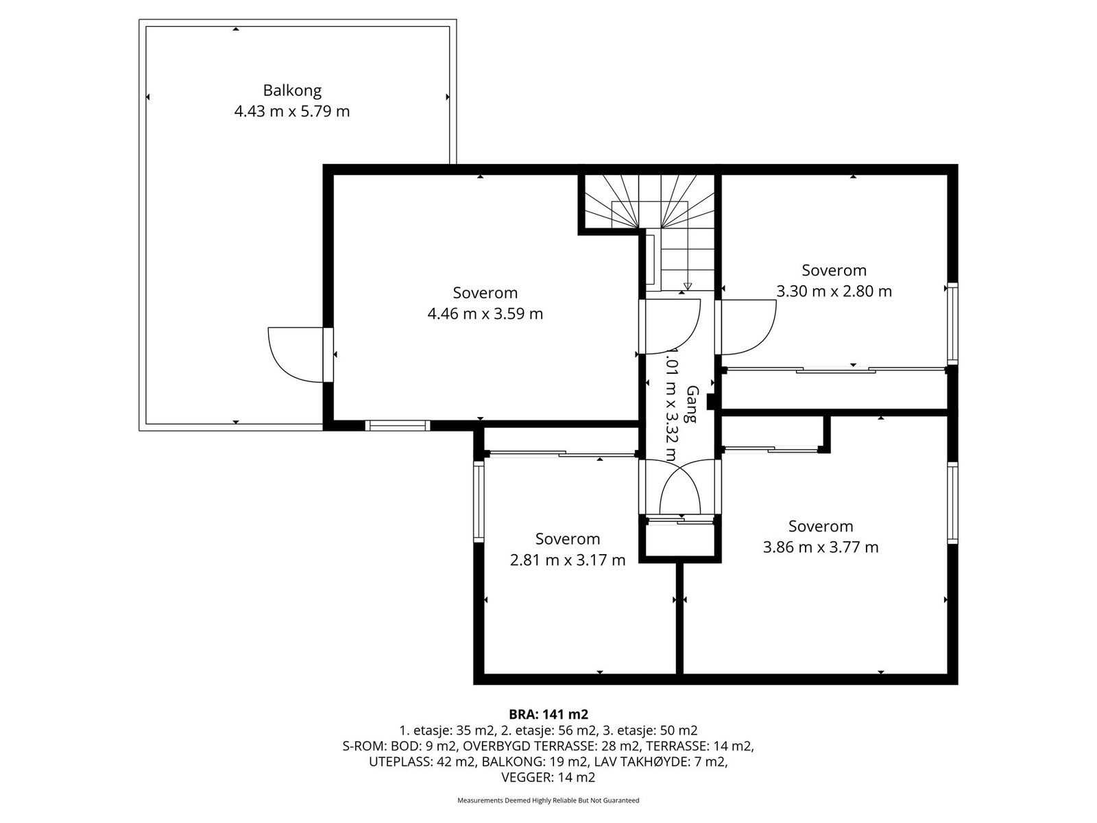
- Soverom
- 4
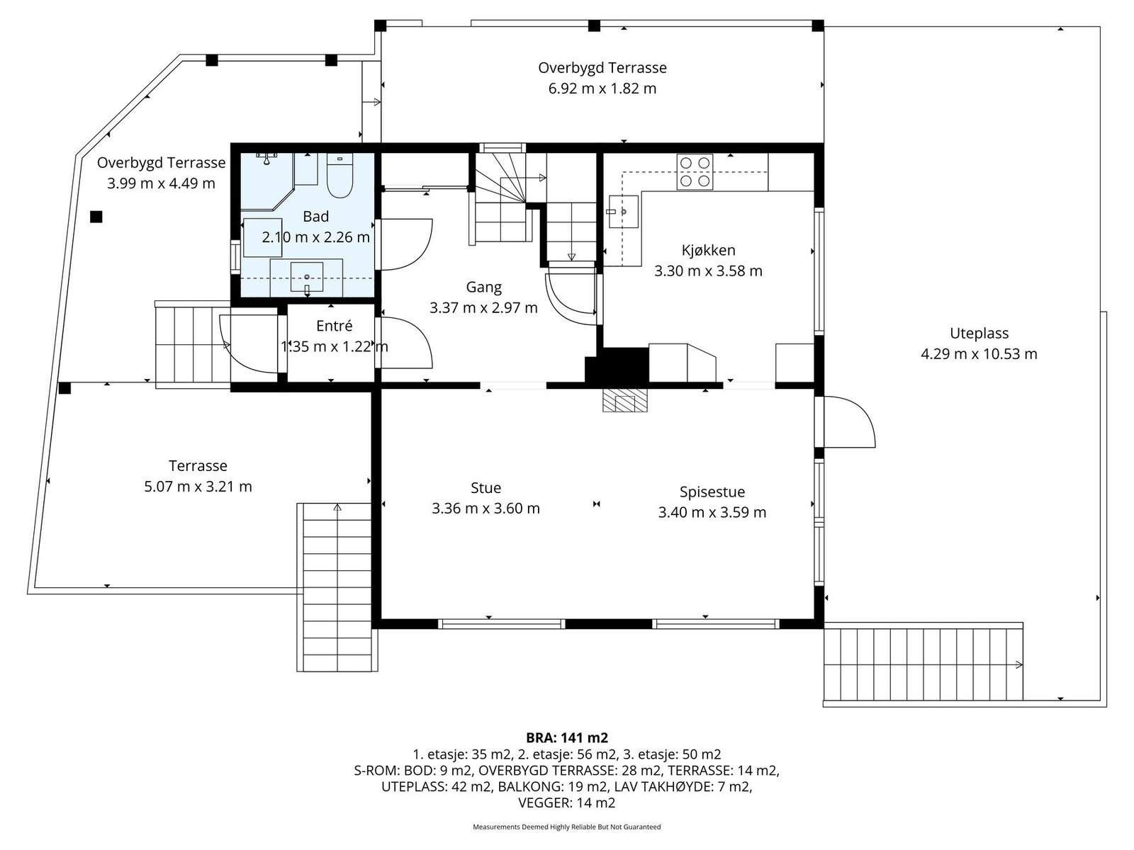
- Internt bruksareal
- 151 m² (BRA-i)
- Bruksareal
- 173 m²
- Eksternt bruksareal
- 22 m² (BRA-e)
- Balkong/Terrasse
- 89 m² (TBA)
- Byggeår
- 1959
- Energimerking
- E - Oransje
- Rom
- 5
- Tomteareal
- 443 m² (eiet)
Fasiliteter
Barnevennlig
Balkong/Terrasse
Garasje/P-plass
Offentlig vann/kloakk
Peis/Ildsted
Turterreng
Utsikt
Sentralt
Bredbåndstilknytning
Rolig
Lademulighet
Visning
torsdag, 19. februar
17:00 – 17:45
Alle våre visninger har påmelding. Dette for at vi kan planlegge visningene best mulig, og ha god tid til de som kommer. Det er enkelt å melde seg på, og du kan like enkelt melde deg av. Visninger uten påmeldte deltakere kan bli avlyst.
Om boligen
EiendomsMegler 1 ønsker velkommen til Bergveien 12 - en innholdsrik og familievennlig enebolig i Harstadbotn. Boligen presenteres av Øyvind Guldhaugen.
Er du på utkikk etter en innflyttingsklar enebolig med god plass og 4 soverom? Her har du muligheten! Eneboligen er godt ivaretatt gjennom årene og har god planløsning, romslig størrelse på soverom og rikelig med lagringsplass. Det er to bad i boligen, samt ekstra toalettrom.
Uteområdet er pent opparbeidet med asfaltert gårdsplass, støttemurer, garasje og parkering, verandaer, terrasser og overbygg. Her får du gode utsiktsforhold og strålende solforhold til sent på kvelden.
Beliggenheten gir deg umiddelbar avstand til sentrum, Kanebogen, dagligvarebutikker, skoler, barnehager m.m. Her er også et godt utgangspunkt om du er glad i skog og mark. Bergveien er en trafikkstille gate uten gjennomgangstrafikk, så her kan barn og voksne leke fritt i gata.
Velkommen til påmeldingsvisning i Bergveien 12!
Er du på utkikk etter en innflyttingsklar enebolig med god plass og 4 soverom? Her har du muligheten! Eneboligen er godt ivaretatt gjennom årene og har god planløsning, romslig størrelse på soverom og rikelig med lagringsplass. Det er to bad i boligen, samt ekstra toalettrom.
Uteområdet er pent opparbeidet med asfaltert gårdsplass, støttemurer, garasje og parkering, verandaer, terrasser og overbygg. Her får du gode utsiktsforhold og strålende solforhold til sent på kvelden.
Beliggenheten gir deg umiddelbar avstand til sentrum, Kanebogen, dagligvarebutikker, skoler, barnehager m.m. Her er også et godt utgangspunkt om du er glad i skog og mark. Bergveien er en trafikkstille gate uten gjennomgangstrafikk, så her kan barn og voksne leke fritt i gata.
Velkommen til påmeldingsvisning i Bergveien 12!
NB: Knappen for å vise hele beskrivelsen har kun en visuell effekt.
NB: Knappen for å vise hele beskrivelsen har kun en visuell effekt.
Salgsoppgaven beskriver vesentlig og lovpålagt informasjon om eiendommen
Se komplett salgsoppgaveNyttige lenker
Nærområdet
EiendomsMegler 1 Harstad
Vi loser deg trygt gjennom hele boligsalget
Annonsene kan være mangelfulle i forhold til lovpålagt opplysningsplikt. Før bindende avtale inngås oppfordres interessenter til å innhente komplett informasjon fra meglerforetaket, selger eller utleier.








































