Bildegalleri

EiendomsMegler 1 har gleden av å presentere Østsideveien 76! Foto: EFKT
Straumen
Oppgradert enebolig med sjønær beliggenhet - Solrik veranda - Båtplass
Prisantydning1 450 000 kr
Nøkkelinfo
- Boligtype
- Enebolig
- Eieform
- Eier (Selveier)
- Soverom
- 3
- Internt bruksareal
- 163 m² (BRA-i)
- Bruksareal
- 163 m²
- Balkong/Terrasse
- 45 m² (TBA)
- Byggeår
- 1957
- Energimerking
- F - Gul
- Rom
- 4
- Tomteareal
- 993 m² (eiet)
Visning
onsdag, 18. februar
15:30 – 16:30
Våre visninger har påmelding. Dette gjør vi for å kunne yte bedre service for våre kunder. Verdifullt for boligkjøper og for oss. Vi anbefaler at salgsoppgaven lastes ned digitalt før visning, og ring oss gjerne på forhånd for spørsmål om boligen. Passer ikke angitt tidspunkt, ta kontakt så finner vi en løsning. Skulle det mot formodning ikke være påmeldte til angitt visningstidspunkt vil ikke visning bli gjennomført.
Om boligen
EiendomsMegler 1 har gleden av å presentere Østsideveien 76!
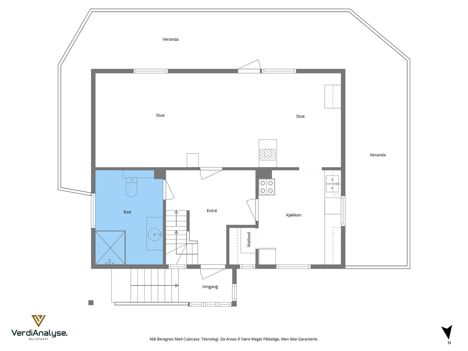
Enebolig med sjønær beliggenhet på Straumen. Boligen ble oppført i 1957 og går over 3 plan. Pent opparbeidet tomt, med plen, beplantninger, frukttrær og parkeringsareal. Veranda som strekker seg rundt boligen, mot vest, syd og øst. Boligen går over 3 plan og inneholder bl.a stue, kjøkken, matbod, bad, 3 soverom, kjellerstue, toalettrom og godt med bodplass både i kjeller og på loft. Eiendommen ligger sentralt til ved den gamle doktorboligen, ca. 200 m fra kirka mot kaia og småbåthavna. Det er kort vei til offentlig kommunikasjon, bensinstasjon og dagligvarebutikk.
- Nytt bad 2025
- Nytt yttertak 2024
- I 2016 ble det installert nye
vinduer i 2. etasje, nytt elektrisk anlegg og ny varmepumpe
- Installert ny vedovn og utført etterisolering av takkonstruksjon i 2. etasje (2023)
- Nye vinduer i 1. etasje (med unntak av bad) - 2024
- Etablert ny drenering for overvann - 2025
Velkommen til visning!
Enebolig med sjønær beliggenhet på Straumen. Boligen ble oppført i 1957 og går over 3 plan. Pent opparbeidet tomt, med plen, beplantninger, frukttrær og parkeringsareal. Veranda som strekker seg rundt boligen, mot vest, syd og øst. Boligen går over 3 plan og inneholder bl.a stue, kjøkken, matbod, bad, 3 soverom, kjellerstue, toalettrom og godt med bodplass både i kjeller og på loft. Eiendommen ligger sentralt til ved den gamle doktorboligen, ca. 200 m fra kirka mot kaia og småbåthavna. Det er kort vei til offentlig kommunikasjon, bensinstasjon og dagligvarebutikk.
- Nytt bad 2025
- Nytt yttertak 2024
- I 2016 ble det installert nye
vinduer i 2. etasje, nytt elektrisk anlegg og ny varmepumpe
- Installert ny vedovn og utført etterisolering av takkonstruksjon i 2. etasje (2023)
- Nye vinduer i 1. etasje (med unntak av bad) - 2024
- Etablert ny drenering for overvann - 2025
Velkommen til visning!
NB: Knappen for å vise hele beskrivelsen har kun en visuell effekt.
NB: Knappen for å vise hele beskrivelsen har kun en visuell effekt.
Salgsoppgaven beskriver vesentlig og lovpålagt informasjon om eiendommen
Se komplett salgsoppgaveNyttige lenker
Nærområdet
EiendomsMegler 1 Kristiansund
Vi loser deg trygt gjennom hele boligsalget
Annonseinformasjon
| FINN-kode | 450656368 |
|---|---|
| Sist endret | 11. feb. 2026 20:19 |
| Referanse | 17260049 |
Annonsene kan være mangelfulle i forhold til lovpålagt opplysningsplikt. Før bindende avtale inngås oppfordres interessenter til å innhente komplett informasjon fra meglerforetaket, selger eller utleier.






















