Bildegalleri

Velkommen til Flaskekroken 19! En lys og luftig enebolig presentert av Elisiff Wennersgaard v/Krogsveen Nesodden. Foto: Per O. Skjellnan v/Eftk

Flaskebekk

Flott vestvendt eiendom på øvre Flaskebekk med særdeles gode solforhold, pen hage og garasje. Kort vei til "alt".

Prisantydning12 000 000 kr
Totalpris
12 320 990 kr
Omkostninger
320 990 kr
Kommunale avg.
22 424 kr per år
Formuesverdi
2 196 552 kr

Nøkkelinfo

Boligtype
Enebolig
Eieform
Eier (Selveier)
Soverom
4
Internt bruksareal
178 m² (BRA-i)
Bruksareal
196 m²
Eksternt bruksareal
18 m² (BRA-e)
Balkong/Terrasse
35 m² (TBA)
Byggeår
2008
Energimerking
C - Gul
Tomteareal
737 m² (eiet)

Les mer om bruksareal her

Fasiliteter

Alarm
Balkong/Terrasse
Barnevennlig
Bredbåndstilknytning
Garasje/P-plass
Hage
Kjæledyr tillatt
Kabel-TV
Offentlig vann/kloakk
Parkett
Peis/Ildsted
Rolig
Sentralt
Bademulighet
Turterreng
Lademulighet

Visning

søndag, 22. februar
15:00 – 16:00
Visningspåmelding

Om boligen

Velkommen til Flaskekroken 19!

Eiendommen ligger innerst i en blindvei i et svært populært, ettertraktet, veletablert og særegent boområde på Flaskebekk. Her bor du med få minutter gang til både marka og sjøen, hvor du finner bademuligheter, en idyllisk strandpromenade med sjarmerende badehus, brygger, badestrand og felles badstue.

Området er barnevennlig og sentralt, med kort vei til "alt". Blant annet forretninger, kjøpesenter, skoler og barnehager.

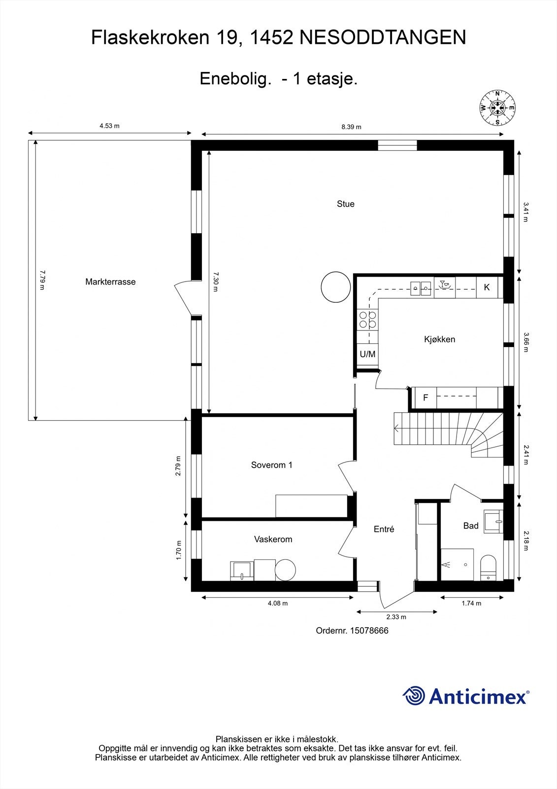
Boligen er svært familievennlig, med blant annet to stuer, et flott og romslig kjøkken, fire soverom og to bad. Planløsningen er gjennomtenkt og gir mulighet for å bo med alt på én flate.

Tomten er solrik, usjenert og pent opparbeidet. Det er parkering på egen tomt og i garasje.

Salgsoppgaven beskriver vesentlig og lovpålagt informasjon om eiendommen

Se komplett salgsoppgave

Nærområdet

Annonseinformasjon

FINN-kode450634663
Sist endret14. feb. 2026 07:43
ReferanseKR51.264

Rapporter annonse

Annonsene kan være mangelfulle i forhold til lovpålagt opplysningsplikt. Før bindende avtale inngås oppfordres interessenter til å innhente komplett informasjon fra meglerforetaket, selger eller utleier.