Bildegalleri

Velkommen til Smedasundet 19B - Foto: Aina Østebøvik Olsen
Lekker leilighet med herlig maritim utsikt | Heis | Garasjeplass med elbillader | 2 soverom, med mulighet for 3
Prisantydning2 650 000 kr
Nøkkelinfo
- Boligtype
- Leilighet
- Eieform
- Andel
- Soverom
- 2
- Internt bruksareal
- 89 m² (BRA-i)
- Bruksareal
- 96 m²
- Eksternt bruksareal
- 7 m² (BRA-e)
- Balkong/Terrasse
- 21 m² (TBA)
- Etasje
- 2
- Byggeår
- 2007
- Energimerking
- C - Lysegrønn
- Rom
- 3
- Tomteareal
- 1 596 m² (eiet)
Fasiliteter
Balkong/Terrasse
Barnevennlig
Bredbåndstilknytning
Garasje/P-plass
Heis
Kjæledyr tillatt
Kabel-TV
Offentlig vann/kloakk
Rolig
Sentralt
Utsikt
Bademulighet
Turterreng
Lademulighet
Visning
onsdag, 18. februar
16:00 – 17:00
For at vår megler og selger skal kunne gi deg den beste oppfølgingen og kjøpsopplevelsen er det obligatorisk påmelding til alle våre visninger. Dersom ditt reserverte tidspunkt likevel ikke kan benyttes trenger vi beskjed så tidlig som mulig sånn at vi kan finne en alternativ løsning. Vi har alltid tid til deg. Visninger uten påmeldte deltagere avlyses.
VisningspåmeldingOm boligen
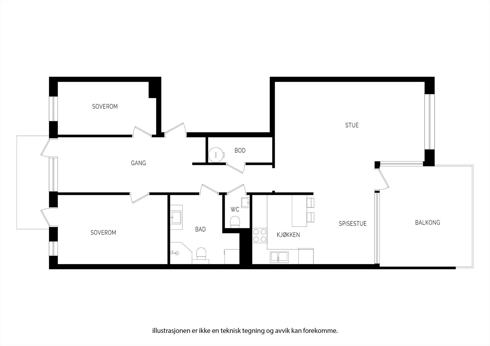
Leiligheten ligger i 2.etasje med heis direkte fra parkering i kjeller. Leiligheten inneholder:
- Stue med åpen kjøkkenløsning. Her er det utgang til terrasse med flott maritim utsikt.
- Leiligheten holder to soverom med garderobeplass. Hall/Tv-stue, som kan deles av og bygges om til et ekstra soverom.
- Fullfliset bad m/wc/dusj/servant/oppl.for vaskemaskin. I tillegg er det et ekstra gjestetoalett.
- Bod/tekniskrom.
Leiligheten har bod og egen parkeringsplass i felles, lukket garasjeanlegg. Ellers felles trimrom og gjesteleilighet.
Perfekt beliggenhet helt i sjøkanten med alle fasiliteter innenfor korte avstander. Maritim beliggenhet like utenfor bykjernen i Haugesund.
Ved innbetaling av fellesgjeld vil fellesutgiftene ca være på 4 029kr.
Avvik kan forekomme.
Velkommen til visning!
- Stue med åpen kjøkkenløsning. Her er det utgang til terrasse med flott maritim utsikt.
- Leiligheten holder to soverom med garderobeplass. Hall/Tv-stue, som kan deles av og bygges om til et ekstra soverom.
- Fullfliset bad m/wc/dusj/servant/oppl.for vaskemaskin. I tillegg er det et ekstra gjestetoalett.
- Bod/tekniskrom.
Leiligheten har bod og egen parkeringsplass i felles, lukket garasjeanlegg. Ellers felles trimrom og gjesteleilighet.
Perfekt beliggenhet helt i sjøkanten med alle fasiliteter innenfor korte avstander. Maritim beliggenhet like utenfor bykjernen i Haugesund.
Ved innbetaling av fellesgjeld vil fellesutgiftene ca være på 4 029kr.
Avvik kan forekomme.
Velkommen til visning!
NB: Knappen for å vise hele beskrivelsen har kun en visuell effekt.
NB: Knappen for å vise hele beskrivelsen har kun en visuell effekt.
Salgsoppgaven beskriver vesentlig og lovpålagt informasjon om eiendommen
Se komplett salgsoppgaveNyttige lenker
Nærområdet
Proaktiv Eiendomsmegling Haugesund
Alltid tid til deg
Annonseinformasjon
| FINN-kode | 450626409 |
|---|---|
| Sist endret | 12. feb. 2026 16:38 |
| Referanse | 1240260009 |
Annonsene kan være mangelfulle i forhold til lovpålagt opplysningsplikt. Før bindende avtale inngås oppfordres interessenter til å innhente komplett informasjon fra meglerforetaket, selger eller utleier.























































