Bildegalleri

Plutobakken 56 | Presentert av Proaktiv v/Alexander Abelseth.
Stenseth
Halvpart tomannsbolig med fantastiske utsiktsforhold. Egen p-plass, stor terrasse og 3 soverom. Innerst i blindvei.
Prisantydning3 200 000 kr
Nøkkelinfo
- Boligtype
- Tomannsbolig
- Eieform
- Eier (Selveier)
- Soverom
- 3
- Internt bruksareal
- 105 m² (BRA-i)
- Bruksareal
- 109 m²
- Eksternt bruksareal
- 4 m² (BRA-e)
- Balkong/Terrasse
- 60 m² (TBA)
- Etasje
- 2
- Byggeår
- 1985
- Tomteareal
- 305 m² (festet)
- Festeavgift
- 1 688 kr
Fasiliteter
Balkong/Terrasse
Barnevennlig
Garasje/P-plass
Kjæledyr tillatt
Offentlig vann/kloakk
Peis/Ildsted
Rolig
Utsikt
Turterreng
Visning
onsdag, 18. februar
17:00 – 17:45
For at vår megler og selger skal kunne gi deg den beste oppfølgingen og kjøpsopplevelsen er det obligatorisk påmelding til alle våre visninger. Dette må gjøres INNEN kl. 13.00 på visningsdagen. Visninger uten påmeldte deltagere avlyses.
VisningspåmeldingOm boligen
Tomannsboligen i Plutobakken 56 ligger høyt og solrikt til på Stenseth, innerst i en rolig blindvei. Her har man marka i ryggen, og panoramautsikt over Eikerbygdene i front. Et barnevennlig område med kort vei til skoler i alle trinn, buss, tog, butikker og gode fritidsaktiviteter.
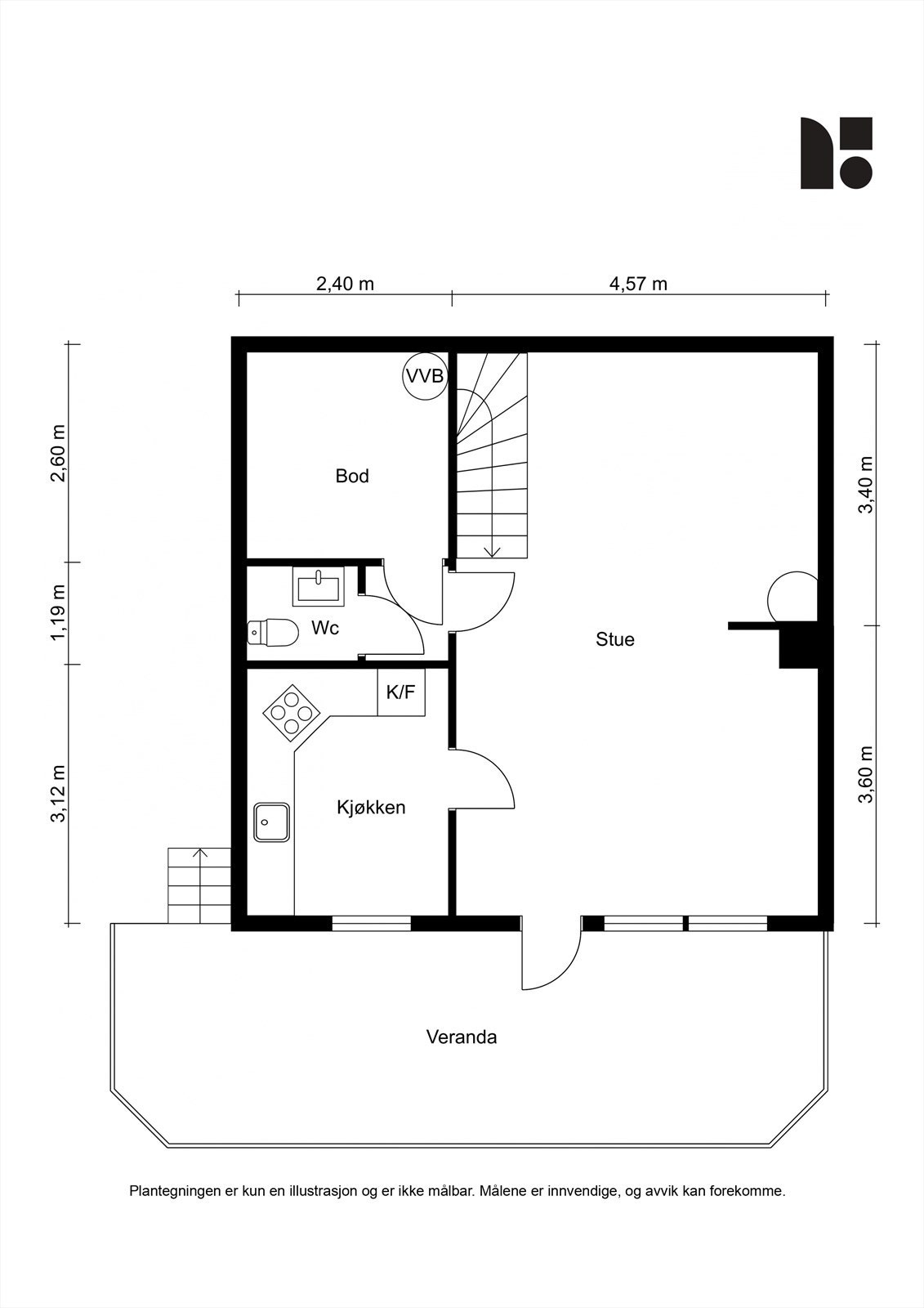
Dette er en vertikaldelt halvpart tomannsbolig over to etasjer med god planløsning, fine uteplasser med sol og utsikt samt parkeringsplass rett utenfor inngangspartiet. Inngangsetasjen består av entré/gang, bad med badekar og tre gode soverom. En etasje ned ligger en todelt stue med peis, separat spisekjøkken, bod, gang og toalettrom.
Dette er en vertikaldelt halvpart tomannsbolig over to etasjer med god planløsning, fine uteplasser med sol og utsikt samt parkeringsplass rett utenfor inngangspartiet. Inngangsetasjen består av entré/gang, bad med badekar og tre gode soverom. En etasje ned ligger en todelt stue med peis, separat spisekjøkken, bod, gang og toalettrom.
NB: Knappen for å vise hele beskrivelsen har kun en visuell effekt.
NB: Knappen for å vise hele beskrivelsen har kun en visuell effekt.
Salgsoppgaven beskriver vesentlig og lovpålagt informasjon om eiendommen
Se komplett salgsoppgaveNyttige lenker
Nærområdet
Proaktiv Eiendomsmegling Drammen, Lier & Holmestrand
Alltid tid til deg
Annonseinformasjon
| FINN-kode | 450623826 |
|---|---|
| Sist endret | 12. feb. 2026 14:37 |
| Referanse | 1600260038 |
Annonsene kan være mangelfulle i forhold til lovpålagt opplysningsplikt. Før bindende avtale inngås oppfordres interessenter til å innhente komplett informasjon fra meglerforetaket, selger eller utleier.






























