Bildegalleri

Velkommen til Sjøvollbukta 2B, presentert av Terje Tveit i Krogsveen. Foto: Trond Reder.
VOLLEN
Familievennlig bolig, attraktivt område med nærhet til sjøen. 3 soverom, 2 bad og 2 stuer. Garasjeplass. Peis.
Prisantydning8 450 000 kr
Nøkkelinfo
- Boligtype
- Rekkehus
- Eieform
- Eier (Selveier)
- Soverom
- 3
- Internt bruksareal
- 156 m² (BRA-i)
- Bruksareal
- 169 m²
- Eksternt bruksareal
- 13 m² (BRA-e)
- Balkong/Terrasse
- 42 m² (TBA)
- Etasje
- 3
- Byggeår
- 2006
- Energimerking
- D - Oransje
- Rom
- 5
- Tomteareal
- 1 746 m² (eiet)
Fasiliteter
Balkong/Terrasse
Barnevennlig
Garasje/P-plass
Hage
Peis/Ildsted
Bademulighet
Lademulighet
Om boligen
Velkommen til Sjøvollbukta 2B, presentert av Terje Tveit i Krogsveen.
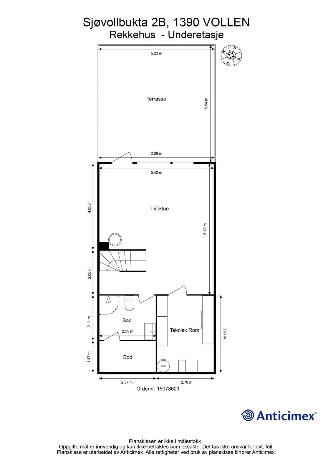
Her får du en innholdsrik bolig oppført i 2006, med nærhet til sjøen. Boligen inneholder 3 soverom, 2 bad, vaskerom, stue, TV-stue, kjøkken, entré og bod. Boligen disponerer garasjeplass i felles garasjerekke. Kort vei til sørlandsperlen Vollen som har kafe, restaurant, kiosk og butikker ved vannkanten. Kun en kort spasertur fra boligen har man tilgang til buss som tar deg til blant annet Asker og Oslo.
Kort fortalt:
Her får du en innholdsrik bolig oppført i 2006, med nærhet til sjøen. Boligen inneholder 3 soverom, 2 bad, vaskerom, stue, TV-stue, kjøkken, entré og bod. Boligen disponerer garasjeplass i felles garasjerekke. Kort vei til sørlandsperlen Vollen som har kafe, restaurant, kiosk og butikker ved vannkanten. Kun en kort spasertur fra boligen har man tilgang til buss som tar deg til blant annet Asker og Oslo.
Kort fortalt:
- Lys og innholdsrik
- 3 soverom, 2 bad, vaskerom
- Garasjeplass samt delte parkeringsplasser i sameiet
- Solrik terrasse, balkong og hage
- Nærhet til sjøen og badestrand
- Offentlig kommunikasjon, ekspressbuss eller Hurtigbåten fra Vollen til Oslo
Velkommen til visning!
NB: Knappen for å vise hele beskrivelsen har kun en visuell effekt.
NB: Knappen for å vise hele beskrivelsen har kun en visuell effekt.
Salgsoppgaven beskriver vesentlig og lovpålagt informasjon om eiendommen
Se komplett salgsoppgaveNyttige lenker
Nærområdet
Krogsveen Asker
Verdien av en god megler.
Annonseinformasjon
| FINN-kode | 450620206 |
|---|---|
| Sist endret | 27. feb. 2026 09:40 |
| Referanse | KR15.2593 |
Annonsene kan være mangelfulle i forhold til lovpålagt opplysningsplikt. Før bindende avtale inngås oppfordres interessenter til å innhente komplett informasjon fra meglerforetaket, selger eller utleier.




























































