Bildegalleri

Velkommen til Langerusta 6 (foto: Efkt, Svein Olav Humberset)
Einebustad med utleigedel i Myklebuståsen! | utsikt | solrikt| garasje |
Prisantydning3 250 000 kr
Nøkkelinfo
- Boligtype
- Enebolig
- Eieform
- Eier (Selveier)
- Soverom
- 4
- Internt bruksareal
- 184 m² (BRA-i)
- Bruksareal
- 220 m²
- Eksternt bruksareal
- 36 m² (BRA-e)
- Balkong/Terrasse
- 61 m² (TBA)
- Etasje
- 3
- Byggeår
- 1985
- Energimerking
- E - Oransje
- Rom
- 6
- Tomteareal
- 683 m² (eiet)
Fasiliteter
Balkong/Terrasse
Barnevennlig
Garasje/P-plass
Offentlig vann/kloakk
Rolig
Sentralt
Utsikt
Om boligen
Velkommen til Langerusta 6
Her kan du flytte rett inn i ein familievennlig einebustad med garasje og flott utsikt mot sentrum, fjord og fjellheim. Det er utleigedel i underetasje. Eigedomen ligg fint til i eit roleg og barnevenleg område i Myklebuståsen.
Boligen går over tre plan med følgende innhald:
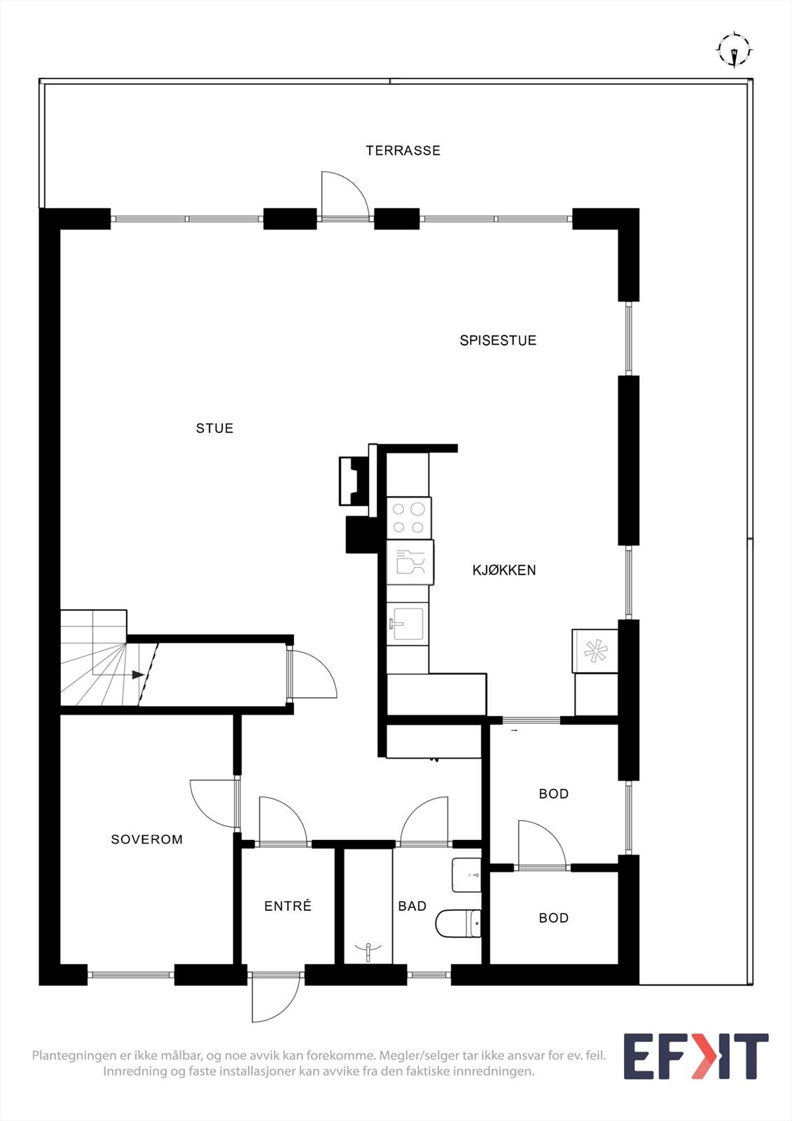
Underetasje: Gang, soverom, stove, kjøkken, trapperom, bad og tre boder.
1. etasje: Vindfang, gang, bad, soverom, trapperom, stove/kjøkken, kjølerom og bod.
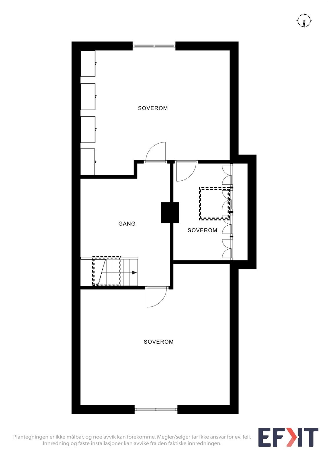
Loft: Gang m/tapp, to soverom og garderobe.
Hugs påmelding til visning!
Her kan du flytte rett inn i ein familievennlig einebustad med garasje og flott utsikt mot sentrum, fjord og fjellheim. Det er utleigedel i underetasje. Eigedomen ligg fint til i eit roleg og barnevenleg område i Myklebuståsen.
Boligen går over tre plan med følgende innhald:
Underetasje: Gang, soverom, stove, kjøkken, trapperom, bad og tre boder.
1. etasje: Vindfang, gang, bad, soverom, trapperom, stove/kjøkken, kjølerom og bod.
Loft: Gang m/tapp, to soverom og garderobe.
Hugs påmelding til visning!
NB: Knappen for å vise hele beskrivelsen har kun en visuell effekt.
NB: Knappen for å vise hele beskrivelsen har kun en visuell effekt.
Salgsoppgaven beskriver vesentlig og lovpålagt informasjon om eiendommen
Se komplett salgsoppgaveNyttige lenker
Nærområdet
EiendomsMegler 1 Sogn og Fjordane
En del av Sparebank 1 Sogn og Fjordane
Annonseinformasjon
| FINN-kode | 450603758 |
|---|---|
| Sist endret | 13. feb. 2026 11:21 |
| Referanse | 6000250141 |
Annonsene kan være mangelfulle i forhold til lovpålagt opplysningsplikt. Før bindende avtale inngås oppfordres interessenter til å innhente komplett informasjon fra meglerforetaket, selger eller utleier.
























