Bildegalleri

Fredrik Hyldmo v/Nordvik Bolig har gleden av å presentere Stensgata 42B! Foto: Rullende Fotograf
Adamstuen
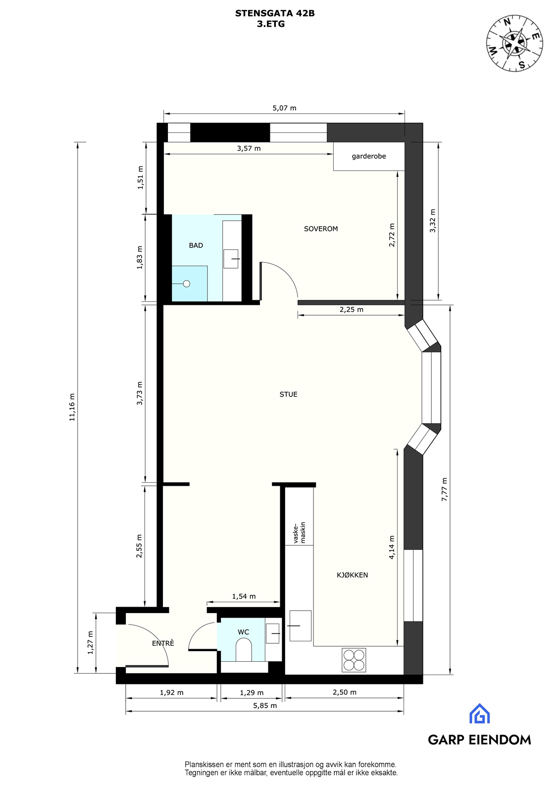
Attraktiv og lys 2-roms topp-/hjørneleilighet - V.v og fyring inkl. - Parkeringsleie - Idyllisk bakgård - Takhøyde 2,73m
Prisantydning5 980 000 kr
Nøkkelinfo
- Boligtype
- Leilighet
- Eieform
- Aksje
- Soverom
- 1
- Internt bruksareal
- 59 m² (BRA-i)
- Bruksareal
- 68 m²
- Eksternt bruksareal
- 9 m² (BRA-e)
- Etasje
- 3
- Byggeår
- 1934
- Energimerking
- G - Mørkegrønn
- Rom
- 2
- Tomteareal
- 1 326 m² (eiet)
Fasiliteter
Barnevennlig
Bredbåndstilknytning
Fellesvaskeri
Garasje/P-plass
Kjæledyr tillatt
Offentlig vann/kloakk
Parkett
Rolig
Sentralt
Lademulighet
Om boligen
Fredrik Hyldmo v/Nordvik Bolig har gleden av å presentere Stensgata 42B! En lys og romslig hjørne- og toppleilighet med attraktiv beliggenhet i en enveiskjørt gate på Adamstuen. Leiligheten har vinduer mot to sider, generøs takhøyde på 2,73 meter og en åpen planløsning. Dette gir en luftig romfølelse med rikelig lysinnslipp. Aksjelaget har en frodig og felles bakgård, samt 12 parkeringsplasser til leie. Her bor du i et svært populært nabolag på Adamstuen, med umiddelbar nærhet til et bredt utvalg av fasiliteter og kollektivtransport.
Kort oppsummert:
- Varmtvann og fyring inkludert i felleskostnadene
- Lave omkostninger
- Parkeringsleie ved ledighet
- Takhøyde 2,73 meter
- Flott bakgård med frodig hage
- Bod på loft og i kjeller
- Vaskerom i kjeller
- Attraktiv beliggenhet på Adamstuen
Kort oppsummert:
- Varmtvann og fyring inkludert i felleskostnadene
- Lave omkostninger
- Parkeringsleie ved ledighet
- Takhøyde 2,73 meter
- Flott bakgård med frodig hage
- Bod på loft og i kjeller
- Vaskerom i kjeller
- Attraktiv beliggenhet på Adamstuen
NB: Knappen for å vise hele beskrivelsen har kun en visuell effekt.
NB: Knappen for å vise hele beskrivelsen har kun en visuell effekt.
Salgsoppgaven beskriver vesentlig og lovpålagt informasjon om eiendommen
Se komplett salgsoppgaveNyttige lenker
Nærområdet
Nordvik Bislett
Annonseinformasjon
| FINN-kode | 450602517 |
|---|---|
| Sist endret | 16. feb. 2026 11:06 |
| Referanse | 36-0029/26 |
Annonsene kan være mangelfulle i forhold til lovpålagt opplysningsplikt. Før bindende avtale inngås oppfordres interessenter til å innhente komplett informasjon fra meglerforetaket, selger eller utleier.





































