Bildegalleri

Velkommen til Brinken 16D - en attraktiv hjørneleilighet i et rolig og sentralt boområde på Kampen. Foto: Agata Posmyk
Kampen
Pen 2-roms hjørneleilighet med utsikt og vestvendt balkong. Fyring/varmtvann/internett inkl. Idyllisk beliggenhet!
Prisantydning5 090 000 kr
Nøkkelinfo
- Boligtype
- Leilighet
- Eieform
- Aksje
- Soverom
- 1
- Internt bruksareal
- 59 m² (BRA-i)
- Bruksareal
- 63 m²
- Eksternt bruksareal
- 4 m² (BRA-e)
- Balkong/Terrasse
- 4 m² (TBA)
- Byggeår
- 1939
- Energimerking
- G - Mørkegrønn
- Rom
- 2
- Tomteareal
- 1 777 m² (eiet)
Fasiliteter
Balkong/Terrasse
Offentlig vann/kloakk
Ingen gjenboere
Peis/Ildsted
Turterreng
Utsikt
Fellesvaskeri
Sentralt
Bredbåndstilknytning
Moderne
Rolig
Visning
søndag, 22. februar
16:00 – 16:45
Velkommen til visning!
Alle våre visninger har påmelding. På denne måten sikrer vi at megler har god oversikt og tid til å imøtekomme alle interessenter på beste måte. Dette er veldig verdifullt for boligkjøpere og for oss. Det er enkelt å melde seg på, og du kan like enkelt melde deg av. Kontakt også gjerne megler i forkant av visning dersom du har spørsmål.
Om boligen
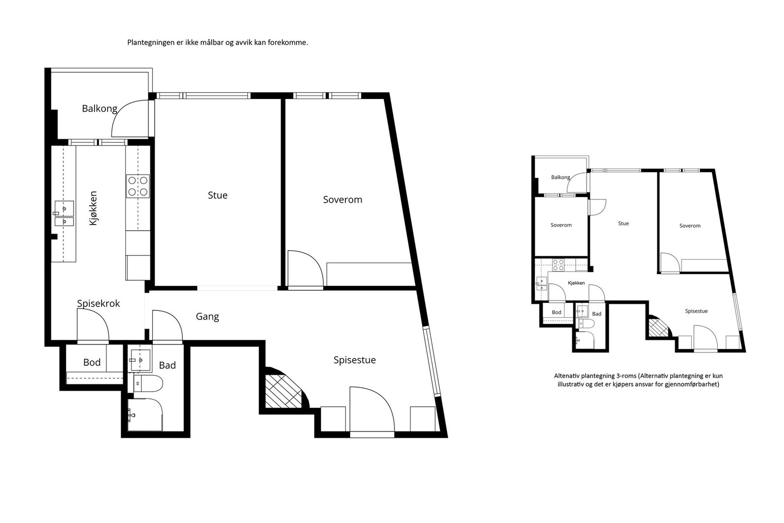
Velkommen til Brinken 16D - en attraktiv hjørneleilighet med vestvendt balkong og hyggelig utsikt i et rolig og sentralt boområde på Kampen. Boligen har en gjennomtenkt planløsning med separat kjøkken, romslig stue med gode vindusoverflater, flislagt bad, stor mellomgang med peis og et godt soverom med garderobeløsning.
Leiligheten ligger i et veletablert boligområde med fredelige gater, kort vei til offentlig transport, butikker og grøntområder. Perfekt for deg som ønsker kombinasjonen av byliv og rolig nabolag.
Høydepunkter:
- Vestvendt balkong med flott utsikt på 4 m².
- Muligheter for etablering av 3-roms.
- Fin utsikt mot indre bakgård med fjordgløtt.
- Fyring og varmtvann via fjernvarme, samt internett inkludert i felleskostnadene.
- Takhøyden i leiligheten er på hele 2,7 m.
- Peis.
- Ingen dokumentavgift eller forkjøpsrett.
- 2 disponible boder.
Leiligheten ligger i et veletablert boligområde med fredelige gater, kort vei til offentlig transport, butikker og grøntområder. Perfekt for deg som ønsker kombinasjonen av byliv og rolig nabolag.
Høydepunkter:
- Vestvendt balkong med flott utsikt på 4 m².
- Muligheter for etablering av 3-roms.
- Fin utsikt mot indre bakgård med fjordgløtt.
- Fyring og varmtvann via fjernvarme, samt internett inkludert i felleskostnadene.
- Takhøyden i leiligheten er på hele 2,7 m.
- Peis.
- Ingen dokumentavgift eller forkjøpsrett.
- 2 disponible boder.
NB: Knappen for å vise hele beskrivelsen har kun en visuell effekt.
NB: Knappen for å vise hele beskrivelsen har kun en visuell effekt.
Salgsoppgaven beskriver vesentlig og lovpålagt informasjon om eiendommen
Se komplett salgsoppgaveNyttige lenker
Nærområdet

Privatmegleren Komplett
Kun det beste på dine vegne
Annonseinformasjon
| FINN-kode | 450599322 |
|---|---|
| Sist endret | 15. feb. 2026 11:00 |
| Referanse | 306260038 |
Annonsene kan være mangelfulle i forhold til lovpålagt opplysningsplikt. Før bindende avtale inngås oppfordres interessenter til å innhente komplett informasjon fra meglerforetaket, selger eller utleier.





































