Bildegalleri

Velkommen til Årvollveien 60K - presentert av Hanne Pettersen i Krogsveen

IDYLLISKE ÅRVOLLSKOGEN

Stor og lekker 3-roms på hele 76 kvm m/​ 2 franske balkonger, garasje m/​EL og heis. Meget ettertraktet sameie!

Prisantydning5 690 000 kr
Totalpris
5 844 140 kr
Omkostninger
154 140 kr
Fellesformue
20 943 kr
Formuesverdi
1 601 070 kr

Nøkkelinfo

Boligtype
Leilighet
Eieform
Eier (Selveier)
Soverom
2
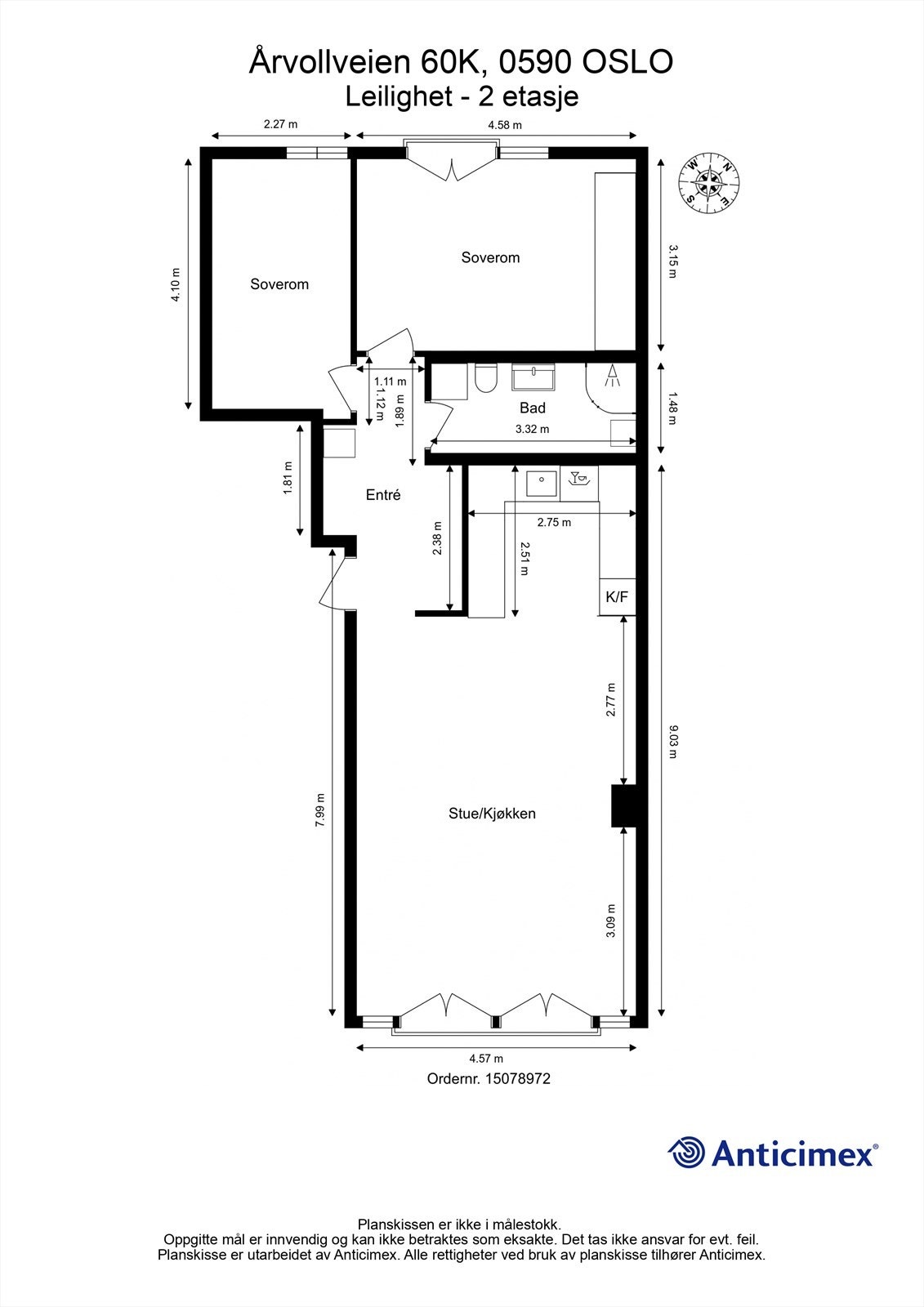
Internt bruksareal
76 m² (BRA-i)
Bruksareal
81 m²
Eksternt bruksareal
5 m² (BRA-e)
Etasje
2
Byggeår
2006
Energimerking
C - Lysegrønn
Rom
3
Tomteareal
2 789 m² (eiet)

Les mer om bruksareal her

Fasiliteter

Alpinanlegg
Balkong/Terrasse
Barnevennlig
Bredbåndstilknytning
Garasje/P-plass
Heis
Kjæledyr tillatt
Ingen gjenboere
Kabel-TV
Offentlig vann/kloakk
Parkett
Rolig
Sentralt
Vaktmester-/vektertjeneste
Bademulighet
Turterreng
Lademulighet

Visning

søndag, 22. februar
14:15 – 15:15
mandag, 23. februar
17:00 – 18:00
Visningspåmelding

Om boligen

Årvollskogen ligger ved foten av idylliske Lillomarka.
Området er et fantastisk utgangspunkt for spaserturer, løpeturer, sykling og langrenn.
I tillegg ligger Grefsenkleiva skianlegg rett bak sameiet - her er det "ski in - ski out" forhold om vinteren! På sommerstid er frodig skog og idylliske badevann kun en liten rusletur unna.

Setter du pris på umiddelbar nærhet til marka og enkel adkomst til sentrum?
Da er Årvollskogen et fantastisk alternativ! - her snakker vi hverdagsidyll året rundt!

  • Romslig stue/kjøkkenløsning på ca. 39 kvm
  • Store vinduer som gir gode innvendige lysforhold
  • To lyse og luftige soverom
  • Kjellerbod på 5 kvm
  • Garasjeplass med elbillader
  • Felles sykkelparkering, badstue, smørebod og sykkelvask
  • To barnehager innenfor 100 meter

Salgsoppgaven beskriver vesentlig og lovpålagt informasjon om eiendommen

Se komplett salgsoppgave

Nærområdet

Annonseinformasjon

FINN-kode450599075
Sist endret14. feb. 2026 08:13
ReferanseKR39.269

Rapporter annonse

Annonsene kan være mangelfulle i forhold til lovpålagt opplysningsplikt. Før bindende avtale inngås oppfordres interessenter til å innhente komplett informasjon fra meglerforetaket, selger eller utleier.