Bildegalleri

Velkommen til Holenveien 37! Foto: Hege K. Leren
Kurland / Lørenskog
Familievennlig enebolig med 4 soverom på Kurland | Stor tomt | Garasje og carport | Barnevennlig og attraktivt område
Prisantydning9 250 000 kr
Nøkkelinfo
- Boligtype
- Enebolig
- Eieform
- Eier (Selveier)
- Soverom
- 4
- Internt bruksareal
- 209 m² (BRA-i)
- Bruksareal
- 230 m²
- Eksternt bruksareal
- 21 m² (BRA-e)
- Balkong/Terrasse
- 45 m² (TBA)
- Byggeår
- 1978
- Energimerking
- D - Gul
- Rom
- 6
- Tomteareal
- 901 m² (eiet)
Fasiliteter
Balkong/Terrasse
Barnevennlig
Bredbåndstilknytning
Garasje/P-plass
Hage
Kjæledyr tillatt
Offentlig vann/kloakk
Parkett
Peis/Ildsted
Rolig
Sentralt
Lademulighet
Visning
søndag, 22. februar
16:30 – 17:15
mandag, 23. februar
17:00 – 17:45
Ønsker du å delta på visningen ber vi deg melde deg på slik at vi vet at du kommer. Da kan vi bistå alle best mulig og gi deg tiden du trenger på visningen. Ta gjerne kontakt med megler før visning hvis du har noen spørsmål. Velkommen!
VisningspåmeldingOm boligen
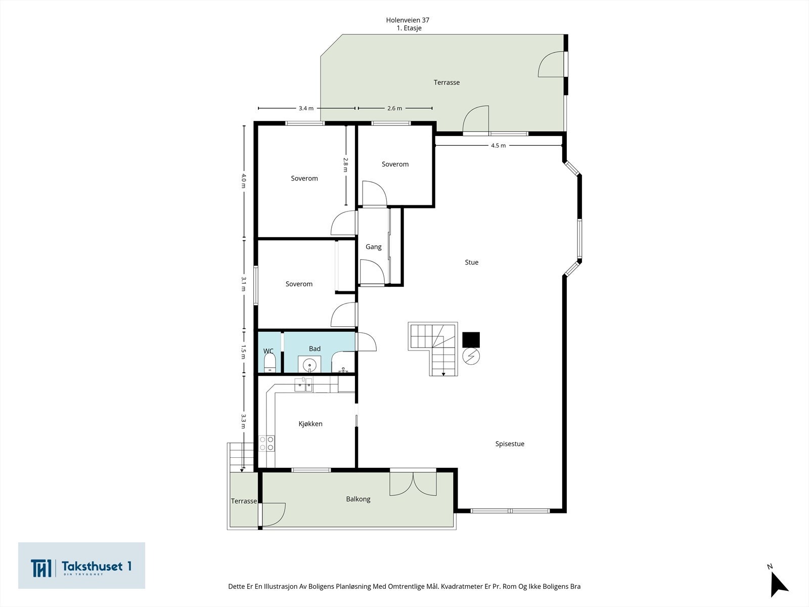
Velkommen til Holenveien 37!
Dette er en innholdsrik enebolig med en barnevennlig og attraktiv beliggenhet på Kurland innerst i blindvei. Her bor du i et rolig nabolag med nærhet til skoler, barnehager og flotte turområder. Boligen går over to plan og har en god planløsning med stor, herlig stue, 4 sov og to bad, perfekt for en aktiv familie. Fra stuen er det utgang til en stor terrasse og balkong hvor du kan nyte omgivelsene.
Høydepunkter:
- Enebolig over 2 plan med 4 soverom
- To stuer og to eldre bad ett bad med badekar
- To ildsteder, ny Scan-ovn installert i 2015
- Stor terrasse på 32 m² og balkong på 13 m²
- Garasje og carport på egen tomt
- Elbil-lader montert i carport
- Umiddelbar nærhet til skog og mark
- Ca 6 min gange til buss og dagligvare
Velkommen til visning!
Dette er en innholdsrik enebolig med en barnevennlig og attraktiv beliggenhet på Kurland innerst i blindvei. Her bor du i et rolig nabolag med nærhet til skoler, barnehager og flotte turområder. Boligen går over to plan og har en god planløsning med stor, herlig stue, 4 sov og to bad, perfekt for en aktiv familie. Fra stuen er det utgang til en stor terrasse og balkong hvor du kan nyte omgivelsene.
Høydepunkter:
- Enebolig over 2 plan med 4 soverom
- To stuer og to eldre bad ett bad med badekar
- To ildsteder, ny Scan-ovn installert i 2015
- Stor terrasse på 32 m² og balkong på 13 m²
- Garasje og carport på egen tomt
- Elbil-lader montert i carport
- Umiddelbar nærhet til skog og mark
- Ca 6 min gange til buss og dagligvare
Velkommen til visning!
NB: Knappen for å vise hele beskrivelsen har kun en visuell effekt.
NB: Knappen for å vise hele beskrivelsen har kun en visuell effekt.
Salgsoppgaven beskriver vesentlig og lovpålagt informasjon om eiendommen
Se komplett salgsoppgaveNyttige lenker
Nærområdet
Eiendomsmegler 1 Jessheim
Vi loser deg trygt gjennom hele boligsalget
Annonseinformasjon
| FINN-kode | 450588496 |
|---|---|
| Sist endret | 13. feb. 2026 18:30 |
| Referanse | 6021260176 |
Annonsene kan være mangelfulle i forhold til lovpålagt opplysningsplikt. Før bindende avtale inngås oppfordres interessenter til å innhente komplett informasjon fra meglerforetaket, selger eller utleier.



































































