Bildegalleri

Borettslaget har pent opparbeidete uteområder med stor hage. Uteområdene blir godt ivertatt av borettslagets ildsjeler
Koselig andelsleilighet i 1. etasje med inngang fra solrik veranda/Garasjeplass/Boder/Varmtvann inkl. i felleskostnader.
Nøkkelinfo
- Boligtype
- Leilighet
- Eieform
- Andel
- Soverom
- 1
- Internt bruksareal
- 60 m² (BRA-i)
- Bruksareal
- 66 m²
- Eksternt bruksareal
- 6 m² (BRA-e)
- Etasje
- 1
- Byggeår
- 1990
- Tomteareal
- 966 m² (eiet)
Fasiliteter
Eiedom
Borggata 5, 1721 Sarpsborg, Etasje: 1
Matrikkel
Gnr. 1 bnr. 400, andelsnr, 101 i Borgermesterløkka II borettslag med orgnr. 951716499 i Sarpsborg kommune.
Beliggenhet
Området er sentral, men samtidig et rolig bo-område. leiligheten ligger mellom St. Marie gata, nær Sarpsborg Scene og Bymuseet, og den renoverte Pellygata, bare noen få minutter fra gågaten.
Kollektivtransporten er svært god med lokalbusser som går like ved, så her kan man fint bo uten bil. Gangavstand til bussterminalen og togstasjonen. Skulle man derimot ha bil, vil man kunne parkere trygt i felles garasjeanlegg i kjelleren. Fra parkering er det stor heis opp til leiligheten som ligger i 1.etasje. Leiligheten ligger i en "høy" 1.etasje og har ingen innsyn fra gateplan.
Felleskostnad inkluder
Komunal avgifter, varmtvann, revisjon, års brannkontroll, ventilasjon kontroll/rens av vifter, forretnigsførsel, bygningsforsikring, styrehonorar, kabel-TV/bredbånd, drift og vedlikehold, heis, felles strøm, vaksmesteravtale, renhold, , avsetning til framtidig vedlikehold, eiendomsskatt m.m.
Om boligen
Borggata 5 er en velholdt 2-roms leilighet som er pusset opp i 2014 med en god standard.
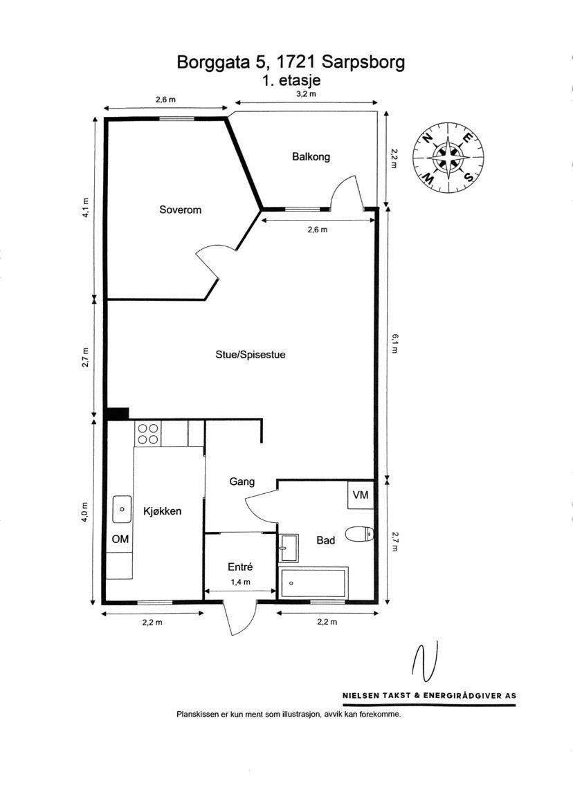
Planløsningen er svært praktisk og har alt du trenger på en flate. Primærarealet er på 60 kvm og har entre/hall, bad, stue, kjøkken, soverom, balkong og terrasse. Fra stuen er det utgang til en overbygget balkong på ca. 6 m2 mot nordøst-vendt. Ved inngangspartiet har leiligheten også en solrik overbygget terrasse med sydvest. Her har man solen store deler av dagen og hele ettermiddagen.
Fra gangen kommer man inn i stuen med god plass for både sofagruppe og spisebord. Stuen blir et samlingspunkt og har plass for å samle hele familien til middag.
Kjøkkenet er fra 2014 med innredning fra Kvik med høyglans fronter. Kjøkkeninnredning med glatte fronter og laminert benkeplate. Nedfelt oppvaskkum i rustfritt stål med ett-greps armatur fra Grohe. Skap og skuffer med soft close.
Kjøkkenplater mellom benkeplate og overskap med stikkontakter på vegg. Integrert oppvaskmaskin fra Bosch. Frittstående komfyr med steketopp fra Gorenja. Kjøleskap følger ikke med. Integrert ventilator fra Flexit tilkoblet avtrekkskanal. Gulvflater belagt med gulvbelegg og vegger utført i tapetserte flater.
Baderommet er plassert i gangen. Oppusset bad i 2014 i lyse delikate farger med nok plass til vaskemaskin og tørketrommel (følger ikke med). Gulvflater belagt med gulvbelegg. Vegger utført i baderomspanel. Badet er oppvarmet ved panalovn. Speil på vegg med overlys og stikkontakt over servant. Badekar med glassdør med ett-greps armatur fra Oras. Gulvmontert toalett fra Ifo. Avtrekksventil i himling tilknyttet ventilasjonsanlegget
Leilighet beliggende i byggets første etasje. Trappefri adkomst via gårdsrom. Stor heis (ny fra 2020) adkomst fra parkeringskjeller. Utgang fra stue til nordøst-vendt terrasse på ca. 6 m2. Leiligheten disponerer to kjellerboder på ca. 2,5 m2 og ca. 1 m2.
Bare ta med møbler og kofferter og begynn å bo!
PARKERING
Parkering på egen oppstillingsplass i felles parkeringskjeller, merket med nr. 101. Muligheter for montering av lader til EL-bil. (plassen er forbeholdt handicap parkering, dersom noen i borettslaget har behov for denne tilpassede plassen skal man bytte plass i garasjeanlegget). Plassen vil bli benyttet som lagringsplass ved utskifting av heisen. Om ny eier har behov for midlertidig plass kan styret være behjelpelig med dette.
Ellers gateparkering etter gjeldende bestemmelser. Utenfor blokken er det gratis parkering lørdag, søndag og hverdag før 0800 og etter 1400. Første to timer er også gratis ved billett eller registrering i app. I nærliggende gater er det muligheter for beboerparkering til kr. 100,- pr. mnd.
Byggmåte
Boligbygg over fire etasjer samt kjeller. Gulv på grunn av betong. Grunnmur, bærende konstruksjoner og skillende dekker i hovedsak av betong med utfyllende bindingsverk av trekonstruksjoner. Fasader utført i teglstein og liggende kledning. Tilnærmet flat takkonstruksjon utvendig tekket med papp/membran (ikke besiktiget). Profilert/glatt entrédør av tre med glassfelt. Balkong dør med karmer av tre og to-lags glass fra 2016. Vinduer med karmer av tre og to-lags glass fra 2014/-16. Vedlikeholdsarbeid ble utført i 2024; fasaden ble rengjøring og maling. Det er ingen planer om nye prosjekter i borettslag (Borgermesterløkka II borettslag. Orgnr: 951716499)
SIKRINGSORDNING FELLESGJELD
Et borettslag er organisert som et selskap, dette innebærer at dersom noen av andelseierne ikke betaler sine fellesutgifter må borettslaget selv ta tapet og fordele det på de øvrige andelseieren, man kan på denne måten bli tvunget til å betale dersom andre ikke betaler sine fellesutgifter. For å hindre at dette skjer er borettslaget tilknyttet en sikringsordning som dekker borettslagets tap i en fastsatt periode dersom noen av andelseierne ikke betaler sin fellesutgifter. Sikringsordningen er levert av IF skadeforsikring (polisenummer: SP865151)
Tekniske instalasjoner
-Ny Otis stor heis fra 2020
-Flexi ventilasjon fra bad og kjøkken
-Felles varmtvann for bygningen
-TV og internett fra Telia
-Sikringsskap med nyere automatsikringer
-Brannslukkingsapparat og røykvarsler
-Elektrisk garasjeport med portåpner
-Easee Charge Core ladestasjon med Plug Pay leverandør
Styregodkjenning
Kjøper skal godkjennes av styrer og har selv risikoen for at godkjennelse blir gitt. Styregodkjennelse kan ikke nektes uten saklig grunn
FORKJØPSRETT
Det er forkjøpsrett for medlemmer og borettslaget, den utlyses etter budaksept. Dersom forkjøpsretten benyttes, løses opprinnelig kjøper fra avtalen og alle økonomiske forpliktelser overfor selger bortfaller. Vær oppmerksom på at forretningsfører har anledning til å belaste et ekstra gebyr til den som benytter forkjøpsrett.
Annet
Om du ikke har mulighet til å komme på visning, holder jeg gjerne privatvisning. Ta kontakt, så finner vi en tid.
Omkostninger
1 995 000 kr (Prisantydning)
251 542 kr (Andel av fellesgjeld)
---
2 246 542 kr (Pris inkl. fellesgjeld)
Omkostninger
8 200 kr (HELP boligkjøperforsikring (valgfritt))
545 kr (Tinglysing av pantedokument)
545 kr (Tinglysing av skjøte)
---
9 290 kr (Omkostninger totalt)
---
2 255 832 kr (Totalpris inkl. omkostninger)
NB: Regnestykket forutsetter at det kun tinglyses én låneobligasjon og at eiendommen selges til prisantydning.
Det tas forbehold om endringer i offentlige og private gebyrer.
Selger er selv ansvarlig for følgende gebyr:
545 kr (Panterett med urådighet)
6 725 kr (Eierskiftegebyr)
Salgsoppgaven beskriver vesentlig og lovpålagt informasjon om eiendommen
Se komplett salgsoppgaveNyttige lenker
Nærområdet
Annonsene kan være mangelfulle i forhold til lovpålagt opplysningsplikt. Før bindende avtale inngås oppfordres interessenter til å innhente komplett informasjon fra meglerforetaket, selger eller utleier.





























