Bildegalleri

Velkommen til Brynjeveien 17B - DNB Eiendom ved Pål Karlstad.
Skjærviken
Velholdt familiebolig med flott sjøutsikt | Balkong og innglasset terrasse | Garasje | Kort vei til det meste
Prisantydning6 150 000 kr
Nøkkelinfo
- Boligtype
- Enebolig
- Eieform
- Eier (Selveier)
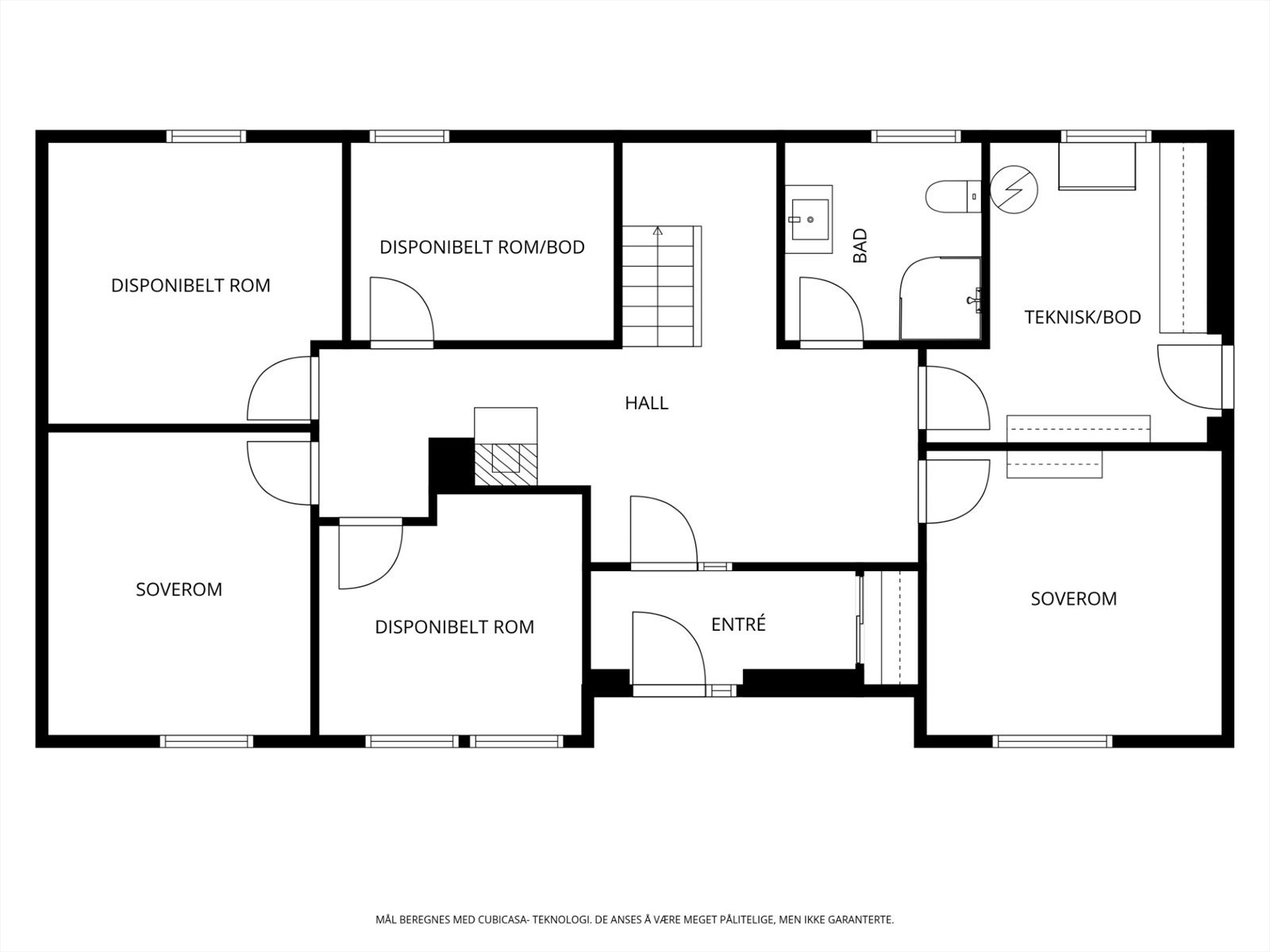
- Soverom
- 3
- Internt bruksareal
- 236 m² (BRA-i)
- Bruksareal
- 305 m²
- Eksternt bruksareal
- 50 m² (BRA-e)
- Innglasset balkong
- 19 m² (BRA-b)
- Balkong/Terrasse
- 25 m² (TBA)
- Byggeår
- 1998
- Energimerking
- C - Gul
- Tomteareal
- 665 m² (eiet)
Fasiliteter
Balkong/Terrasse
Barnevennlig
Garasje/P-plass
Hage
Offentlig vann/kloakk
Peis/Ildsted
Rolig
Utsikt
Visning
søndag, 22. februar
13:00 – 14:00
mandag, 23. februar
16:00 – 17:00
Velkommen til visning! Meld deg på ved å trykke "visningspåmelding" i våre boligannonser. Ta gjerne kontakt med megler i forkant av visningen om du har spørsmål.
VisningspåmeldingOm boligen
Velkommen til Brynjeveien 17B! En innholdsrik og flott enebolig med nydelig utsikt over vannet i Skjærviken.
Dette er et perfekt hjem for familien, beliggende i et trygt og veletablert nabolag. Med nærhet til skog, sjø og den populære badeplassen Vispen, ligger alt til rette for en aktiv hverdag. Her bor du i rolige omgivelser med en enkel logistikk, takket være kort og trygg vei til skole og barnehage.
Høydepunkter:
- Vesentlig oppgradert de siste årene
- Flott sjøutsikt
- Familievennlig planløsning
- Gode solforhold og flere fine uteplasser
- Utvendig malt i 2023
- Kort gangavstand til barnehage, buss og badeplass
- Garasje og rikelig med lagringsplass samt el-billader
Velkommen til visning!
Dette er et perfekt hjem for familien, beliggende i et trygt og veletablert nabolag. Med nærhet til skog, sjø og den populære badeplassen Vispen, ligger alt til rette for en aktiv hverdag. Her bor du i rolige omgivelser med en enkel logistikk, takket være kort og trygg vei til skole og barnehage.
Høydepunkter:
- Vesentlig oppgradert de siste årene
- Flott sjøutsikt
- Familievennlig planløsning
- Gode solforhold og flere fine uteplasser
- Utvendig malt i 2023
- Kort gangavstand til barnehage, buss og badeplass
- Garasje og rikelig med lagringsplass samt el-billader
Velkommen til visning!
NB: Knappen for å vise hele beskrivelsen har kun en visuell effekt.
NB: Knappen for å vise hele beskrivelsen har kun en visuell effekt.
Salgsoppgaven beskriver vesentlig og lovpålagt informasjon om eiendommen
Se komplett salgsoppgaveNyttige lenker
Nærområdet
DNB Eiendom AS
Verdifulle salg
Annonseinformasjon
| FINN-kode | 450571949 |
|---|---|
| Sist endret | 16. feb. 2026 14:26 |
| Referanse | 203250380 |
Annonsene kan være mangelfulle i forhold til lovpålagt opplysningsplikt. Før bindende avtale inngås oppfordres interessenter til å innhente komplett informasjon fra meglerforetaket, selger eller utleier.










































