Bildegalleri

Velkommen til Nermarka 27!
Brundalen
Arealeffektiv leilighet med innglasset balkong | Parkeringsplass. "Alt" inkl. i felleskostnader. Kort vei til NTNU.
Prisantydning1 750 000 kr
Nøkkelinfo
- Boligtype
- Leilighet
- Eieform
- Andel
- Soverom
- 0
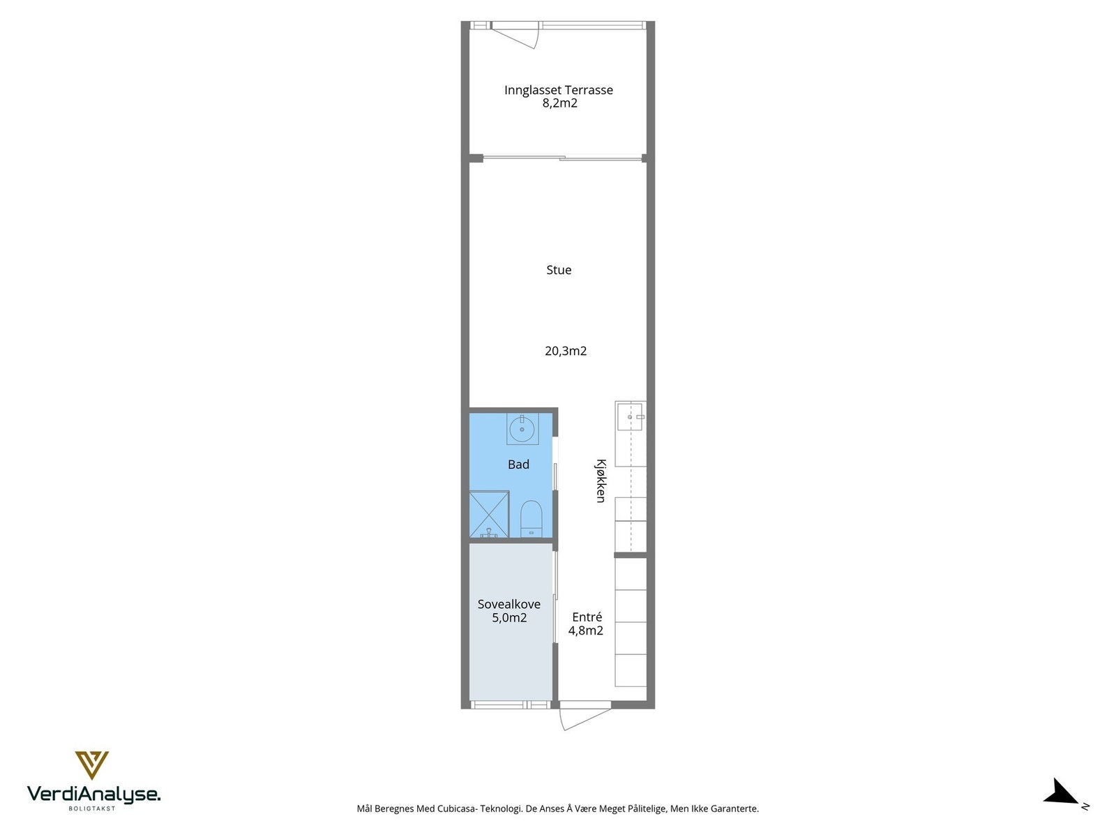
- Internt bruksareal
- 35 m² (BRA-i)
- Bruksareal
- 43 m²
- Innglasset balkong
- 8 m² (BRA-b)
- Balkong/Terrasse
- 8 m² (TBA)
- Etasje
- 1
- Byggeår
- 2005
- Energimerking
- B - Mørkegrønn
- Rom
- 2
- Tomt
- Eiet
Fasiliteter
Barnevennlig
Balkong/Terrasse
Garasje/P-plass
Kabel-TV
Turterreng
Bredbåndstilknytning
Balansert ventilasjon
Visning
tirsdag, 17. februar
15:30 – 16:15
Våre visninger har påmelding. Dette gjør vi for å kunne yte bedre service for våre kunder. Verdifullt for boligkjøper og for oss. Vi anbefaler at salgsoppgaven lastes ned digitalt før visning, og ring oss gjerne på forhånd for spørsmål om boligen. Passer ikke angitt tidspunkt, ta kontakt så finner vi en løsning. Skulle det mot formodning ikke være påmeldte til angitt visningstidspunkt vil ikke visning bli gjennomført.
Om boligen
Velkommen til Nermarka 27 - En arealeffektiv leilighet med flott beliggenhet i Granåslia/Brundalen!
Kvaliteter verdt å nevne:
Kvaliteter verdt å nevne:
- Gangavstand til NTNU.
- Nært kollektivtransport.
- Fast parkeringsplass.
- Fjernvarme, strøm, varmtvann, kabel - tv/internett er inkludert i felleskostnader.
- Bod i kjeller med strømuttak.
- Flislagt bad med varmekabler.
- IN-ordning. (muligheter for individuell nedbetaling av fellesgjeld.
Velkommen til hyggelig visning!:
NB: Knappen for å vise hele beskrivelsen har kun en visuell effekt.
NB: Knappen for å vise hele beskrivelsen har kun en visuell effekt.
Salgsoppgaven beskriver vesentlig og lovpålagt informasjon om eiendommen
Se komplett salgsoppgaveNyttige lenker
Nærområdet
EiendomsMegler 1 Heimdal
Vi loser deg trygt gjennom hele boligsalget
Annonseinformasjon
| FINN-kode | 450562716 |
|---|---|
| Sist endret | 11. feb. 2026 08:05 |
| Referanse | 31260009 |
Annonsene kan være mangelfulle i forhold til lovpålagt opplysningsplikt. Før bindende avtale inngås oppfordres interessenter til å innhente komplett informasjon fra meglerforetaket, selger eller utleier.
















