Bildegalleri

Vi har for salg en veldig hyggelig og tiltalende 2-roms toppleilighet på Kampen!
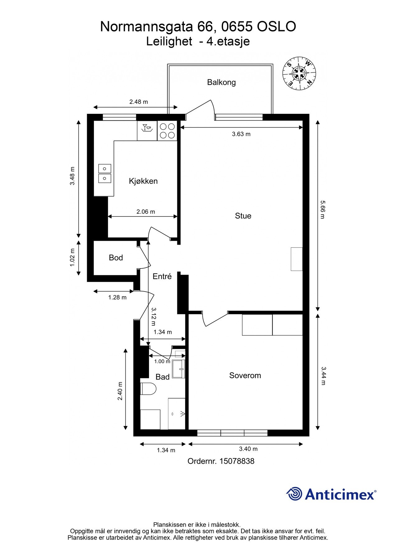
KAMPEN
Lys og sjarmerende 2-roms toppleilighet I Solrik balkong mot pen bakgård I Koselig vedovn I Gulv 2020 I Veldriftet gård
Prisantydning5 350 000 kr
Nøkkelinfo
- Boligtype
- Leilighet
- Eieform
- Aksje
- Soverom
- 1
- Internt bruksareal
- 51 m² (BRA-i)
- Bruksareal
- 56 m²
- Eksternt bruksareal
- 5 m² (BRA-e)
- Balkong/Terrasse
- 5 m² (TBA)
- Etasje
- 4
- Byggeår
- 1934
- Energimerking
- G - Rød
- Rom
- 2
- Tomteareal
- 202 m² (eiet)
Fasiliteter
Barnevennlig
Balkong/Terrasse
Offentlig vann/kloakk
Parkett
Peis/Ildsted
Vaktmester-/vektertjeneste
Fellesvaskeri
Sentralt
Bredbåndstilknytning
Rolig
Visning
søndag, 22. februar
14:15 – 15:00
Meld deg gjerne på visning eller kontakt eiendomsmegler for privatvisning.
mandag, 23. februar
16:30 – 17:00
Meld deg gjerne på visning eller kontakt eiendomsmegler for privatvisning.
Om boligen
Vi har for salg en veldig tiltalende og hyggelig 2-roms toppleilighet i populær gård på Kampen.
Leiligheten har en god intern beliggenhet i 4 etg. Gode lysforhold og en gjennomgående planløsning gir en svært god romfølelse.
Rommene har en god størrelse og de er enkle å møblere.
Om sommeren er den vestvendte balkongen som vender mot bakgården plassen å sitte. Beliggende i hjørnet er den god og varm fra tidlig vår til sent på høsten.
Nå som det er vinter gjør vedovnen i stuen det ekstra koselig og varmt. Det er i tillegg varme i gulvet i stuen.
2 store boder i tillegg til innvendig bod gir rikelig med oppbevaringsplass.
. Solrik vestvendt balkong på 5m²
. Vindu i stue + balkongdør 2026
. Gulv fra 2020 med varmefolie i stue
. God takhøyde på 2,65 meter
. Vedovn
. Ingen forkjøpsrett
Leiligheten har en god intern beliggenhet i 4 etg. Gode lysforhold og en gjennomgående planløsning gir en svært god romfølelse.
Rommene har en god størrelse og de er enkle å møblere.
Om sommeren er den vestvendte balkongen som vender mot bakgården plassen å sitte. Beliggende i hjørnet er den god og varm fra tidlig vår til sent på høsten.
Nå som det er vinter gjør vedovnen i stuen det ekstra koselig og varmt. Det er i tillegg varme i gulvet i stuen.
2 store boder i tillegg til innvendig bod gir rikelig med oppbevaringsplass.
. Solrik vestvendt balkong på 5m²
. Vindu i stue + balkongdør 2026
. Gulv fra 2020 med varmefolie i stue
. God takhøyde på 2,65 meter
. Vedovn
. Ingen forkjøpsrett
NB: Knappen for å vise hele beskrivelsen har kun en visuell effekt.
NB: Knappen for å vise hele beskrivelsen har kun en visuell effekt.
Salgsoppgaven beskriver vesentlig og lovpålagt informasjon om eiendommen
Se komplett salgsoppgaveNærområdet
Schala &Partners Sagene
Verdien av lokalkunnskap
Annonseinformasjon
| FINN-kode | 450556977 |
|---|---|
| Sist endret | 15. feb. 2026 15:19 |
| Referanse | 19260019 |
Annonsene kan være mangelfulle i forhold til lovpålagt opplysningsplikt. Før bindende avtale inngås oppfordres interessenter til å innhente komplett informasjon fra meglerforetaket, selger eller utleier.


































