Bildegalleri

- Nordvik Bolig v/Vang Thi Dang og Nirujan K Nathan har gleden av å presentere Ulsetskogen 116! Foto: Inger Paulsen -
Ulset
Stilrent og modernisert rekkehus med 4 soverom, 2 bad, solrike uteområder og garasje. Populært og barnevennlig område!
Prisantydning5 990 000 kr
Nøkkelinfo
- Boligtype
- Rekkehus
- Eieform
- Andel
- Soverom
- 4
- Internt bruksareal
- 155 m² (BRA-i)
- Bruksareal
- 174 m²
- Eksternt bruksareal
- 19 m² (BRA-e)
- Balkong/Terrasse
- 103 m² (TBA)
- Etasje
- 2
- Byggeår
- 1970
- Energimerking
- E - Oransje
- Rom
- 5
- Tomteareal
- 40 792 m²
Fasiliteter
Balkong/Terrasse
Barnevennlig
Garasje/P-plass
Offentlig vann/kloakk
Rolig
Sentralt
Turterreng
Om boligen
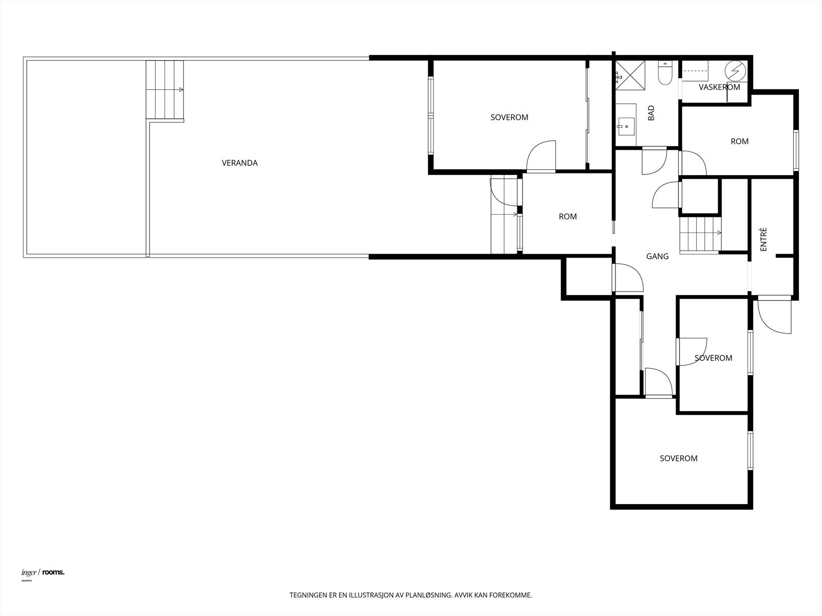
Velholdt og romslig rekkehus over to plan med familievennlig planløsning og gode utearealer. Boligen har et samlet bruksareal på 155 m² (BRA-i) og inneholder blant annet fire soverom, to bad, romslig stue/kjøkken med åpen løsning og utgang til stor, solrik terrasse på ca. 103 m². I tillegg medfølger utvendig sportsbod og garasje på ca. 15 m². Eiendommen er betydelig oppgradert, med blant annet påbygg i 2015, nye bad og vaskerom (2015), nytt elektrisk anlegg (2015), etterisolering av tak og vegger (2023), ny balkong, ny ytterdør og terrassedør (2023), samt ny varmepumpe og elektrisk garasjeport. Det er svært gode solforhold midtsommers. Beliggende i et etablert og barnevennlig boligområde med nærhet til skoler, barnehager, kollektivtransport, servicetilbud og flotte turmuligheter.
NB: Knappen for å vise hele beskrivelsen har kun en visuell effekt.
NB: Knappen for å vise hele beskrivelsen har kun en visuell effekt.
Salgsoppgaven beskriver vesentlig og lovpålagt informasjon om eiendommen
Se komplett salgsoppgaveNyttige lenker
Nærområdet
Nordvik Bergen
Annonseinformasjon
| FINN-kode | 450533377 |
|---|---|
| Sist endret | 12. feb. 2026 11:28 |
| Referanse | 19-0061/26 |
Annonsene kan være mangelfulle i forhold til lovpålagt opplysningsplikt. Før bindende avtale inngås oppfordres interessenter til å innhente komplett informasjon fra meglerforetaket, selger eller utleier.






































