Bildegalleri

Velkommen til Snøklokkeveien 9! Presentert av Eirik Halvorsen/v Nordvik bolig. Foto: Truls Myklevik

Finstadjordet

Attraktiv familiebolig på Finstadjordet | 3 soverom | Stor innglasset balkong 15 m² | Peis | Fast parkering

Prisantydning4 190 000 kr
Totalpris
4 514 011 kr
Omkostninger
9 786 kr
Fellesgjeld
314 225 kr
Felleskost/mnd.
7 344 kr
Fellesformue
129 252 kr
Eiendomsskatt
3 544 kr per år
Formuesverdi
1 301 544 kr

Nøkkelinfo

Boligtype
Leilighet
Eieform
Andel
Soverom
3
Internt bruksareal
95 m² (BRA-i)
Bruksareal
114 m²
Eksternt bruksareal
4 m² (BRA-e)
Innglasset balkong
15 m² (BRA-b)
Etasje
2
Byggeår
1973
Energimerking
D - Gul
Rom
4
Tomteareal
17 000 m² (eiet)

Les mer om bruksareal her

Fasiliteter

Balkong/Terrasse
Barnevennlig
Garasje/P-plass
Kabel-TV
Offentlig vann/kloakk
Peis/Ildsted
Rolig
Sentralt
Turterreng
Lademulighet

Visning

søndag, 22. februar
14:30 – 15:30
mandag, 23. februar
17:00 – 18:00
Visningspåmelding

Om boligen

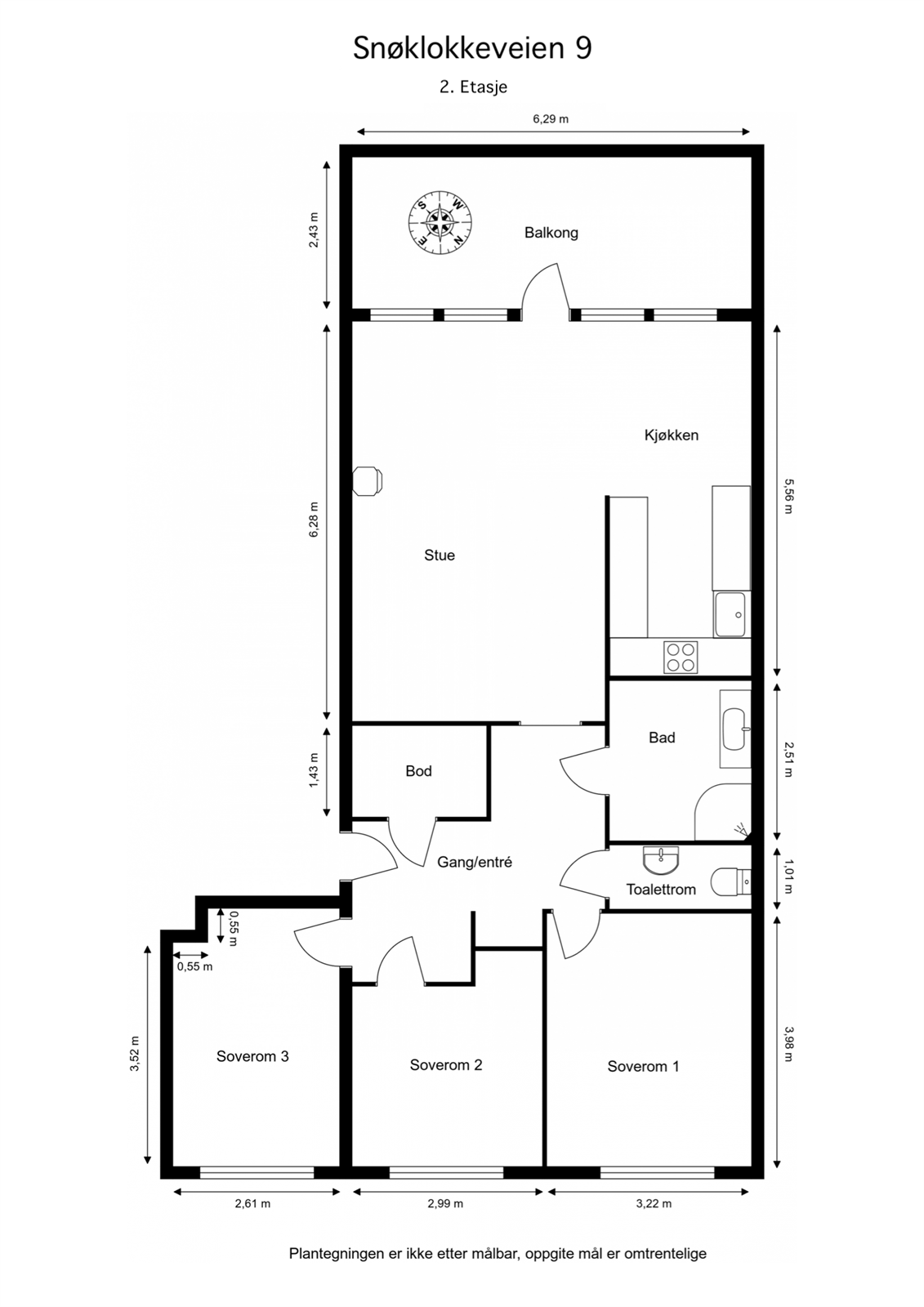
Velkommen til Snøklokkeveien 9!

Boligen ligger i et rolig og veletablert boligområde med kort vei til det meste familien trenger i hverdagen. Her bor du med nærhet til barnehager, skoler, dagligvarebutikk og kollektivtransport. Området byr også på fine turmuligheter i grønne omgivelser, perfekt for både store og små.

Leiligheten har en praktisk og gjennomtenkt planløsning med tre gode soverom, separat toalett og gode oppbevaringsløsninger. Den store innglassede balkongen fungerer som et ekstra rom store deler av året.

Høydepunkter:

Gjennomgående planløsning
Kjøkken med integrerte hvitevarer
Bad med opplegg for vaskemaskin og tørk
Innglasset balkong på ca. 15 m²
God lagringsplass i boder
Fast parkeringsplass med mulighet for lading

Velkommen til visning!

Salgsoppgaven beskriver vesentlig og lovpålagt informasjon om eiendommen

Se komplett salgsoppgave

Nærområdet

Annonseinformasjon

FINN-kode450526895
Sist endret13. feb. 2026 04:03
Referanse64-0012/26

Rapporter annonse

Annonsene kan være mangelfulle i forhold til lovpålagt opplysningsplikt. Før bindende avtale inngås oppfordres interessenter til å innhente komplett informasjon fra meglerforetaket, selger eller utleier.