Bildegalleri

Nordvik Bolig ved Henrik Larsen (936 27 522) ønsker velkommen til Fyenveien 11!
Sørumsand
Spennende & innholdsrik enebolig med stort potensial! Terrasse på 85 kvm - Garasje - Sentral beliggenhet - Solrik tomt
Prisantydning4 200 000 kr
Nøkkelinfo
- Boligtype
- Enebolig
- Eieform
- Eier (Selveier)
- Soverom
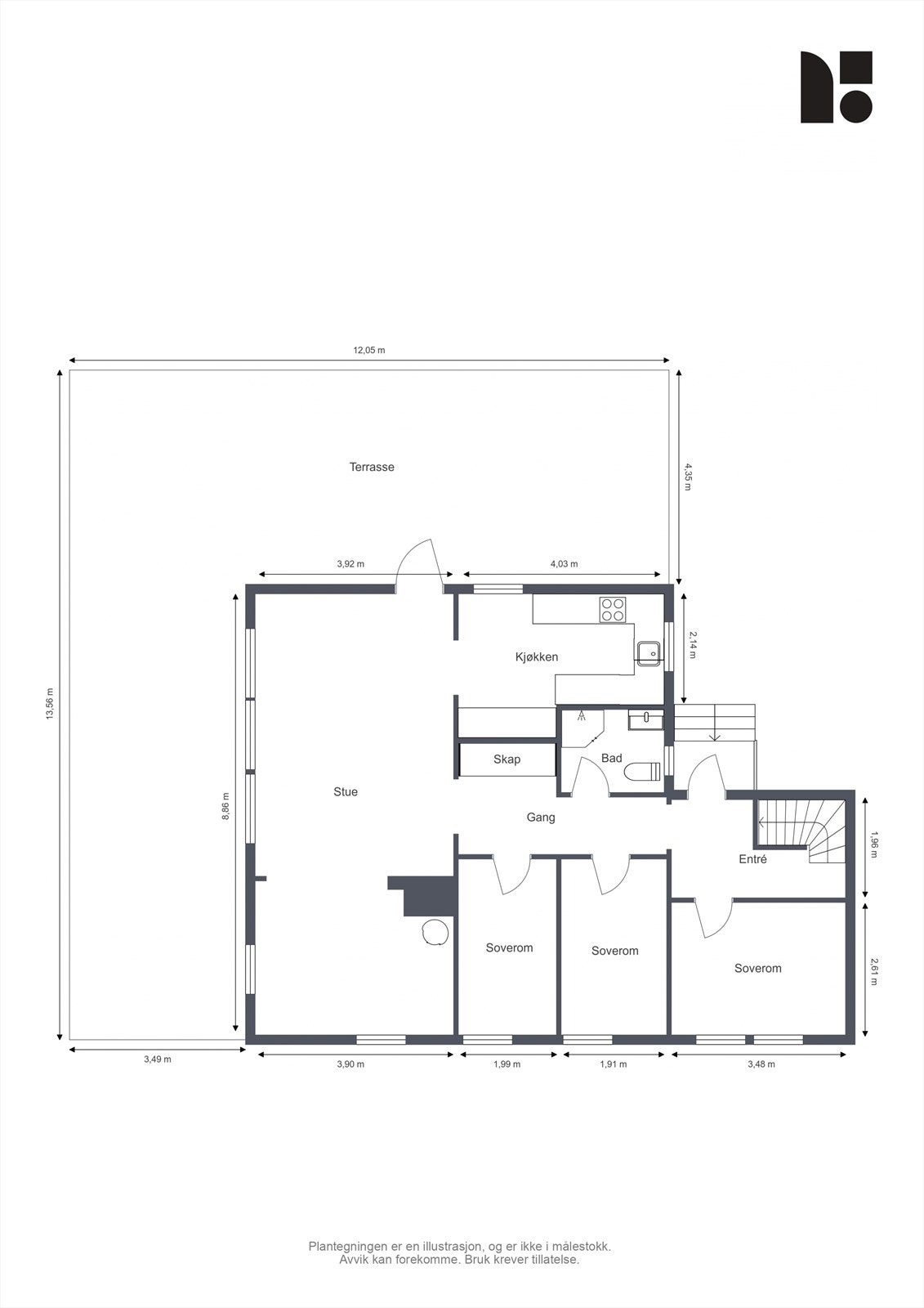
- 3
- Internt bruksareal
- 171 m² (BRA-i)
- Bruksareal
- 198 m²
- Eksternt bruksareal
- 27 m² (BRA-e)
- Balkong/Terrasse
- 85 m² (TBA)
- Byggeår
- 1958
- Energimerking
- G - Gul
- Rom
- 4
- Tomteareal
- 731 m² (eiet)
Fasiliteter
Balkong/Terrasse
Barnevennlig
Bredbåndstilknytning
Garasje/P-plass
Hage
Kjæledyr tillatt
Kabel-TV
Offentlig vann/kloakk
Peis/Ildsted
Rolig
Sentralt
Utsikt
Bademulighet
Fiskemulighet
Turterreng
Om boligen
Velkommen til Fyenveien 11!
En spennende og innholdsrik enebolig med flotte uteområder og stort potensial! Boligens underetasje er klar for innredning og planløsning - skap ditt nye drømmehjem! Fyenveien 11 ligger i et barnevennlig område i Sørumsand i Lillestrøm kommune, like ved Sørumsand sentrum. Her får man derfor skoler for alle alderstrinn, god offentlig kommunikasjon, samt gode servicetilbud og flere fasiliteter.
Verdt å merke seg:
- 3 soverom av god størrelse
- Garasje på 27 kvm
- Solrik tomt
- Varmepumpe fra 2018
- Syd- og vestvendt terrasse på hele 85 kvm!
- Stor og pent opparbeidet hage
- Separat kjøkken
- Kjeller er ikke ferdigstilt, men tilbyr en rekke utviklingsmuligheter
- Nærhet til skog og mark med fine turområder
- Kort vei til offentlig kommunikasjon med hyppige avgang
En spennende og innholdsrik enebolig med flotte uteområder og stort potensial! Boligens underetasje er klar for innredning og planløsning - skap ditt nye drømmehjem! Fyenveien 11 ligger i et barnevennlig område i Sørumsand i Lillestrøm kommune, like ved Sørumsand sentrum. Her får man derfor skoler for alle alderstrinn, god offentlig kommunikasjon, samt gode servicetilbud og flere fasiliteter.
Verdt å merke seg:
- 3 soverom av god størrelse
- Garasje på 27 kvm
- Solrik tomt
- Varmepumpe fra 2018
- Syd- og vestvendt terrasse på hele 85 kvm!
- Stor og pent opparbeidet hage
- Separat kjøkken
- Kjeller er ikke ferdigstilt, men tilbyr en rekke utviklingsmuligheter
- Nærhet til skog og mark med fine turområder
- Kort vei til offentlig kommunikasjon med hyppige avgang
NB: Knappen for å vise hele beskrivelsen har kun en visuell effekt.
NB: Knappen for å vise hele beskrivelsen har kun en visuell effekt.
Salgsoppgaven beskriver vesentlig og lovpålagt informasjon om eiendommen
Se komplett salgsoppgaveNyttige lenker
Nærområdet
Nordvik Lillestrøm
Annonseinformasjon
| FINN-kode | 450470869 |
|---|---|
| Sist endret | 11. feb. 2026 14:09 |
| Referanse | 60-0045/26 |
Annonsene kan være mangelfulle i forhold til lovpålagt opplysningsplikt. Før bindende avtale inngås oppfordres interessenter til å innhente komplett informasjon fra meglerforetaket, selger eller utleier.









































