Bildegalleri

Aktiv Finnsnes presenterer Anton Silsands vei 64A! Delikat og innholdsrik enebolig med utleie og garasje sentralt på Silsand - påkostet kjøkken og utvendige screens.

VISNING 26/​2! Delikat og innholdsrik enebolig med utleie og garasje på Silsand - påkostet kjøkken og utvendige screens.

Prisantydning8 200 000 kr
Totalpris
8 423 280 kr
Omkostninger
223 280 kr
Kommunale avg.
31 158 kr per år
Formuesverdi
1 269 282 kr

Nøkkelinfo

Boligtype
Enebolig
Eieform
Eier (Selveier)
Soverom
5
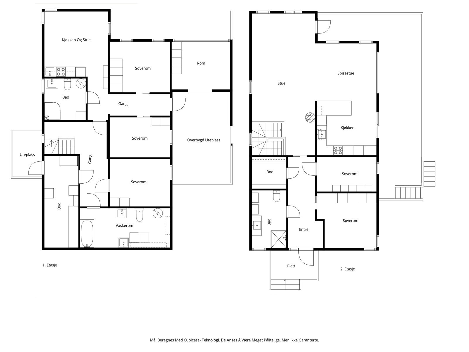
Internt bruksareal
199 m² (BRA-i)
Bruksareal
231 m²
Eksternt bruksareal
32 m² (BRA-e)
Balkong/Terrasse
93 m² (TBA)
Etasje
2
Byggeår
2019
Energimerking
B - Rød
Rom
7
Tomteareal
769 m² (eiet)

Les mer om bruksareal her

Visning

torsdag, 26. februar
16:30 – 17:30
Visningspåmelding

Om boligen

Frittliggende enebolig med utleie og garasje. Boligen har meget fin beliggenhet i Boligparken på Silsand med en fantastisk utsikt og gode solforhold. Boligen har bra planløsning med bad og soverom i begge etasjer, og åpen løsning mellom stue og kjøkken. Tidsriktig enebolig med downlights i taket, utvendige screens på vindu i stue og påkostet kjøkken. Utleiedelen i underetasjen fremstår som tidsriktig med lyse overflater, og har skjermet adkomst.

Boligparken Silsand er et attraktivt og barnevennlig område med Silsandmarka like ovenfor, med tråkket skiløype på vinteren. Felles uteområde er opparbeidet med lekeplass, bålpanne og utemøbler. Det er gangavstand til barnehager, og kort vei til skole og matbutikk.

Salgsoppgaven beskriver vesentlig og lovpålagt informasjon om eiendommen

Se komplett salgsoppgave

Nærområdet

Annonseinformasjon

FINN-kode450468191
Sist endret12. feb. 2026 08:21
Referanse1901250225

Rapporter annonse

Annonsene kan være mangelfulle i forhold til lovpålagt opplysningsplikt. Før bindende avtale inngås oppfordres interessenter til å innhente komplett informasjon fra meglerforetaket, selger eller utleier.