Bildegalleri

PrivatMegleren v/Stefan Mladenovic har gleden av å presentere Gunnar Knudsens veg 112 - Spennende bolig/forretnings eiendom beliggende på Borgestad. Foto: THT Foto
Borgestad
Kombinert enebolig med forretningslokale 1.etg og leilighet i 2. etg - Forretningslokale har gode profileringsmuligheter
Prisantydning3 500 000 kr
Nøkkelinfo
- Boligtype
- Enebolig
- Eieform
- Eier (Selveier)
- Soverom
- 3
- Internt bruksareal
- 221 m² (BRA-i)
- Bruksareal
- 241 m²
- Eksternt bruksareal
- 20 m² (BRA-e)
- Balkong/Terrasse
- 90 m² (TBA)
- Etasje
- 2
- Byggeår
- 1923
- Energimerking
- G - Rød
- Tomteareal
- 543 m² (festet)
- Festeavgift
- 1 464 kr
Fasiliteter
Balkong/Terrasse
Garasje/P-plass
Kabel-TV
Offentlig vann/kloakk
Bredbåndstilknytning
Visning
torsdag, 26. februar
16:00 – 17:00
Velkommen til visning!
Alle våre visninger har påmelding. På denne måten sikrer vi at megler har god oversikt og tid til å imøtekomme alle interessenter på beste måte. Dette er veldig verdifullt for boligkjøpere og for oss. Det er enkelt å melde seg på, og du kan like enkelt melde deg av. Kontakt også gjerne megler i forkant av visning dersom du har spørsmål.
Om boligen
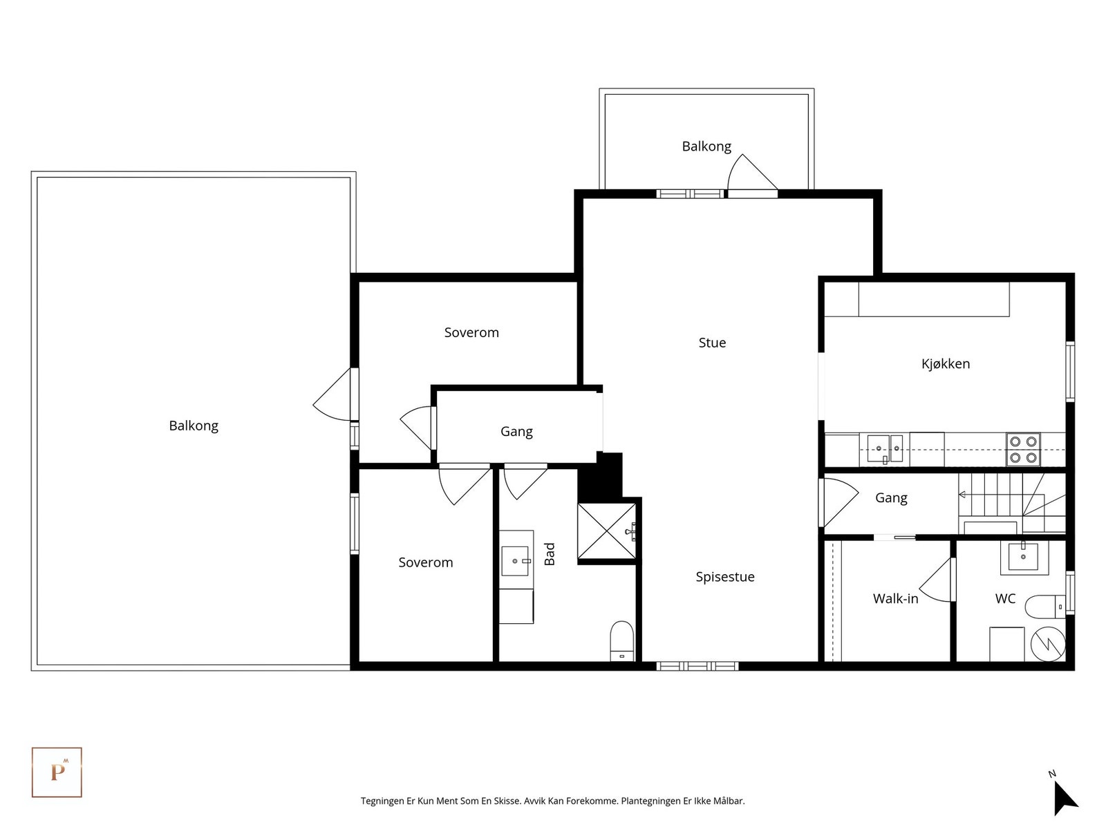
PrivatMegleren v/Stefan Mladenovic har gleden av å presentere Gunnar Knudsens veg 112 - En spennende enebolig som er kombinert forretning/bolig, men benyttes idag som to utleiedeler. Eiendommen er ikke registrert med godkjente utleiedeler. Eiendommens 1. etasje har gode profileringsmuligheter ut mot veien og 2. etasje inneholder en leilighet på 80 kvm med 2 soverom, bad, kjøkken stue og wc/vaskerom. Begge etasjene er leid ut og har leieinntekter på til sammen 16 500,- kr. pr mnd.
2. etasje har en stor terrasse på 35 kvm, hvor eier opplyser om gode solforhold. Eiendommen ligger på Borgestad og har en fin beliggenhet mellom Skien og Porsgrunn. Det er god plass til parkering utenfor inngangen til 1. etasje, det er plass til cirka 6-8 biler i tillegg til garasje.
Eiendommen er stedvis renovert mellom 2020 og 2021.
Inneholder:
1. etasje - 2 kontor, bad, kjøkken og soverom
2. etasje - 2 soverom, bad, wc/vaskerom, kjøkken og stue
2. etasje har en stor terrasse på 35 kvm, hvor eier opplyser om gode solforhold. Eiendommen ligger på Borgestad og har en fin beliggenhet mellom Skien og Porsgrunn. Det er god plass til parkering utenfor inngangen til 1. etasje, det er plass til cirka 6-8 biler i tillegg til garasje.
Eiendommen er stedvis renovert mellom 2020 og 2021.
Inneholder:
1. etasje - 2 kontor, bad, kjøkken og soverom
2. etasje - 2 soverom, bad, wc/vaskerom, kjøkken og stue
NB: Knappen for å vise hele beskrivelsen har kun en visuell effekt.
NB: Knappen for å vise hele beskrivelsen har kun en visuell effekt.
Salgsoppgaven beskriver vesentlig og lovpålagt informasjon om eiendommen
Se komplett salgsoppgaveNyttige lenker
Nærområdet
PrivatMegleren Telemark
Kun det beste på dine vegne
Annonseinformasjon
| FINN-kode | 450467563 |
|---|---|
| Sist endret | 10. feb. 2026 13:52 |
| Referanse | 103260002 |
Annonsene kan være mangelfulle i forhold til lovpålagt opplysningsplikt. Før bindende avtale inngås oppfordres interessenter til å innhente komplett informasjon fra meglerforetaket, selger eller utleier.










































