Bildegalleri

EIE Jessheim v/Henrik Drabløs har gleden av å presentere Dampsaga allé 68! Foto av Siri Faafeng (EFKT).
Stilren & lekker 3-roms (2022) midt i byen! | Gjennomgående planløsning | 2 balkonger & garasjeplass | Nærhet til "alt"
Prisantydning5 400 000 kr
Nøkkelinfo
- Boligtype
- Leilighet
- Eieform
- Eier (Selveier)
- Soverom
- 2
- Internt bruksareal
- 74 m² (BRA-i)
- Bruksareal
- 90 m²
- Eksternt bruksareal
- 5 m² (BRA-e)
- Innglasset balkong
- 11 m² (BRA-b)
- Balkong/Terrasse
- 3 m² (TBA)
- Etasje
- 5
- Byggeår
- 2022
- Energimerking
- B - Lysegrønn
- Rom
- 3
- Tomteareal
- 3 661 m² (eiet)
Fasiliteter
Balkong/Terrasse
Garasje/P-plass
Heis
Offentlig vann/kloakk
Sentralt
Moderne
Balansert ventilasjon
Visning
tirsdag, 24. februar
17:30 – 18:30
For å yte premium rådgivning, har alle våre visninger påmelding. Dette sikrer at megler har god oversikt og tid til å imøtekomme alle interessenter på aller beste måte. Dersom ingen interessenter er påmeldt, kan visningen bli avlyst.
Om boligen
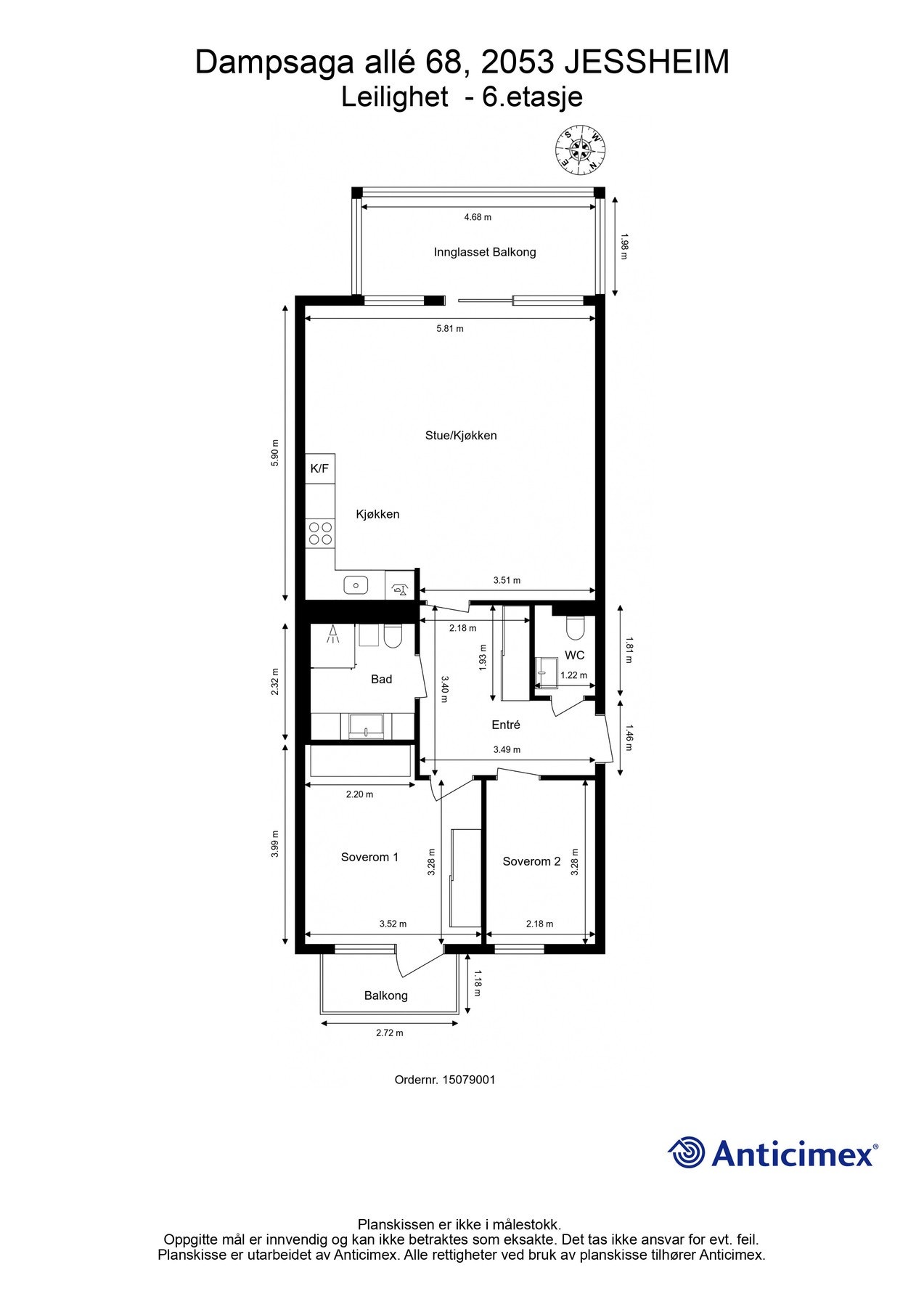
EIE Jessheim v/Henrik Drabløs har gleden av å presentere Dampsaga allé 68! Denne stilrene og moderne 3-roms leiligheten fra 2022 byr på gjennomgående, gode kvaliteter, praktisk planløsning og høy bokomfort.
Leiligheten byr på en romslig entré og et lekkert kjøkken i åpen løsning mot stuen - et naturlig samlingspunkt for både hverdag og sosiale anledninger. Store vindusflater slipper inn rikelig med dagslys og skaper en luftig atmosfære, med utgang til en innglasset balkong som fungerer som en ekstra stue store deler av året. To gode soverom gir fleksible bruksmuligheter, og hovedsoverommet har direkte adkomst til privat balkong med herlig kveldssol. Delikat, flislagt baderom, samt separat toalettrom for ekstra fleksibilitet. Det er vannbåren gulvvarme og varmekabler på bad. Heis i bygget, bod og fast garasjeplass gjør hverdagen enkel og komfortabel.
Her bor du midt i Jessheim sentrum, med gangavstand til alle hverdagslige fasiliteter.
Mangler du egenkapital? Kjøp med Finit deleie.
Leiligheten byr på en romslig entré og et lekkert kjøkken i åpen løsning mot stuen - et naturlig samlingspunkt for både hverdag og sosiale anledninger. Store vindusflater slipper inn rikelig med dagslys og skaper en luftig atmosfære, med utgang til en innglasset balkong som fungerer som en ekstra stue store deler av året. To gode soverom gir fleksible bruksmuligheter, og hovedsoverommet har direkte adkomst til privat balkong med herlig kveldssol. Delikat, flislagt baderom, samt separat toalettrom for ekstra fleksibilitet. Det er vannbåren gulvvarme og varmekabler på bad. Heis i bygget, bod og fast garasjeplass gjør hverdagen enkel og komfortabel.
Her bor du midt i Jessheim sentrum, med gangavstand til alle hverdagslige fasiliteter.
Mangler du egenkapital? Kjøp med Finit deleie.
NB: Knappen for å vise hele beskrivelsen har kun en visuell effekt.
NB: Knappen for å vise hele beskrivelsen har kun en visuell effekt.
Salgsoppgaven beskriver vesentlig og lovpålagt informasjon om eiendommen
Se komplett salgsoppgaveNærområdet
EIE eiendomsmegling Jessheim
Annonseinformasjon
| FINN-kode | 450424750 |
|---|---|
| Sist endret | 13. feb. 2026 09:57 |
| Referanse | 20260021 |
Annonsene kan være mangelfulle i forhold til lovpålagt opplysningsplikt. Før bindende avtale inngås oppfordres interessenter til å innhente komplett informasjon fra meglerforetaket, selger eller utleier.



































