Bildegalleri

- Velkommen til Munkerudkleiva 8B, presentert av Soliman Sarwar -

Pen og innholdsrik bolig over 3 plan med barnevennlig beliggenhet | Nærhet til marka | Egen inng./​hybel mulighet i u.etg

Prisantydning10 600 000 kr
Totalpris
10 866 090 kr
Omkostninger
266 090 kr
Kommunale avg.
27 049 kr per år

Nøkkelinfo

Boligtype
Tomannsbolig
Eieform
Eier (Selveier)
Soverom
4
Internt bruksareal
158 m² (BRA-i)
Bruksareal
158 m²
Balkong/Terrasse
13 m² (TBA)
Byggeår
1998
Rom
6
Tomteareal
364 m² (eiet)

Les mer om bruksareal her

Fasiliteter

Barnevennlig
Balkong/Terrasse
Garasje/P-plass
Offentlig vann/kloakk
Turterreng
Sentralt
Bredbåndstilknytning
Rolig

Visning

søndag, 22. februar
12:00 – 12:45
Velkommen til visning! Alle våre visninger har påmelding. På denne måten sikrer vi at megler har god oversikt og tid til å imøtekomme alle interessenter på beste måte. Dette er veldig verdifullt for boligkjøpere og for oss. Det er enkelt å melde seg på, og du kan like enkelt melde deg av. Kontakt også gjerne megler i forkant av visning dersom du har spørsmål.
Visningspåmelding

Om boligen

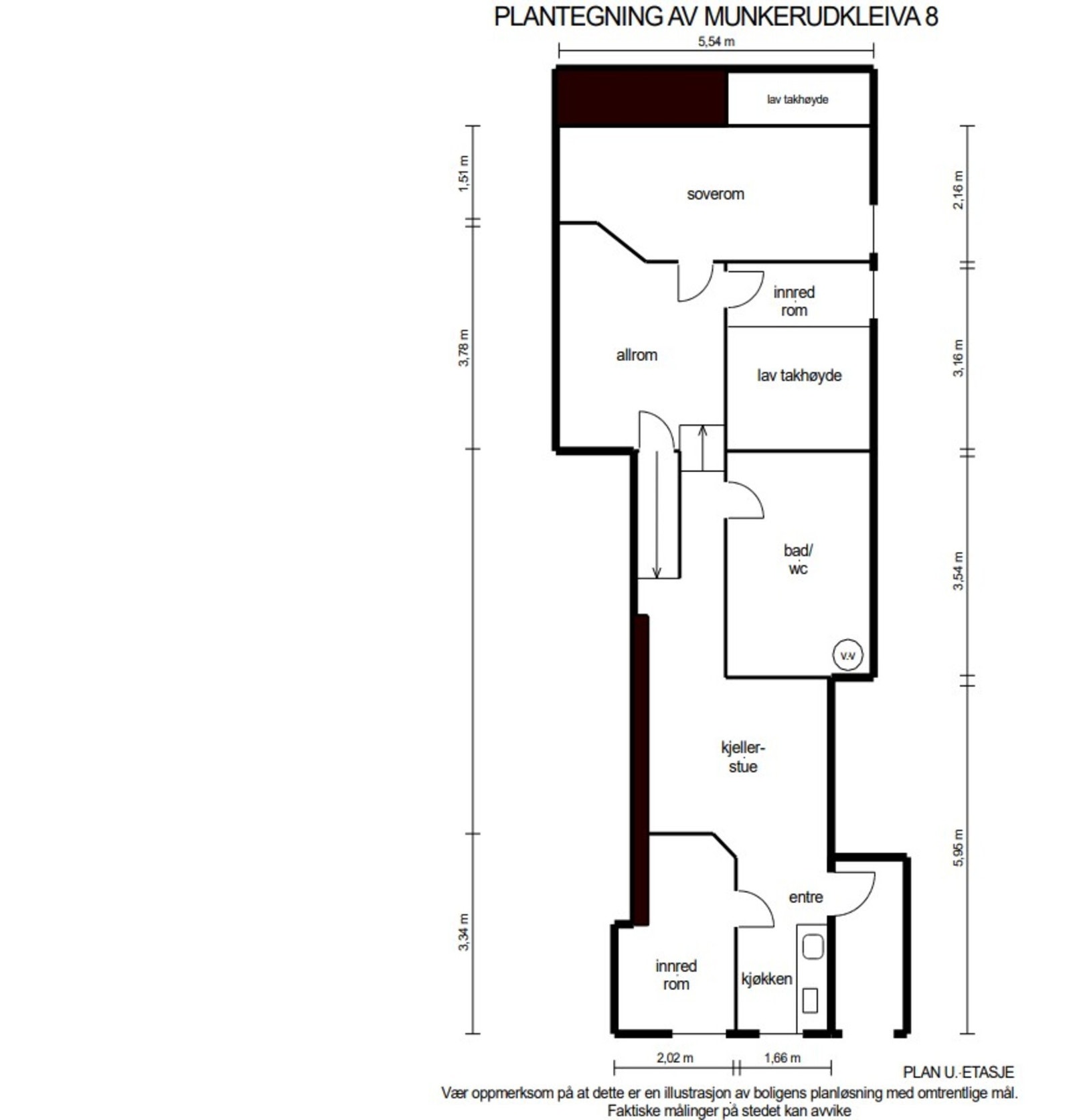
Innholdsrik bolig over tre plan, inkludert loft, med funksjonell planløsning og barnevennlig beliggenhet. Boligen er nylig overflatebehandlet innvendig, men det må påregnes noe videre oppgraderingsbehov. Innvendig fremstår boligen med lyse laminatgulv, tidsriktige fargevalg og innfelte LED-spotter i himlinger. Det er nylig utført drenering rundt grunnmuren. Utvendig byr eiendommen på flere terrasser, skjermede uteområder og parkering på egen gårdsplass.

Hovedstuen har skråtak, store vindusflater og plass til spisebord. Kjøkkenet ligger i eget rom og har integrerte hvitevarer samt plass til spisebord. Videre inneholder boligen kjellerstue, allrom, innredet rom og to flislagte bad, hvorav ett med boblebad. Det er totalt tre soverom, samt egen bi-inngang til underetasjen, som gir gode muligheter for egen ungdomsavdeling. Eiendommen ligger med nærhet til barnehager og Munkerud skole.

Salgsoppgaven beskriver vesentlig og lovpålagt informasjon om eiendommen

Se komplett salgsoppgave

Nærområdet

Annonseinformasjon

FINN-kode450387503
Sist endret13. feb. 2026 12:51
Referanse38251427

Rapporter annonse

Annonsene kan være mangelfulle i forhold til lovpålagt opplysningsplikt. Før bindende avtale inngås oppfordres interessenter til å innhente komplett informasjon fra meglerforetaket, selger eller utleier.