Bildegalleri

Velkommen til Gjelsteinvegen 127!
Gjelstein
Idyllisk landbrukseiendom på 148 mål med strandlinje - Enebolig fra 2006, låve, anneks og traktorgarasje
Prisantydning5 000 000 kr
Nøkkelinfo
- Boligtype
- Gårdsbruk/Småbruk
- Eieform
- Eier (Selveier)
- Soverom
- 3
- Internt bruksareal
- 243 m² (BRA-i)
- Bruksareal
- 656 m²
- Eksternt bruksareal
- 413 m² (BRA-e)
- Balkong/Terrasse
- 96 m² (TBA)
- Byggeår
- 2006
- Energimerking
- D - Gul
- Rom
- 5
- Tomteareal
- 148 000 m² (eiet)
Fasiliteter
Barnevennlig
Balkong/Terrasse
Garasje/P-plass
Fiskemulighet
Peis/Ildsted
Strandlinje
Turterreng
Utsikt
Rolig
Visning
onsdag, 25. februar
16:30 – 17:30
Våre visninger har påmelding. Dette gjør vi for å kunne yte bedre service for våre kunder. Verdifullt for boligkjøper og for oss. Vi anbefaler at salgsoppgaven lastes ned digitalt før visning, og ring oss gjerne på forhånd for spørsmål om boligen. Passer ikke angitt tidspunkt, ta kontakt så finner vi en løsning. Skulle det mot formodning ikke være påmeldte til angitt visningstidspunkt vil ikke visning bli gjennomført.
Om boligen
Velkommen til Gjelsteinvegen 127!
Flott eiendom på Gjelsteinstranda. Eiendommen er meget pent opparbeidet og har nydelig sjøutsikt. Rett over veien for eiendommen har man egen strandlinje og nausttomt.
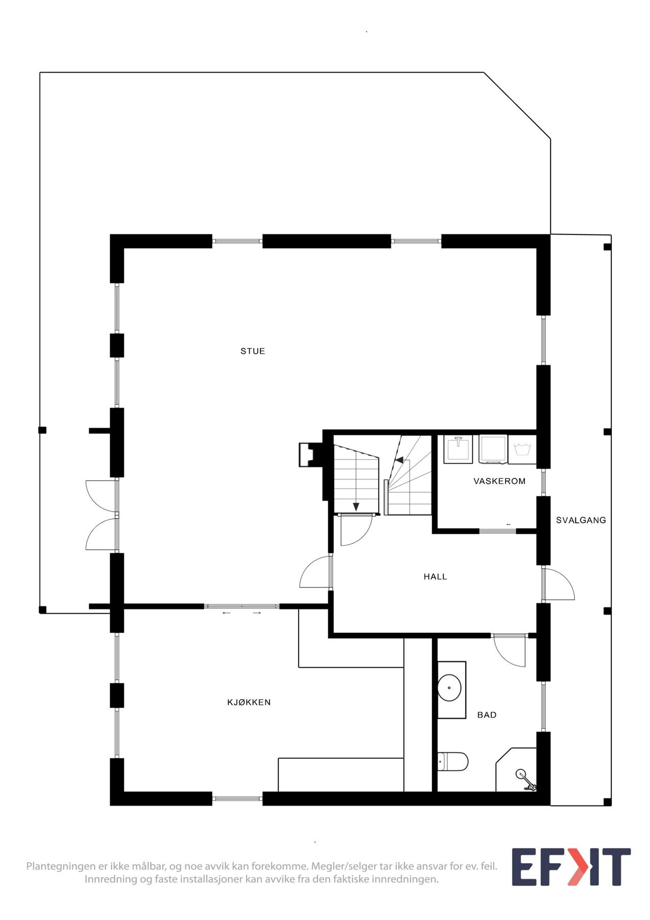
Eneboligen ble bygd i 2006 og fremstår i god stand. Innvendig er flere rom modernisert. Boligen går over tre plan og er innholdsrik. Deler av kjelleretasjen er innredet med kjøkken, bad, stue og soverom og har vært utleid. I byggetegninger er kjelleretasjen uinnredet og rom krever bruksendring hos Vestnes kommune.
Eldre, men stor låve. I kjeller på låven er det montert garasjeport. Traktorgarasjen ble bygd i 2007. Tilhørende eiendommen har man også nesten 100 dekar produktiv skog og en teig nært Rekdalssetra.
Flott eiendom på Gjelsteinstranda. Eiendommen er meget pent opparbeidet og har nydelig sjøutsikt. Rett over veien for eiendommen har man egen strandlinje og nausttomt.
Eneboligen ble bygd i 2006 og fremstår i god stand. Innvendig er flere rom modernisert. Boligen går over tre plan og er innholdsrik. Deler av kjelleretasjen er innredet med kjøkken, bad, stue og soverom og har vært utleid. I byggetegninger er kjelleretasjen uinnredet og rom krever bruksendring hos Vestnes kommune.
Eldre, men stor låve. I kjeller på låven er det montert garasjeport. Traktorgarasjen ble bygd i 2007. Tilhørende eiendommen har man også nesten 100 dekar produktiv skog og en teig nært Rekdalssetra.
NB: Knappen for å vise hele beskrivelsen har kun en visuell effekt.
NB: Knappen for å vise hele beskrivelsen har kun en visuell effekt.
Salgsoppgaven beskriver vesentlig og lovpålagt informasjon om eiendommen
Se komplett salgsoppgaveNyttige lenker
Nærområdet
EiendomsMegler 1 Molde
Vi loser deg trygt gjennom hele boligsalget
Annonseinformasjon
| FINN-kode | 450378725 |
|---|---|
| Sist endret | 13. feb. 2026 16:06 |
| Referanse | 13250029 |
Annonsene kan være mangelfulle i forhold til lovpålagt opplysningsplikt. Før bindende avtale inngås oppfordres interessenter til å innhente komplett informasjon fra meglerforetaket, selger eller utleier.





























