Bildegalleri

Helgesens gate 80F presenteres av DNB Eiendom ved Anders Selvik.
Sofienberg
Meget pen 4-roms selveier på populære Sofienberg | Sentral og attraktiv beliggenhet ved Ola Narr | Fyring og v/v inkl.
Prisantydning5 650 000 kr
Nøkkelinfo
- Boligtype
- Leilighet
- Eieform
- Eier (Selveier)
- Soverom
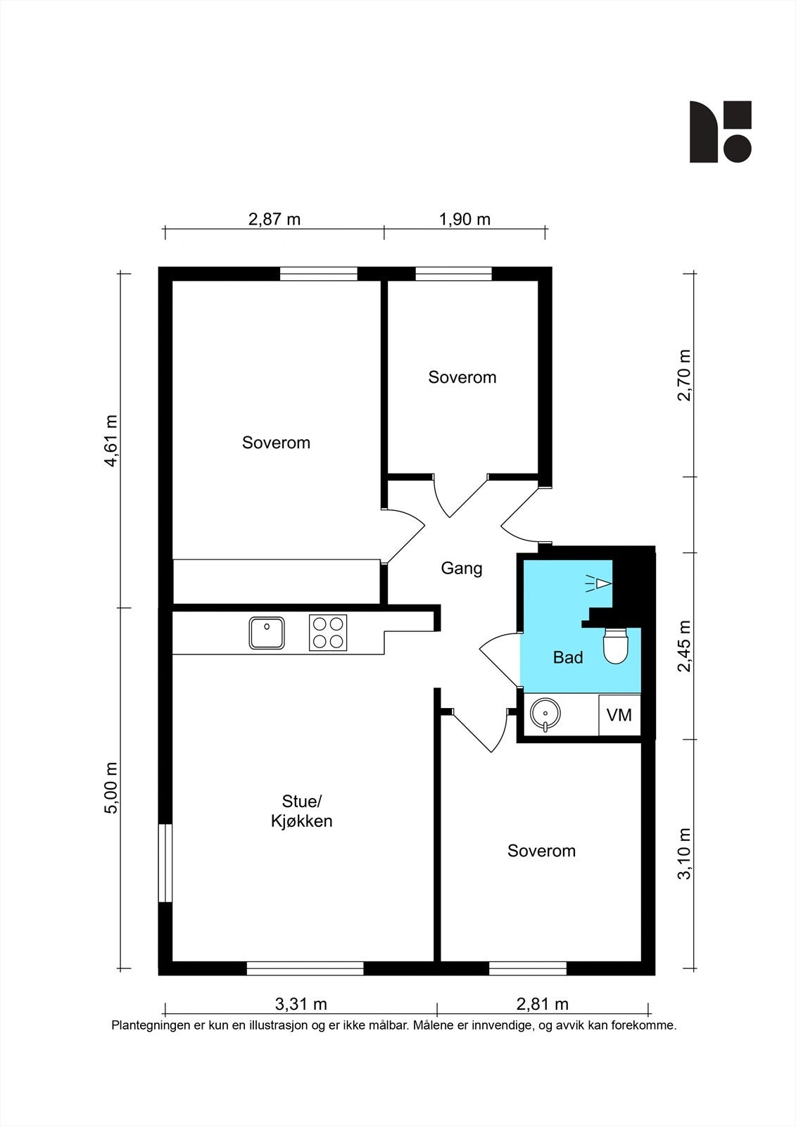
- 3
- Internt bruksareal
- 62 m² (BRA-i)
- Bruksareal
- 67 m²
- Eksternt bruksareal
- 5 m² (BRA-e)
- Etasje
- 1
- Byggeår
- 1940
- Energimerking
- G - Mørkegrønn
- Rom
- 4
- Tomteareal
- 2 165 m² (eiet)
Fasiliteter
Kjæledyr tillatt
Offentlig vann/kloakk
Parkett
Sentralt
Turterreng
Om boligen
Meget pen og gjennomført 4-roms leilighet beliggende sentralt til på populære Sofienberg med Ola Narr parken som nærmeste nabo. Her bor du kun få minutters gange unna pulserende Grünerløkka, et rikt utvalg av restauranter, koselige kaféer og populære utesteder. Samtidig kan området by på flere grønne lunger som Botanisk hage, Sofienbergparken, Akerselva og ikke minst nye Tøyenbadet, som ligger i umiddelbar nærhet til leiligheten.
Leiligheten ligger i høy 1.etasje med en god planløsning. Her får du en praktisk gang med god plass til sko og yttertøy, tre soverom, meget pent flislagt bad, samt stue/kjøkken i åpen løsning.
Leiligheten er opprinnelig en tre-roms. Nåværende eier har flyttet kjøkkenet ut i stuen, og etablert ekstra soverom der hvor kjøkkenet opprinnelig var.
Leiligheten ligger i høy 1.etasje med en god planløsning. Her får du en praktisk gang med god plass til sko og yttertøy, tre soverom, meget pent flislagt bad, samt stue/kjøkken i åpen løsning.
Leiligheten er opprinnelig en tre-roms. Nåværende eier har flyttet kjøkkenet ut i stuen, og etablert ekstra soverom der hvor kjøkkenet opprinnelig var.
NB: Knappen for å vise hele beskrivelsen har kun en visuell effekt.
NB: Knappen for å vise hele beskrivelsen har kun en visuell effekt.
Salgsoppgaven beskriver vesentlig og lovpålagt informasjon om eiendommen
Se komplett salgsoppgaveNyttige lenker
Nærområdet
DNB Eiendom AS
Verdifulle salg
Annonseinformasjon
| FINN-kode | 450327017 |
|---|---|
| Sist endret | 10. feb. 2026 13:57 |
| Referanse | 310260039 |
Annonsene kan være mangelfulle i forhold til lovpålagt opplysningsplikt. Før bindende avtale inngås oppfordres interessenter til å innhente komplett informasjon fra meglerforetaket, selger eller utleier.































