Bildegalleri

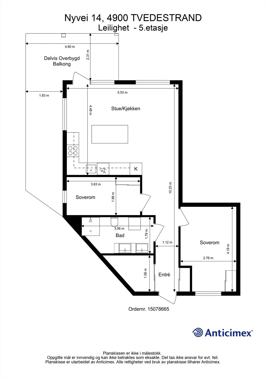
Pen sentrumsleilighet med stor balkong og to soverom. Leiligheten er lys og delikat med gode løsninger.
Loggen Brygge
Meget pen 3-roms leilighet med stor terrasse - 5. etasje - Utsikt, garasje og båtplass - Ingen boplikt
Prisantydning3 400 000 kr
Nøkkelinfo
- Boligtype
- Leilighet
- Eieform
- Eier (Selveier)
- Soverom
- 2
- Internt bruksareal
- 64 m² (BRA-i)
- Bruksareal
- 69 m²
- Eksternt bruksareal
- 5 m² (BRA-e)
- Balkong/Terrasse
- 22 m² (TBA)
- Etasje
- 5
- Byggeår
- 2018
- Energimerking
- C - Lysegrønn
- Rom
- 3
- Tomteareal
- 1 709 m² (eiet)
Fasiliteter
Balkong/Terrasse
Båtplass
Garasje/P-plass
Heis
Kjæledyr tillatt
Offentlig vann/kloakk
Parkett
Rolig
Sentralt
Utsikt
Bademulighet
Turterreng
Lademulighet
Balansert ventilasjon
Visning
tirsdag, 24. februar
16:00 – 17:00
For å delta på visning, ber vi om at du melder deg på. Da sikrer vi at du får nødvendig informasjon og at det er satt av tilstrekkelig med tid. Kontakt megler dersom annet tidspunkt ønskes. Husk å lese salgsoppgaven før visningen, så du stiller forberedt.
Ønsker du kun å bli holdt orientert, kan du fra eiendommens hjemmeside få varsel om solgtpris, eller kontakte megler.
VisningspåmeldingOm boligen
Velkommen til Nyvei 14, en stilren og innbydende leilighet med flotte materialvalg og gjennomtenkte løsninger. Leiligheten har et lekkert kjøkken fra Strai med integrert vinskap og åpen løsning mot stue og spiseplass. Store vindusflater gir godt lys og en luftig romfølelse.
Boligen inneholder to gode soverom og har en tidløs fargepalett som gir et moderne og behagelig uttrykk. Fra stuen er det utgang til en hyggelig veranda. Fast p-plass i garasjekjeller og båtplass i felles bryggeanlegg følger med.
Sjønær, men tilbaketrukket beliggenhet med kort vei til flotte badeplasser og rekreasjon.
Boligen inneholder to gode soverom og har en tidløs fargepalett som gir et moderne og behagelig uttrykk. Fra stuen er det utgang til en hyggelig veranda. Fast p-plass i garasjekjeller og båtplass i felles bryggeanlegg følger med.
Sjønær, men tilbaketrukket beliggenhet med kort vei til flotte badeplasser og rekreasjon.
NB: Knappen for å vise hele beskrivelsen har kun en visuell effekt.
NB: Knappen for å vise hele beskrivelsen har kun en visuell effekt.
Salgsoppgaven beskriver vesentlig og lovpålagt informasjon om eiendommen
Se komplett salgsoppgaveNyttige lenker
Nærområdet
Krogsveen Arendal
Verdien av en god megler.
Annonseinformasjon
| FINN-kode | 450306265 |
|---|---|
| Sist endret | 12. feb. 2026 06:03 |
| Referanse | KR47.262 |
Annonsene kan være mangelfulle i forhold til lovpålagt opplysningsplikt. Før bindende avtale inngås oppfordres interessenter til å innhente komplett informasjon fra meglerforetaket, selger eller utleier.



































