Bildegalleri

Velkommen til Bakkestien 9 - en lys og innbydende familiebolig i et attraktivt, barnevennlig område på Kløfta.
Kløfta
Lys og innbydende enebolig over 2 plan med stor solrik hage - 3 soverom - Garasje - Barnevennlig - Sentralt
Prisantydning7 000 000 kr
Nøkkelinfo
- Boligtype
- Enebolig
- Eieform
- Eier (Selveier)
- Soverom
- 3
- Internt bruksareal
- 183 m² (BRA-i)
- Bruksareal
- 183 m²
- Balkong/Terrasse
- 21 m² (TBA)
- Byggeår
- 1976
- Energimerking
- E - Oransje
- Rom
- 4
- Tomteareal
- 799 m² (eiet)
Fasiliteter
Barnevennlig
Balkong/Terrasse
Garasje/P-plass
Kabel-TV
Offentlig vann/kloakk
Ingen gjenboere
Parkett
Peis/Ildsted
Turterreng
Sentralt
Rolig
Visning
søndag, 15. februar
13:00 – 13:45
Velkommen til visning!
Alle våre visninger har påmelding. På denne måten sikrer vi at megler har god oversikt og tid til å imøtekomme alle interessenter på beste måte. Dette er veldig verdifullt for boligkjøpere og for oss. Det er enkelt å melde seg på, og du kan like enkelt melde deg av. Kontakt også gjerne megler i forkant av visning dersom du har spørsmål.
Om boligen
Velkommen til Bakkestien 9 - en lys og innbydende familiebolig i et attraktivt, barnevennlig område på Kløfta. Her bor du i trygge omgivelser med kort gangavstand til skoler, barnehager, idrettsanlegg, butikker og kollektivtransport.
Eiendommen har en stor flat og skjermet hage på 799 kvm, to solrike terrasser og gode uteområder for lek og hygge.
Høydepunkter:
- Lys og romslig bolig på 183 kvm BRA-i med 3 soverom
- Klassisk kjøkken med spiseplass
- Romslig stue med peis og trestavs eikeparkett
- Flislagt toalettrom og bad/vaskerom
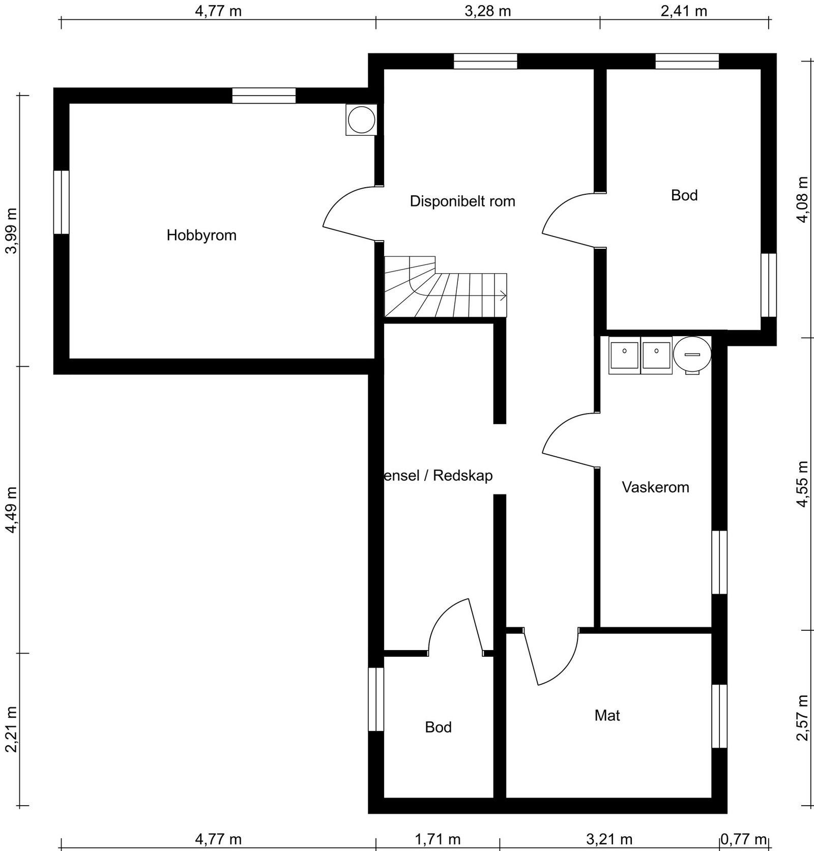
- Kjeller med hobbyrom og flere boder - god lagringsplass
- Frittstående garasje
- Kort vei til Bakke barneskole (ca. 300 m), Vesong ungdomsskole (ca. 350 m) og flere barnehager
- Nærhet til Bakkedalen idrettsanlegg, med kunstgressbane, lekeplasser og skatepark
- Gode tog- og busstilbud til Oslo, Lillestrøm og Oslo Lufthavn
- Kort vei til butikker og Romerikssenteret
En perfekt bolig for familier som ønsker et trivelig hjem i et etablert område!
Eiendommen har en stor flat og skjermet hage på 799 kvm, to solrike terrasser og gode uteområder for lek og hygge.
Høydepunkter:
- Lys og romslig bolig på 183 kvm BRA-i med 3 soverom
- Klassisk kjøkken med spiseplass
- Romslig stue med peis og trestavs eikeparkett
- Flislagt toalettrom og bad/vaskerom
- Kjeller med hobbyrom og flere boder - god lagringsplass
- Frittstående garasje
- Kort vei til Bakke barneskole (ca. 300 m), Vesong ungdomsskole (ca. 350 m) og flere barnehager
- Nærhet til Bakkedalen idrettsanlegg, med kunstgressbane, lekeplasser og skatepark
- Gode tog- og busstilbud til Oslo, Lillestrøm og Oslo Lufthavn
- Kort vei til butikker og Romerikssenteret
En perfekt bolig for familier som ønsker et trivelig hjem i et etablert område!
NB: Knappen for å vise hele beskrivelsen har kun en visuell effekt.
NB: Knappen for å vise hele beskrivelsen har kun en visuell effekt.
Salgsoppgaven beskriver vesentlig og lovpålagt informasjon om eiendommen
Se komplett salgsoppgaveNyttige lenker
Nærområdet

PrivatMegleren Brustad & Partnere
Kun det beste på dine vegne
Annonseinformasjon
| FINN-kode | 450283964 |
|---|---|
| Sist endret | 11. feb. 2026 09:13 |
| Referanse | 121260017 |
Annonsene kan være mangelfulle i forhold til lovpålagt opplysningsplikt. Før bindende avtale inngås oppfordres interessenter til å innhente komplett informasjon fra meglerforetaket, selger eller utleier.










































