Bildegalleri

Stor og fleksibel enebolig | 5 soverom, 2 bad og kjøkken i begge etasjer
Prisantydning3 490 000 kr
Nøkkelinfo
- Boligtype
- Enebolig
- Eieform
- Eier (Selveier)
- Soverom
- 3
- Internt bruksareal
- 234 m² (BRA-i)
- Bruksareal
- 273 m²
- Eksternt bruksareal
- 39 m² (BRA-e)
- Balkong/Terrasse
- 26 m² (TBA)
- Byggeår
- 1971
- Energimerking
- D - Gul
- Tomteareal
- 2 241 m² (eiet)
Fasiliteter
Balkong/Terrasse
Garasje/P-plass
Peis/Ildsted
Turterreng
Utsikt
Om boligen
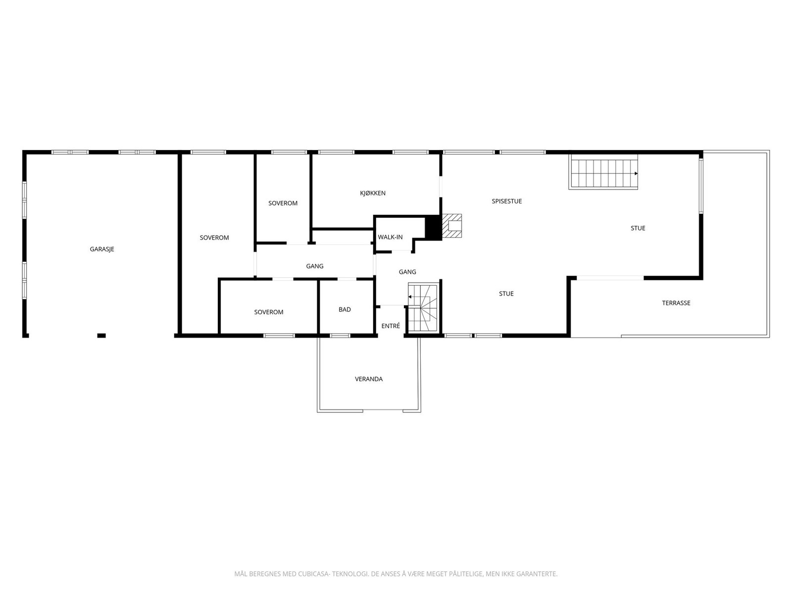
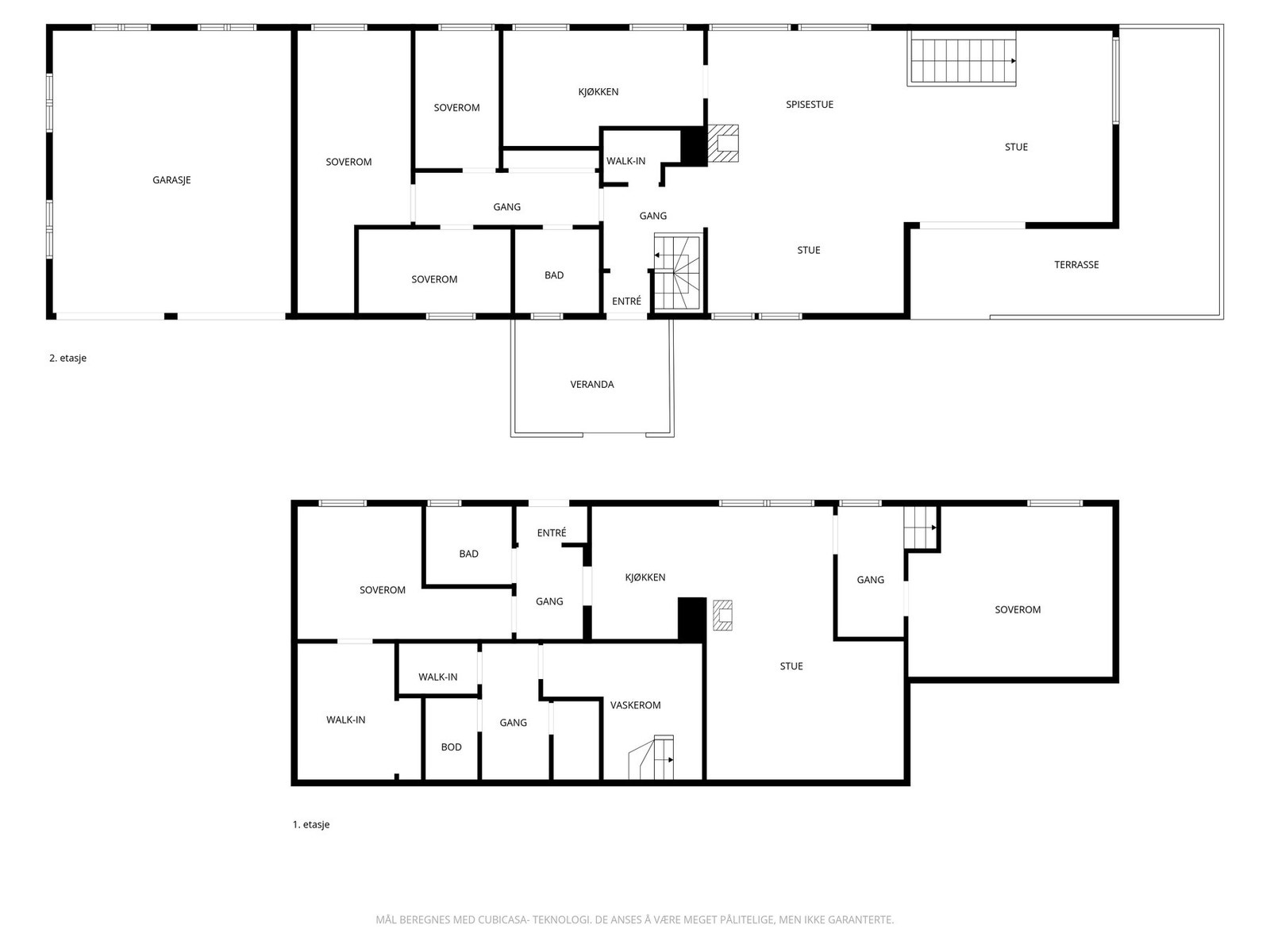
Romslig og svært innholdsrik enebolig med attraktiv og familievennlig beliggenhet i rolige, naturnære omgivelser. Boligen går over to etasjer og byr på 3 soverom, 2 bad og kjøkken i begge etasjer, noe som gir stor fleksibilitet i hverdagen. Underetasjen har eget inngangsparti og egner seg ypperlig som ungdomsavdeling, generasjonsdel eller for gjester som ønsker mer privatliv.
Eiendommen har en stor og skjermet tomt med gode solforhold gjennom hele dagen, samt garasje og svært gode lagringsmuligheter. Boligen har praktiske løsninger, god planløsning og rikelig med plass for den aktive familien. Her bor du i et stille og trygt nabolag med lite trafikk, kort vei til skole (1.-10. trinn), barnehage, idrettsanlegg og Hof sentrum med et bredt servicetilbud.
Dette er en bolig som kombinerer plass, fleksibilitet og beliggenhet, med nærhet til både natur, fritidsaktiviteter og hverdagens nødvendigheter.
Velkommen til visning!
Eiendommen har en stor og skjermet tomt med gode solforhold gjennom hele dagen, samt garasje og svært gode lagringsmuligheter. Boligen har praktiske løsninger, god planløsning og rikelig med plass for den aktive familien. Her bor du i et stille og trygt nabolag med lite trafikk, kort vei til skole (1.-10. trinn), barnehage, idrettsanlegg og Hof sentrum med et bredt servicetilbud.
Dette er en bolig som kombinerer plass, fleksibilitet og beliggenhet, med nærhet til både natur, fritidsaktiviteter og hverdagens nødvendigheter.
Velkommen til visning!
NB: Knappen for å vise hele beskrivelsen har kun en visuell effekt.
NB: Knappen for å vise hele beskrivelsen har kun en visuell effekt.
Salgsoppgaven beskriver vesentlig og lovpålagt informasjon om eiendommen
Se komplett salgsoppgaveNyttige lenker
Nærområdet
EIE eiendomsmegling Tønsberg
Annonseinformasjon
| FINN-kode | 450280441 |
|---|---|
| Sist endret | 19. feb. 2026 10:17 |
| Referanse | 67260006 |
Annonsene kan være mangelfulle i forhold til lovpålagt opplysningsplikt. Før bindende avtale inngås oppfordres interessenter til å innhente komplett informasjon fra meglerforetaket, selger eller utleier.
































