Bildegalleri

Velkommen til Aspehaugveien 12A- En eksklusiv, påkostet arkitekttegnet villa fra 2024. Foto Chris Borowiak v/BOROWIAK AS
IDYLL VED HOLMENDAMMEN
Eksklusiv, påkostet arkitekttegnet villa fra 2024- BRA 198 - Garasje/m heis- 4 soverom- Takterasse - Hybel - Idyllisk
Prisantydning21 900 000 kr
Nøkkelinfo
- Boligtype
- Enebolig
- Eieform
- Eier (Selveier)
- Soverom
- 4
- Internt bruksareal
- 198 m² (BRA-i)
- Bruksareal
- 198 m²
- Balkong/Terrasse
- 17 m² (TBA)
- Etasje
- 4
- Byggeår
- 2024
- Energimerking
- A - Mørkegrønn
- Tomteareal
- 889 m² (eiet)
Fasiliteter
Takterrasse
Balkong/Terrasse
Barnevennlig
Hage
Kjæledyr tillatt
Offentlig vann/kloakk
Parkett
Rolig
Sentralt
Utsikt
Turterreng
Balansert ventilasjon
Om boligen
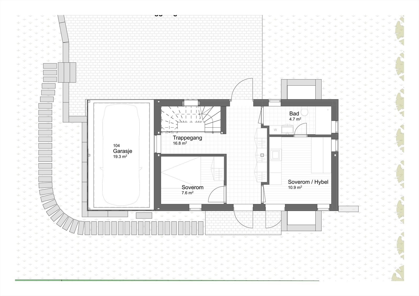
Velkommen til Aspehaugveien 12A - En lekker og påkostet enebolig fra 2024 med gjennomført arkitektur og høy standard. Boligen byr blant annet på en stilren åpen stue- og kjøkkenløsning, fire romslige soverom, garasje m/heis, delikate og tidløse baderom og kjellerstue. Dette er en moderne og funksjonell bolig med høy bokvalitet, god komfort og fleksible løsninger. Perfekt for deg som ønsker et rolig og grønt bomiljø, samtidig som du har nærhet til alle byens fasiliteter.
Høydepunkter:
-Lokasjon, kvalitet og funksjon i en bolig
-Store vindusflater
-Smart hus-løsning med Elko Plus Smart Hub som gir sentral styring av lys og romtemperatur i hele boligen
-Parkett
-4 soverom hvor et soverom er innredet som hybel med egen inngang
-Takterasse
-Garasje m/garasjeheis
-Elektriske takvinduer
Høydepunkter:
-Lokasjon, kvalitet og funksjon i en bolig
-Store vindusflater
-Smart hus-løsning med Elko Plus Smart Hub som gir sentral styring av lys og romtemperatur i hele boligen
-Parkett
-4 soverom hvor et soverom er innredet som hybel med egen inngang
-Takterasse
-Garasje m/garasjeheis
-Elektriske takvinduer
NB: Knappen for å vise hele beskrivelsen har kun en visuell effekt.
NB: Knappen for å vise hele beskrivelsen har kun en visuell effekt.
Salgsoppgaven beskriver vesentlig og lovpålagt informasjon om eiendommen
Se komplett salgsoppgaveNyttige lenker
Nærområdet
Nordvik Majorstuen
Annonseinformasjon
| FINN-kode | 450274166 |
|---|---|
| Sist endret | 10. feb. 2026 13:39 |
| Referanse | 8-0027/26 |
Annonsene kan være mangelfulle i forhold til lovpålagt opplysningsplikt. Før bindende avtale inngås oppfordres interessenter til å innhente komplett informasjon fra meglerforetaket, selger eller utleier.
















































































