Bildegalleri

Moss/Sentrum
Stor 4-roms toppleilighet med to terrasser | 2 bad | Nær sjø og by | Pendlervennlig | Salg av kontraktposisjon
Prisantydning13 790 000 kr
Nøkkelinfo
- Boligtype
- Leilighet
- Eieform
- Eier (Selveier)
- Soverom
- 3
- Internt bruksareal
- 128 m² (BRA-i)
- Bruksareal
- 128 m²
- Eksternt bruksareal
- 5 m² (BRA-e)
- Balkong/Terrasse
- 82 m² (TBA)
- Etasje
- 5
- Rom
- 4
- Tomteareal
- 2 962 m² (eiet)
Fasiliteter
Balkong/Terrasse
Garasje/P-plass
Heis
Offentlig vann/kloakk
Parkett
Turterreng
Utsikt
Sentralt
Bredbåndstilknytning
Moderne
Lademulighet
Balansert ventilasjon
Om boligen
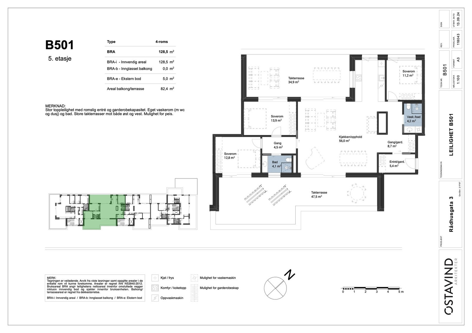
I Rådhusgata 3, midt i hjertet av Moss, finner du denne 4-roms toppleiligheten på hele 128 kvm med to fantastiske takterrasser på til sammen over 82 kvm. Her får du en gjennomført planløsning med store vindusflater, åpen stue- og kjøkkenløsning på hele 56 kvm, tre soverom, to bad og god garderobeplass. Leiligheten ligger i et nybygg tegnet av Østavind Arkitekter - et prosjekt som kombinerer moderne uttrykk, høy standard og historisk sjarm. Bo med byens fasiliteter, strand og togstasjon rett utenfor døren - alt du trenger, innen få minutters gange.
Salg av kontraksposisjon
Denne salgsoppgaven gjelder salg av kontraktsposisjon av en bolig som er under oppføring. Ny kjøper overtar alle selgers rettigheter og forpliktelser iht. opprinnelig kontrakt, herunder betalingsvilkår og de lovpålagte garantier. Opprinnelig salgsoppgave og kontrakt følger vedlagt salgsoppgaven. Det forutsettes at kjøper har gjennomgått grundig den opprinnelige kjøpekontrakten med tilhørende vedlegg, før bud inngis.
Salg av kontraksposisjon
Denne salgsoppgaven gjelder salg av kontraktsposisjon av en bolig som er under oppføring. Ny kjøper overtar alle selgers rettigheter og forpliktelser iht. opprinnelig kontrakt, herunder betalingsvilkår og de lovpålagte garantier. Opprinnelig salgsoppgave og kontrakt følger vedlagt salgsoppgaven. Det forutsettes at kjøper har gjennomgått grundig den opprinnelige kjøpekontrakten med tilhørende vedlegg, før bud inngis.
NB: Knappen for å vise hele beskrivelsen har kun en visuell effekt.
NB: Knappen for å vise hele beskrivelsen har kun en visuell effekt.
Salgsoppgaven beskriver vesentlig og lovpålagt informasjon om eiendommen
Se komplett salgsoppgaveNærområdet
ASK Meglergaarden
Velkommen hjem!
Annonseinformasjon
| FINN-kode | 450271955 |
|---|---|
| Sist endret | 09. feb. 2026 10:26 |
| Referanse | 3-25-0288 |
Annonsene kan være mangelfulle i forhold til lovpålagt opplysningsplikt. Før bindende avtale inngås oppfordres interessenter til å innhente komplett informasjon fra meglerforetaket, selger eller utleier.








