Bildegalleri

Velkommen til Dyrgravveien 22B - Foto: Arild Brun Kjeldaas
Lindbojordet
Pen og oppusset 2-roms leilighet like utenfor Kongsberg sentrum med nærhet til fine turområder - Varmtvann inkludert!
Prisantydning1 650 000 kr
Nøkkelinfo
- Boligtype
- Leilighet
- Eieform
- Andel
- Soverom
- 1
- Internt bruksareal
- 44 m² (BRA-i)
- Bruksareal
- 47 m²
- Eksternt bruksareal
- 3 m² (BRA-e)
- Balkong/Terrasse
- 9 m² (TBA)
- Etasje
- 1
- Byggeår
- 1973
- Energimerking
- E - Oransje
- Rom
- 2
- Tomteareal
- 17 935 m² (eiet)
Fasiliteter
Balkong/Terrasse
Barnevennlig
Fellesvaskeri
Kjæledyr tillatt
Offentlig vann/kloakk
Peis/Ildsted
Rolig
Vaktmester-/vektertjeneste
Turterreng
Visning
torsdag, 19. februar
16:30 – 17:30
Alle våre visninger har påmelding. På denne måten sikrer vi at megler har god oversikt og tid til å imøtekomme alle interessenter. Meld deg på visning ved å trykke på lenken visningspåmelding. Ta kontakt med megler dersom tidspunktet ikke passer så finner vi gode løsninger.
VisningspåmeldingOm boligen
Velkommen til Dyrgravveien 22B
Attraktiv 2-roms leilighet som ligger fint til på Lindbojordet ca. 3 km fra Kongsberg sentrum. Her har du kort avstand til dagligvarebutikk, treningssenter, Kongsberghallen idrettsanlegg, barnehage og barneskole. Gode bussforbindelser og fine gang og sykkelstier til sentrum, Universitetet i Sørøst- Norge og Fagskolen i Viken. Det er også kort avstand til marka som gjør det enkelt å komme seg ut på tur.
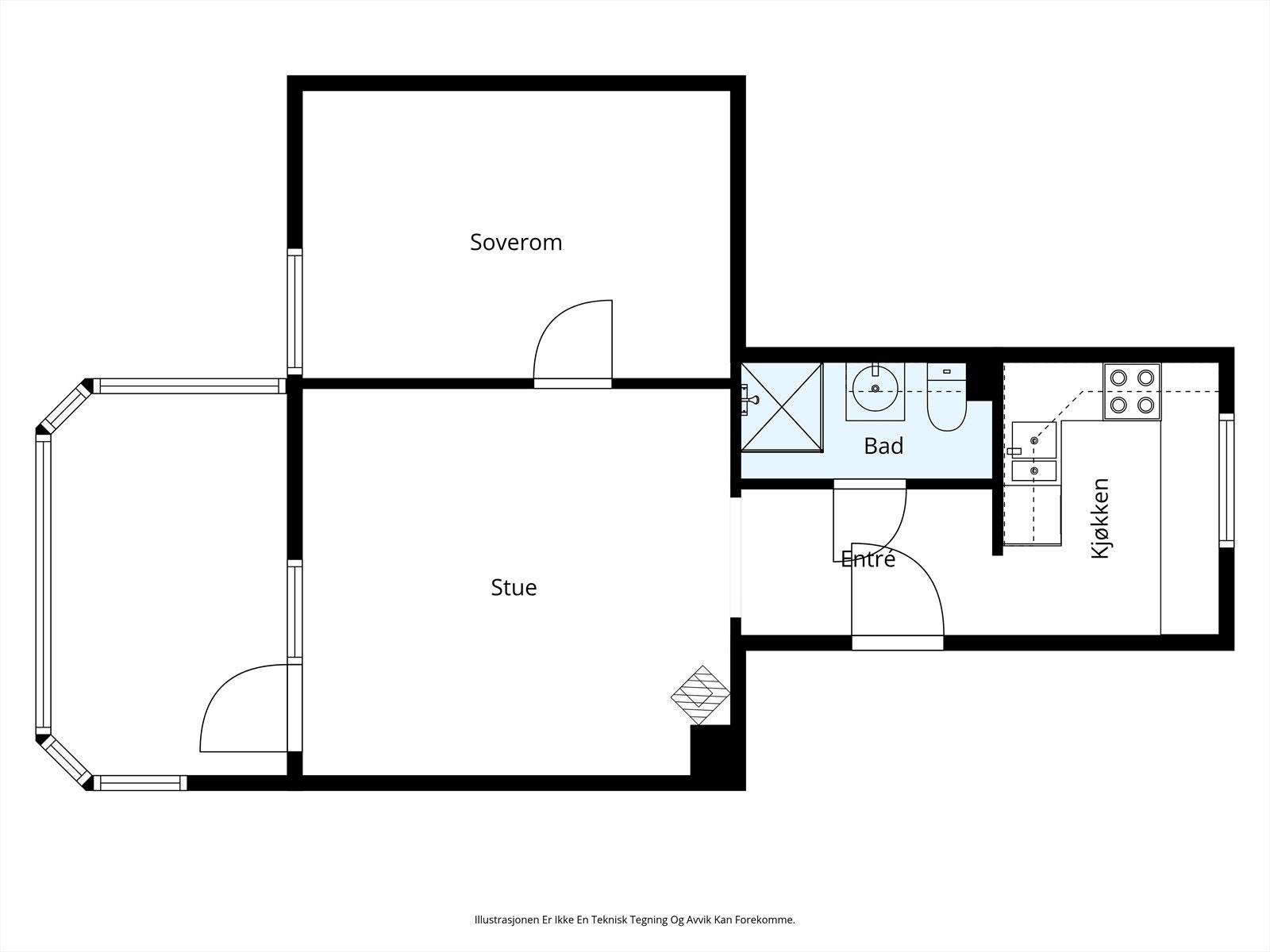
Leiligheten inneholder gang, kjøkken, bad, stue og soverom. Fra stuen er det adkomst til en koselig balkong. Det er felles vaskerom og egen bod med plass til oppbevaring i kjeller.
Meld deg på til en hyggelig visning!
Attraktiv 2-roms leilighet som ligger fint til på Lindbojordet ca. 3 km fra Kongsberg sentrum. Her har du kort avstand til dagligvarebutikk, treningssenter, Kongsberghallen idrettsanlegg, barnehage og barneskole. Gode bussforbindelser og fine gang og sykkelstier til sentrum, Universitetet i Sørøst- Norge og Fagskolen i Viken. Det er også kort avstand til marka som gjør det enkelt å komme seg ut på tur.
Leiligheten inneholder gang, kjøkken, bad, stue og soverom. Fra stuen er det adkomst til en koselig balkong. Det er felles vaskerom og egen bod med plass til oppbevaring i kjeller.
Meld deg på til en hyggelig visning!
NB: Knappen for å vise hele beskrivelsen har kun en visuell effekt.
NB: Knappen for å vise hele beskrivelsen har kun en visuell effekt.
Salgsoppgaven beskriver vesentlig og lovpålagt informasjon om eiendommen
Se komplett salgsoppgaveNærområdet
Aktiv Kongsberg
Annonseinformasjon
| FINN-kode | 450271789 |
|---|---|
| Sist endret | 12. feb. 2026 12:47 |
| Referanse | 1305260007 |
Annonsene kan være mangelfulle i forhold til lovpålagt opplysningsplikt. Før bindende avtale inngås oppfordres interessenter til å innhente komplett informasjon fra meglerforetaket, selger eller utleier.



















