Bildegalleri

Mathias Ørnes har gleden av å presentere Semsveien 50P
Hokksund
Rekkehus over 2 plan | Solrik uteplass | Carport |Utbyggingsmulighet | 2 bad | Varmepumper | Barnevennlig | Nær skole
Prisantydning3 990 000 kr
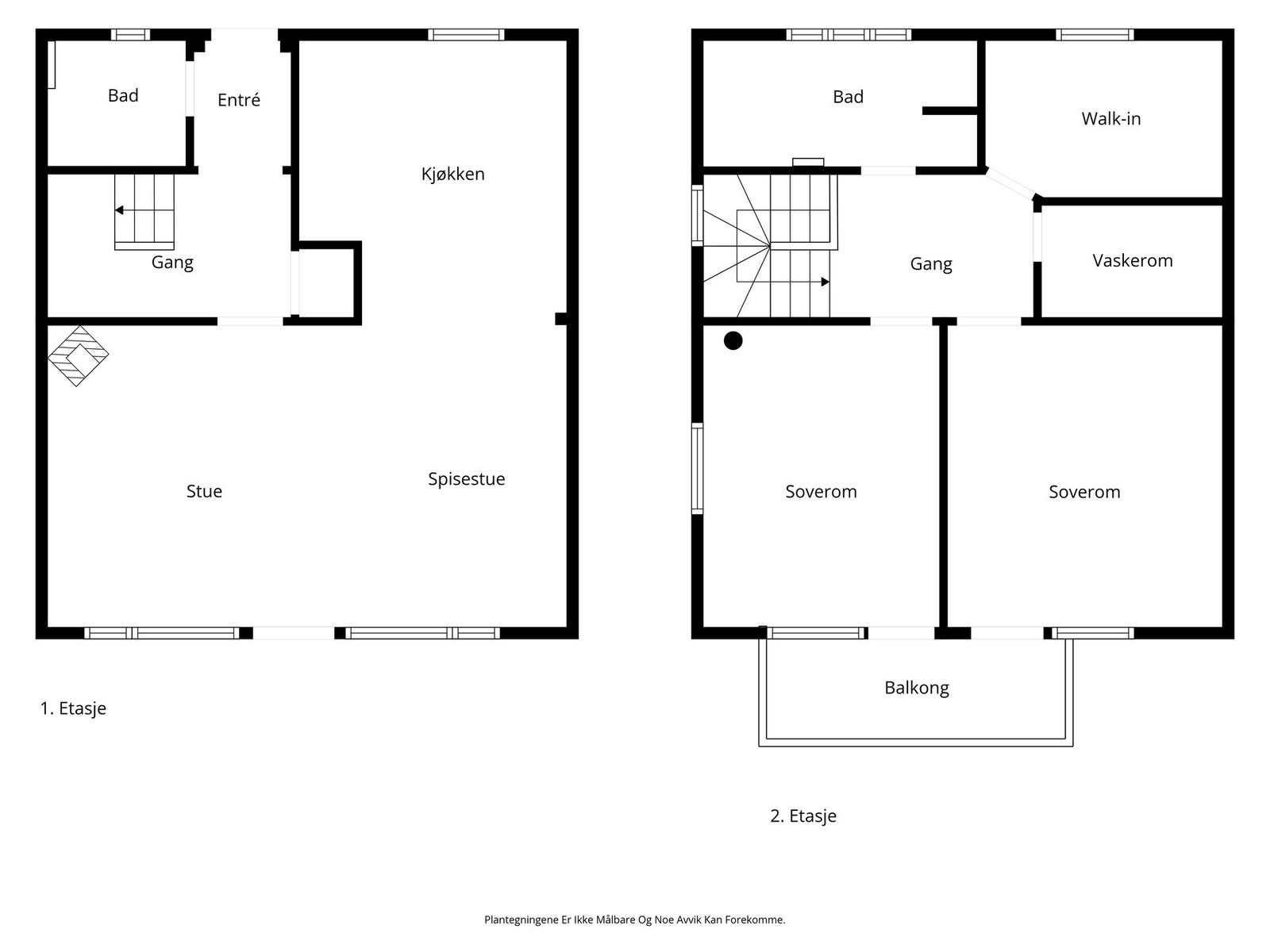
Nøkkelinfo
- Boligtype
- Rekkehus
- Eieform
- Eier (Selveier)
- Soverom
- 3
- Internt bruksareal
- 110 m² (BRA-i)
- Bruksareal
- 115 m²
- Eksternt bruksareal
- 5 m² (BRA-e)
- Balkong/Terrasse
- 33 m² (TBA)
- Byggeår
- 2016
- Energimerking
- C - Lysegrønn
- Rom
- 5
- Tomteareal
- 7 650 m² (eiet)
Fasiliteter
Barnevennlig
Balkong/Terrasse
Garasje/P-plass
Kabel-TV
Fiskemulighet
Alarm
Offentlig vann/kloakk
Ingen gjenboere
Parkett
Peis/Ildsted
Turterreng
Utsikt
Aircondition
Sentralt
Bredbåndstilknytning
Moderne
Rolig
Bademulighet
Lademulighet
Balansert ventilasjon
Visning
søndag, 15. februar
13:00 – 13:45
Meld deg på visning eller kontakt eiendomsmegler for privatvisning.
Visning blir ikke gjennomført uten påmeldte.
mandag, 16. februar
17:30 – 18:15
Meld deg på visning eller kontakt eiendomsmegler for privatvisning.
Visning blir ikke gjennomført uten påmeldte.
Om boligen
Boligen er et innbydende rekkehus over to plan, beliggende i rolige og etablerte omgivelser.
Planløsningen er gjennomtenkt og funksjonell, med god balanse mellom private rom og sosiale soner. Uteplassen ligger i sørvestlig retning og gir svært gode solforhold, noe som gjør den til et naturlig samlingspunkt i sommerhalvåret.
Eiendommen har egen carport med tilhørende utvendig bod på ca. 4 kvm, samt etablert elbillader. Boligen er oppvarmet med elektrisitet, vedfyring og luft-til-luft varmepumpe i begge etasjer, og har balansert ventilasjon. Beliggenheten kombinerer en barnevennlig atmosfære med enkel tilgang til Eiker senter, togstasjon og E134, og området har gode oppvekstvilkår med barnehager, skole og ny barneskole fra høsten 2025.
Høydepunkter:
Gjennomgående gode lysforhold og effektiv planløsning
Gode pendlermuligheter mot Drammen og Kongsberg
To separate bad som gir en praktisk hverdag
Bod med god lagringsplass
Mulighet for å bygge på
Carport m. elbillader
vaskerom
Velkommen!
Planløsningen er gjennomtenkt og funksjonell, med god balanse mellom private rom og sosiale soner. Uteplassen ligger i sørvestlig retning og gir svært gode solforhold, noe som gjør den til et naturlig samlingspunkt i sommerhalvåret.
Eiendommen har egen carport med tilhørende utvendig bod på ca. 4 kvm, samt etablert elbillader. Boligen er oppvarmet med elektrisitet, vedfyring og luft-til-luft varmepumpe i begge etasjer, og har balansert ventilasjon. Beliggenheten kombinerer en barnevennlig atmosfære med enkel tilgang til Eiker senter, togstasjon og E134, og området har gode oppvekstvilkår med barnehager, skole og ny barneskole fra høsten 2025.
Høydepunkter:
Gjennomgående gode lysforhold og effektiv planløsning
Gode pendlermuligheter mot Drammen og Kongsberg
To separate bad som gir en praktisk hverdag
Bod med god lagringsplass
Mulighet for å bygge på
Carport m. elbillader
vaskerom
Velkommen!
NB: Knappen for å vise hele beskrivelsen har kun en visuell effekt.
NB: Knappen for å vise hele beskrivelsen har kun en visuell effekt.
Salgsoppgaven beskriver vesentlig og lovpålagt informasjon om eiendommen
Se komplett salgsoppgaveNyttige lenker
Nærområdet
Landkreditt Eiendom
NÅR KOMPETANSE TELLER
Annonseinformasjon
| FINN-kode | 450255901 |
|---|---|
| Sist endret | 09. feb. 2026 13:30 |
| Referanse | 328260007 |
Annonsene kan være mangelfulle i forhold til lovpålagt opplysningsplikt. Før bindende avtale inngås oppfordres interessenter til å innhente komplett informasjon fra meglerforetaket, selger eller utleier.














































