Bildegalleri

Velkommen til Storflåt 9.
Stor og tiltalende enebolig med stor garasje.
Prisantydning2 990 000 kr
Nøkkelinfo
- Boligtype
- Enebolig
- Eieform
- Eier (Selveier)
- Soverom
- 2
- Internt bruksareal
- 221 m² (BRA-i)
- Bruksareal
- 267 m²
- Eksternt bruksareal
- 46 m² (BRA-e)
- Balkong/Terrasse
- 63 m² (TBA)
- Etasje
- 3
- Byggeår
- 1985
- Rom
- 8
- Tomteareal
- 1 223 m² (eiet)
Fasiliteter
Alpinanlegg
Balkong/Terrasse
Barnevennlig
Garasje/P-plass
Golfbane
Hage
Kjæledyr tillatt
Ingen gjenboere
Offentlig vann/kloakk
Parkett
Peis/Ildsted
Rolig
Utsikt
Utvidelsesmuligheter
Turterreng
Lademulighet
Visning
mandag, 16. februar
16:00 – 17:00
Eiendomsmegler Norge sine visninger har påmelding. Påmelding gjøres enkelt ved å benytte knappen under. Ta kontakt med megler dersom oppsatt tidspunkt ikke passer. Det vil ikke bli avholdt visning uten påmelding, frist for påmelding er senest kl. 12.00 på visningsdagen. Husk å laste ned salgsoppgaven digitalt før visning. Velkommen til en hyggelig visning!
VisningspåmeldingOm boligen
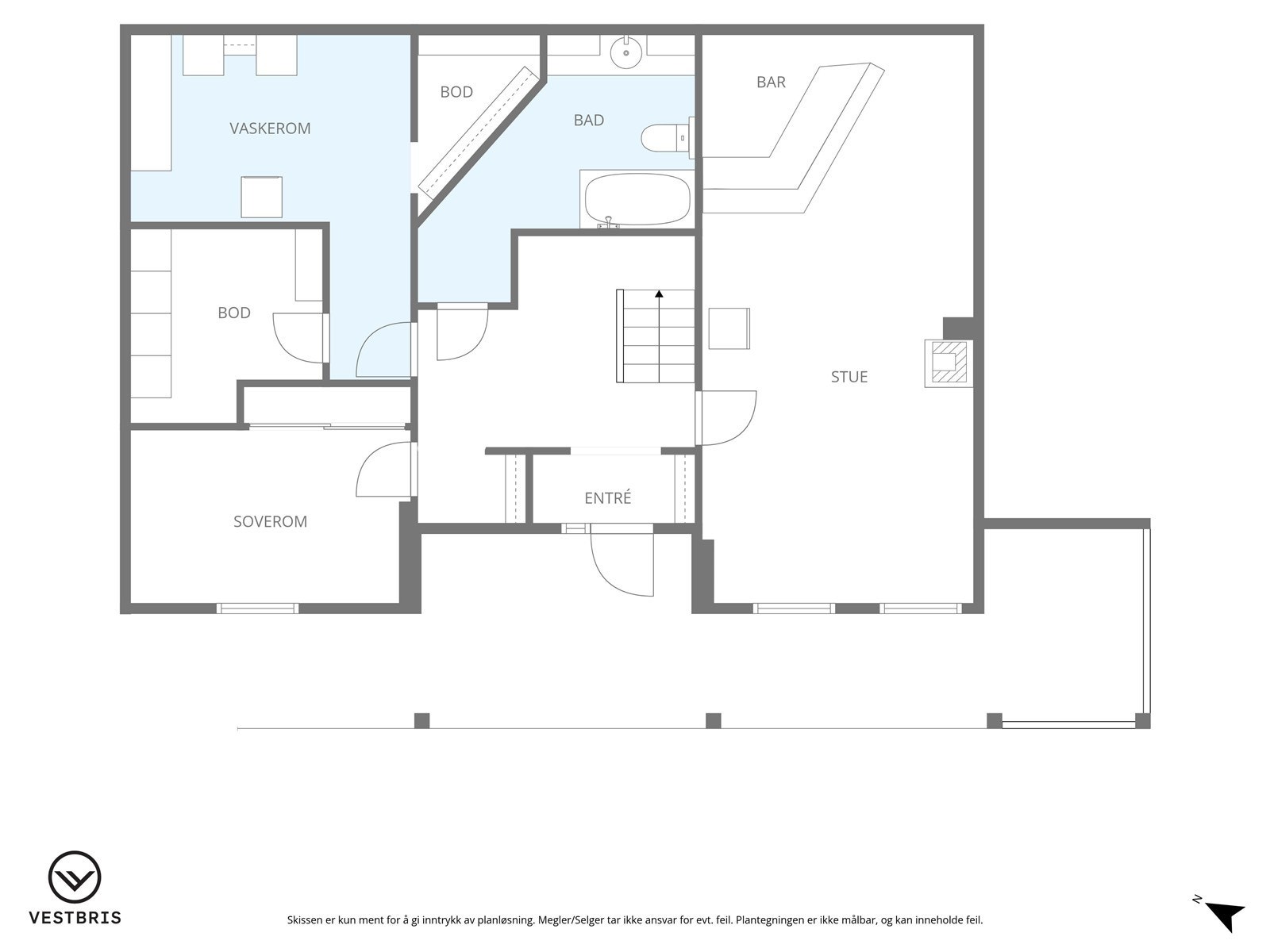
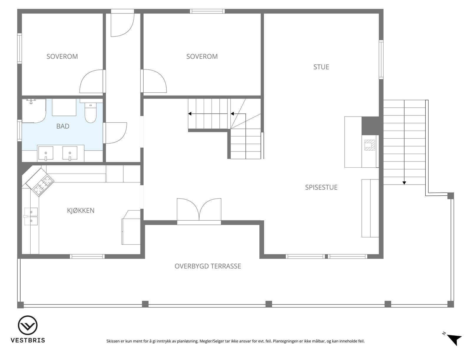
Innholdsrik enebolig som er innredet over 3 plan. Her er god plass til hele den aktive familien med alt det som følger med.
Boligen har en god planløsning og boligen fremstår som godt vedlikeholdt og ivaretatt. Her er gjennomgående god standard på hele boligen.
Boligen ligger i blindvei med kort avstand til flotte turområder. Stor, pent opparbeidet tomt. Her er rommelig gårdsplass og flotte uteområder, med bla usjenert hagestue og flere solrike og lune uteplasser.
Populært boligområde som ligger i naturskjønne omgivelser med lite biltrafikk. Her er for det meste enebolig bebyggelse.
Boligen har en god planløsning og boligen fremstår som godt vedlikeholdt og ivaretatt. Her er gjennomgående god standard på hele boligen.
Boligen ligger i blindvei med kort avstand til flotte turområder. Stor, pent opparbeidet tomt. Her er rommelig gårdsplass og flotte uteområder, med bla usjenert hagestue og flere solrike og lune uteplasser.
Populært boligområde som ligger i naturskjønne omgivelser med lite biltrafikk. Her er for det meste enebolig bebyggelse.
NB: Knappen for å vise hele beskrivelsen har kun en visuell effekt.
NB: Knappen for å vise hele beskrivelsen har kun en visuell effekt.
Salgsoppgaven beskriver vesentlig og lovpålagt informasjon om eiendommen
Se komplett salgsoppgaveNyttige lenker
Nærområdet
Eiendomsmegler Norge Haugesund
Best der du bor
Annonseinformasjon
| FINN-kode | 450249574 |
|---|---|
| Sist endret | 09. feb. 2026 07:27 |
| Referanse | 19260012 |
Annonsene kan være mangelfulle i forhold til lovpålagt opplysningsplikt. Før bindende avtale inngås oppfordres interessenter til å innhente komplett informasjon fra meglerforetaket, selger eller utleier.













































