Bildegalleri

Velkommen til Hasselveien 4!
Flott beliggende enebolig med utsikt og gode solforhold i barnevennlig område.
Nøkkelinfo
- Boligtype
- Enebolig
- Eieform
- Eier (Selveier)
- Internt bruksareal
- 221 m² (BRA-i)
- Bruksareal
- 263 m²
- Eksternt bruksareal
- 42 m² (BRA-e)
- Balkong/Terrasse
- 44 m² (TBA)
- Byggeår
- 1965
- Energimerking
- G - Oransje
- Tomteareal
- 1 354 m² (eiet)
Visning
Om boligen
Velkommen til Hasselveien 4!
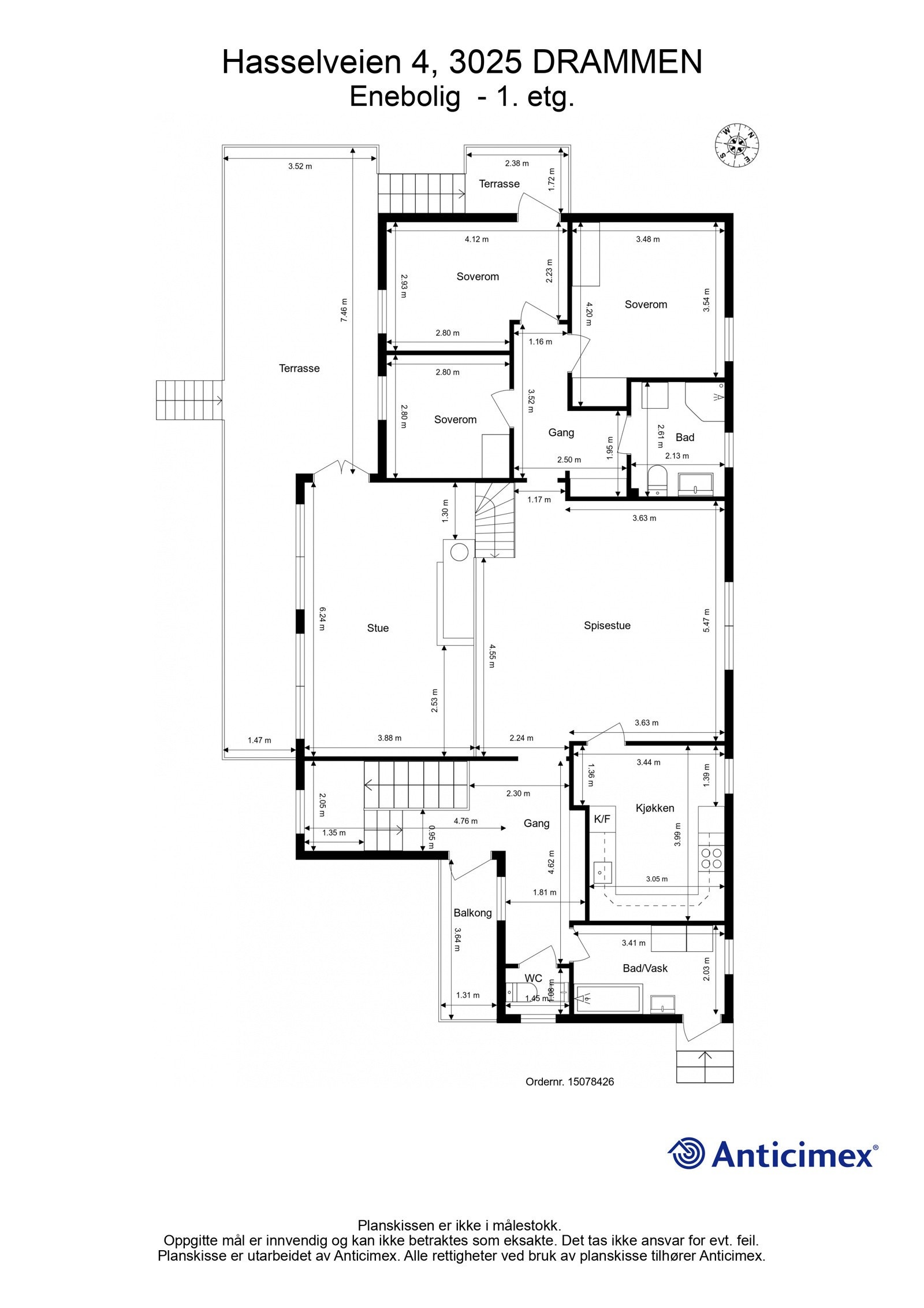
Flott og innholdsrik enebolig over to plan med god og gjennomtenkt planløsning. Boligen byr på romslige oppholdsrom og store vindusflater som slipper inn rikelig med naturlig lys. Eiendommen inneholder tre store soverom, to bad samt separat WC. Videre har boligen en stor og åpen stue- og kjøkkenløsning som gir gode sosiale soner og en luftig romfølelse. I 1. etasje finnes det diverse boder og et stort hobbyrom. Fra stuen er det utgang til en romslig terrasse med god plass til sittegruppe. Her kan du nyte solrike sommerdager og hyggelige kvelder i rolige omgivelser. Fint utsyn over deler av Drammen.
- Rolig og barnevennlig beliggenhet
- Solrik terrasse
- Gode turmuligheter i nærområdet
- Garasje og god parkering på egen tomt
Salgsoppgaven beskriver vesentlig og lovpålagt informasjon om eiendommen
Se komplett salgsoppgaveNyttige lenker
Nærområdet

FREM EIENDOMSMEGLING
Annonsene kan være mangelfulle i forhold til lovpålagt opplysningsplikt. Før bindende avtale inngås oppfordres interessenter til å innhente komplett informasjon fra meglerforetaket, selger eller utleier.
















































