Bildegalleri

GamleRavei 131
VERNINGEN
Romslig enebolig over 3 plan med en meget romslig garasje og en usjenert bakhage
Prisantydning4 300 000 kr
Nøkkelinfo
- Boligtype
- Enebolig
- Eieform
- Selveier
- Soverom
- 3
- Internt bruksareal
- 154 m² (BRA-i)
- Bruksareal
- 227 m²
- Eksternt bruksareal
- 73 m² (BRA-e)
- Balkong/Terrasse
- 71 m² (TBA)
- Etasje
- 3
- Byggeår
- 1939
- Energimerking
- Tomteareal
- 741 m² (eiet)
Fasiliteter
Balkong/Terrasse
Barnevennlig
Bredbåndstilknytning
Garasje/P-plass
Hage
Kjæledyr tillatt
Offentlig vann/kloakk
Peis/Ildsted
Rolig
Utsikt
Utvidelsesmuligheter
Turterreng
Visning
torsdag, 14. mai
19:00 – 19:45
Velkommen til visning! Positive tilbakemeldinger fra våre selgere og kjøpere gjør at vi fortsetter med visningspåmelding. Meld deg på ved å trykke "visningspåmelding" i våre boligannonser. Ta gjerne kontakt med megler i forkant av visningen om du har spørsmål. Ring #MeglerSmith på tlf 92012680.
VisningspåmeldingOm boligen
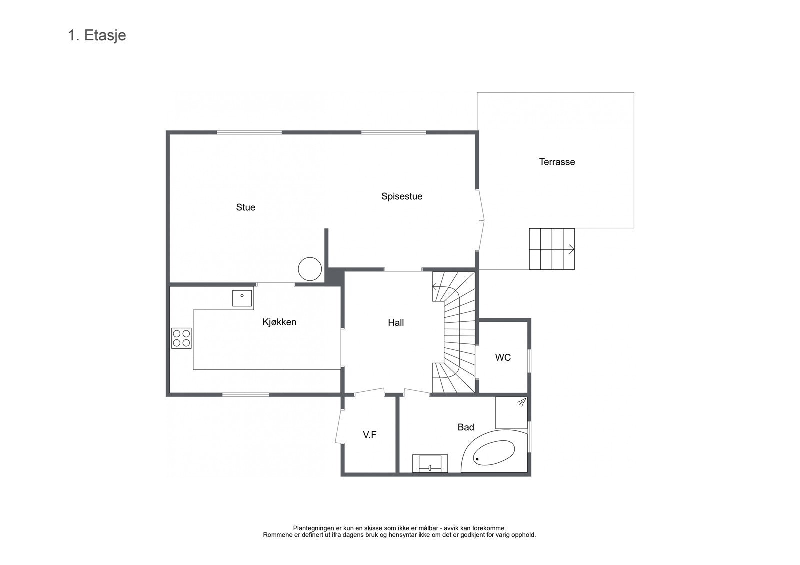
#Romslig enebolig over 2 plan + kjeller
#Fin tomt med usjenerte uteplasser
#Tradisjonell romløsning med 3 soverom i 2 etg.
# 2 store stuer
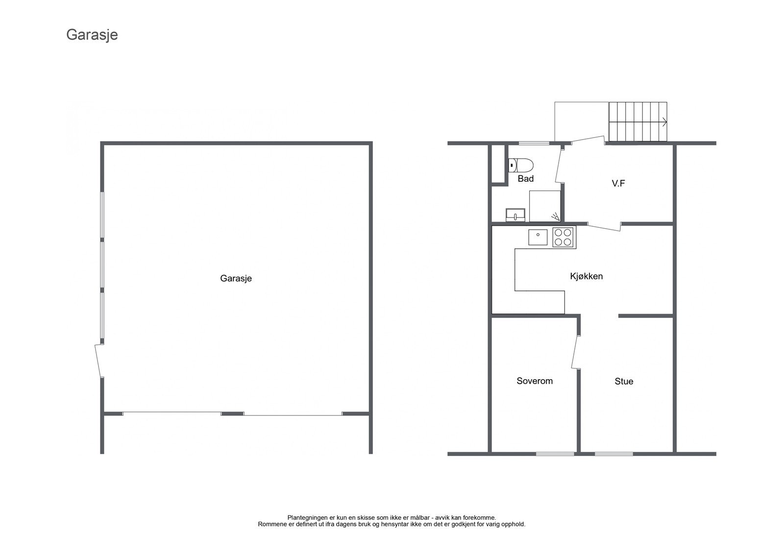
#Dobbel garasje med store porter og god takhøyde
#Utleiedel i garasjen med stue, bad, kjøkken og soverom. Dette er IKKE omsøkt
Heisann, Simen Smith Ringdal fra NORDVIK BOLIG her. Nå har jeg gleden av å presentere tradisjonell enebolig med en god beliggenhet for deg som stadig er på farta. Verningen ligger mellom Sandefjord og Larvik og byr på kort tid mellom byene. I tillegg er det et kanonflott boområde som er både sentralt og landlig. Her er det kort vei til både fotballbane og direkte til skogen. Snarveien går til Tjølling og videre til Viksfjord og sjøen.
Velkommen til en fin enebolig med en gedigen garasje som har mye å by på.
Lev livet på landet
#Fin tomt med usjenerte uteplasser
#Tradisjonell romløsning med 3 soverom i 2 etg.
# 2 store stuer
#Dobbel garasje med store porter og god takhøyde
#Utleiedel i garasjen med stue, bad, kjøkken og soverom. Dette er IKKE omsøkt
Heisann, Simen Smith Ringdal fra NORDVIK BOLIG her. Nå har jeg gleden av å presentere tradisjonell enebolig med en god beliggenhet for deg som stadig er på farta. Verningen ligger mellom Sandefjord og Larvik og byr på kort tid mellom byene. I tillegg er det et kanonflott boområde som er både sentralt og landlig. Her er det kort vei til både fotballbane og direkte til skogen. Snarveien går til Tjølling og videre til Viksfjord og sjøen.
Velkommen til en fin enebolig med en gedigen garasje som har mye å by på.
Lev livet på landet
NB: Knappen for å vise hele beskrivelsen har kun en visuell effekt.
NB: Knappen for å vise hele beskrivelsen har kun en visuell effekt.
Salgsoppgaven beskriver vesentlig og lovpålagt informasjon om eiendommen
Se komplett salgsoppgaveNyttige lenker
Nærområdet
Nordvik Sandefjord
Vi vet hva det er verdt
Annonseinformasjon
| FINN-kode | 449880588 |
|---|---|
| Sist endret | 13. mai 2026 13:56 |
| Referanse | 40-0004/26 |
Annonsene kan være mangelfulle i forhold til lovpålagt opplysningsplikt. Før bindende avtale inngås oppfordres interessenter til å innhente komplett informasjon fra meglerforetaket, selger eller utleier.












































