Bildegalleri

Enebolig med oppussingsbehov og romslig tomt.
Rykene
Enebolig med potensiale/renoveringsbehov sentralt på Rykene - 3 soverom - Få meter til skole, buss og butikk
Prisantydning1 450 000 kr
Nøkkelinfo
- Boligtype
- Enebolig
- Eieform
- Eier (Selveier)
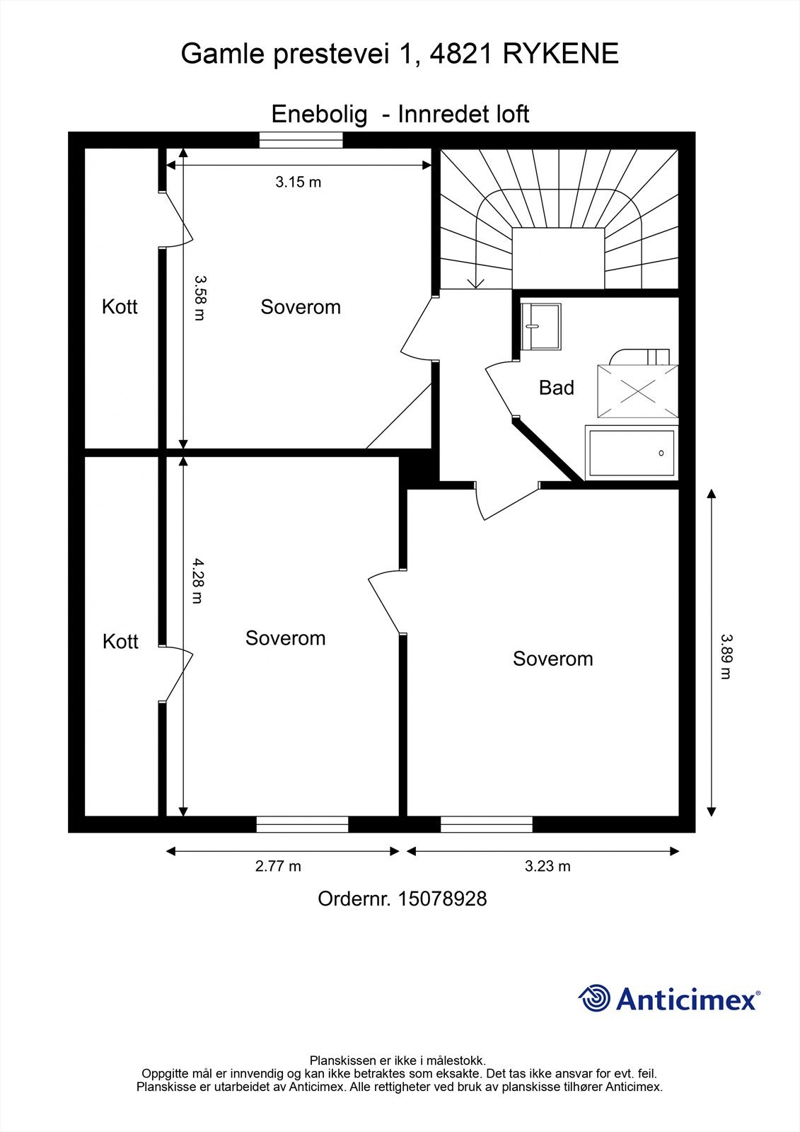
- Soverom
- 3
- Internt bruksareal
- 136 m² (BRA-i)
- Bruksareal
- 136 m²
- Etasje
- 2
- Byggeår
- 1952
- Energimerking
- E - Oransje
- Rom
- 5
- Tomteareal
- 1 458 m² (eiet)
Fasiliteter
Barnevennlig
Bredbåndstilknytning
Hage
Offentlig vann/kloakk
Peis/Ildsted
Rolig
Sentralt
Bademulighet
Fiskemulighet
Turterreng
Visning
mandag, 16. februar
16:00 – 17:00
For å delta på visning, ber vi om at du melder deg på. Da sikrer vi at du får nødvendig informasjon og at det er satt av tilstrekkelig med tid. Kontakt megler dersom annet tidspunkt ønskes. Husk å lese salgsoppgaven før visningen, så du stiller forberedt. NB. Visning utgår dersom det ikke er noen påmeldte.
Ønsker du kun å bli holdt orientert, kan du fra eiendommens hjemmeside få varsel om solgtpris, eller kontakte megler.
VisningspåmeldingOm boligen
Gamle Prestevei 1 er en flott beliggende eiendom med renovering-/oppussingsbehov. Boligen har en sentral beliggenhet og et stort potensiale. Tomten består av tre parseller, hvor den ene er på andre siden av veien.
Eiendommen ligger sentralt i et fredelig og etablert nabolag, med enkel hverdagslogistikk. Her er det gangavstand til barnehage, skole og dagligvare. Området byr også på fine turstier og nærhet til Nidelva med bade- og fiskemuligheter. Med kort vei til E18 når du Grimstad, Stoa og Arendal sentrum på rundt 10-15 minutter.
Høydepunkter:
Eiendommen ligger sentralt i et fredelig og etablert nabolag, med enkel hverdagslogistikk. Her er det gangavstand til barnehage, skole og dagligvare. Området byr også på fine turstier og nærhet til Nidelva med bade- og fiskemuligheter. Med kort vei til E18 når du Grimstad, Stoa og Arendal sentrum på rundt 10-15 minutter.
Høydepunkter:
- Enebolig med stort potensial for den som vil skape sitt eget hjem
- Tak og utvendig kledning skiftet i 2018
- Peisovn i stue
- Stor, uinnredet kjeller med gode lagringsmuligheter
- Barnevennlig og sentral beliggenhet på Rykene
NB: Knappen for å vise hele beskrivelsen har kun en visuell effekt.
NB: Knappen for å vise hele beskrivelsen har kun en visuell effekt.
Salgsoppgaven beskriver vesentlig og lovpålagt informasjon om eiendommen
Se komplett salgsoppgaveNyttige lenker
Nærområdet
Krogsveen Arendal
Verdien av en god megler.
Annonseinformasjon
| FINN-kode | 449856117 |
|---|---|
| Sist endret | 08. feb. 2026 09:39 |
| Referanse | KR47.267 |
Annonsene kan være mangelfulle i forhold til lovpålagt opplysningsplikt. Før bindende avtale inngås oppfordres interessenter til å innhente komplett informasjon fra meglerforetaket, selger eller utleier.




































