Bildegalleri

Velkommen til Grønnliveien 33! Presentert av Lasse Bastrup v. EIE Eiendomsmegling Asker. Foto: Andreas Wiig v. Pholio.
NY PRIS! Stor og pen enebolig i attraktivt og meget barnevennlig område - Gode solforhold - Kort til bhg&skole - Garasje
Prisantydning6 750 000 kr
Nøkkelinfo
- Boligtype
- Enebolig
- Eieform
- Selveier
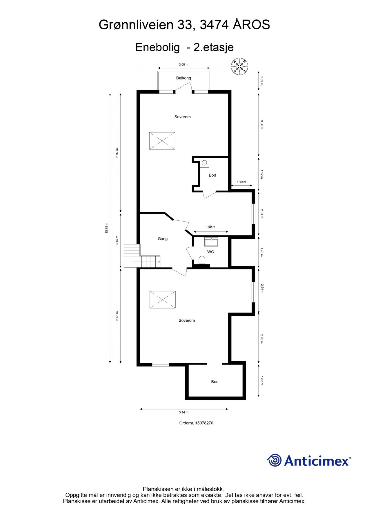
- Soverom
- 3
- Internt bruksareal
- 269 m² (BRA-i)
- Bruksareal
- 386 m²
- Eksternt bruksareal
- 117 m² (BRA-e)
- Balkong/Terrasse
- 34 m² (TBA)
- Byggeår
- 1965
- Energimerking
- F - Oransje
- Tomteareal
- 1 722 m² (eiet)
Fasiliteter
Barnevennlig
Balkong/Terrasse
Garasje/P-plass
Kabel-TV
Fiskemulighet
Offentlig vann/kloakk
Parkett
Peis/Ildsted
Turterreng
Utsikt
Sentralt
Bredbåndstilknytning
Moderne
Rolig
Bademulighet
Lademulighet
Om boligen
Om dere ønsker å bo i landlige og barnevennlige omgivelser er dette boligen for dere! Vi har gleden av å presentere denne flotte eneboligen med stor og solrik tomt, anneks og dobbelgarasje. Det er også gode oppstillingsplasser på eiendommen. Boligen har lyse og luftige rom og mulighet for fire soverom. Det er to bad, to wc og eget vaskerom, en drøm for barnefamilier. Kjøkkenet er nytt og har moderne innredning. Kjøkkenet ligger i åpen løsning mot spisestue som gjør dette til et sosialt rom. Det er oppvarming fra varmepumpe og vannbåren gulvvarme i alle etg. I stuen er det peis og utgang til terrasse og stor hage. Det er også et praktisk og romslig anneks som passer som verksted eller hobbyrom. Det er gode muligheter for å opparbeide hybel i u.etg, men må søke om bruksendring.
Grønnliveien 33 ligger fint til like ovenfor Åros sentrum, en liten bygd langs Oslofjorden. Her er det kort avstand til både sjøen og marka. I Åros er det matbutikk, lege, tannlege og frisør.
Grønnliveien 33 ligger fint til like ovenfor Åros sentrum, en liten bygd langs Oslofjorden. Her er det kort avstand til både sjøen og marka. I Åros er det matbutikk, lege, tannlege og frisør.
NB: Knappen for å vise hele beskrivelsen har kun en visuell effekt.
NB: Knappen for å vise hele beskrivelsen har kun en visuell effekt.
Salgsoppgaven beskriver vesentlig og lovpålagt informasjon om eiendommen
Se komplett salgsoppgaveNyttige lenker
Nærområdet
EIE eiendomsmegling Asker
Annonsene kan være mangelfulle i forhold til lovpålagt opplysningsplikt. Før bindende avtale inngås oppfordres interessenter til å innhente komplett informasjon fra meglerforetaket, selger eller utleier.


















































































