Bildegalleri

Velkommen til Liatoppen 39! - Presentert av eiendomsmegler Anders G. Lindø Foto: Vestbris AS
Romslig familiebolig med nydelig beliggenhet - Dobbel garasje.
Prisantydning2 950 000 kr
Nøkkelinfo
- Boligtype
- Enebolig
- Eieform
- Eier (Selveier)
- Soverom
- 5
- Internt bruksareal
- 240 m² (BRA-i)
- Bruksareal
- 316 m²
- Eksternt bruksareal
- 76 m² (BRA-e)
- Balkong/Terrasse
- 2 m² (TBA)
- Byggeår
- 1996
- Energimerking
- D - Gul
- Tomteareal
- 1 166 m² (eiet)
Fasiliteter
Balkong/Terrasse
Barnevennlig
Garasje/P-plass
Hage
Offentlig vann/kloakk
Parkett
Peis/Ildsted
Rolig
Utsikt
Turterreng
Visning
torsdag, 12. februar
16:15 – 17:00
Ønsker du å delta på visningen ber vi deg melde deg på slik at vi vet at du kommer. Da kan vi bistå alle best mulig og gi deg tiden du trenger på visningen. Kontakt gjerne megler før visning hvis du har spørsmål. Visningen avholdes bare dersom det er påmeldte. Hvis det ikke er oppsatt visningstidspunkt eller tidspunkt ikke passer, kontakt megler.
VisningspåmeldingOm boligen
Romslig og innholdsrik enebolig over tre plan i barnevennlig område!
Liatoppen 39 ligger luftig og fint til med kort vei til skole, barnehage og dagligvarebutikk.
Romslig tomt med gode parkeringsmuligheter for bil samt dobbel garasje m/loft.
Nydelig utsikt fra eiendommen og ut mot Ålfjorden.
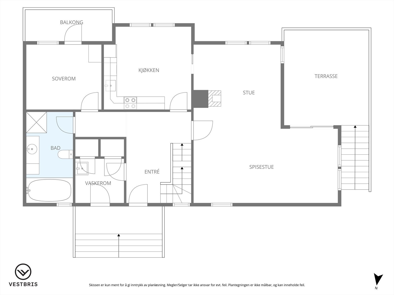
Inneholder følgende rom:
Hovedplan: hall m/trapp, stue, kjøkken, kjølerom, bad, soverom og vaskerom. (BRA-i)
Loftsetasje: loftstue, bad/vaskerom, tre soverom og to kott. (BRA-i)
Underetasje: gang, stue/kjøkken, bad/vaskerom, soverom, bod, to tekniske rom og to stk innerganger. (BRA-i)
Ypperlig familiebolig med masse plass - Velkommen til visning, husk påmelding!
Liatoppen 39 ligger luftig og fint til med kort vei til skole, barnehage og dagligvarebutikk.
Romslig tomt med gode parkeringsmuligheter for bil samt dobbel garasje m/loft.
Nydelig utsikt fra eiendommen og ut mot Ålfjorden.
Inneholder følgende rom:
Hovedplan: hall m/trapp, stue, kjøkken, kjølerom, bad, soverom og vaskerom. (BRA-i)
Loftsetasje: loftstue, bad/vaskerom, tre soverom og to kott. (BRA-i)
Underetasje: gang, stue/kjøkken, bad/vaskerom, soverom, bod, to tekniske rom og to stk innerganger. (BRA-i)
Ypperlig familiebolig med masse plass - Velkommen til visning, husk påmelding!
NB: Knappen for å vise hele beskrivelsen har kun en visuell effekt.
NB: Knappen for å vise hele beskrivelsen har kun en visuell effekt.
Salgsoppgaven beskriver vesentlig og lovpålagt informasjon om eiendommen
Se komplett salgsoppgaveNyttige lenker
Nærområdet
Eiendomsmegler 1 avd Tysvær
En del av Sparebank 1 Sør-Norge
Annonseinformasjon
| FINN-kode | 449842816 |
|---|---|
| Sist endret | 06. feb. 2026 15:51 |
| Referanse | 2503260002 |
Annonsene kan være mangelfulle i forhold til lovpålagt opplysningsplikt. Før bindende avtale inngås oppfordres interessenter til å innhente komplett informasjon fra meglerforetaket, selger eller utleier.






















































