Bildegalleri

Velkommen til en innbydende og lekker leilighet i Nils Amblisveg 12B!
Brumunddal sentrum - Ny og romslig 1-roms hjørneleilighet med solrik terrasse!
Prisantydning1 990 000 kr
Nøkkelinfo
- Boligtype
- Leilighet
- Eieform
- Eier (Selveier)
- Soverom
- 0
- Internt bruksareal
- 38 m² (BRA-i)
- Bruksareal
- 43 m²
- Eksternt bruksareal
- 5 m² (BRA-e)
- Balkong/Terrasse
- 8 m² (TBA)
- Etasje
- 1
- Byggeår
- 2023
- Energimerking
- A - Mørkegrønn
- Rom
- 1
- Tomt
- Eiet
Om boligen
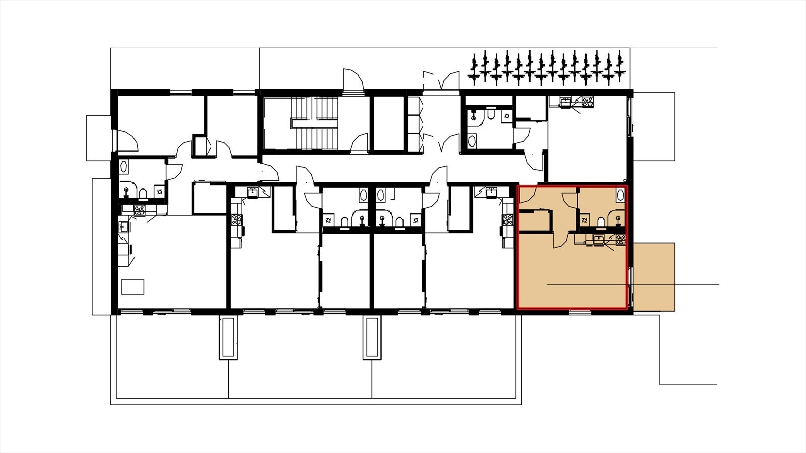
Praktisk og lettstelt hjørneleilighet på bakkeplan!
Velkommen til Husebyenga hages bygg 1, og en lys og tiltalende leilighet med fin beliggenhet i første etasje! Her bor man sentralt med alle sentrums fasiliteter, tog og buss innen kort gangveg. Det er ellers kun 900 meter både til Mjøsa med båthavn, strender og aktivitetstilbud, samt til skogen med et flott tilbud av turstier!
Leiligheten har god planløsning med gang, bod, stort flislagt bad, og romslig stue med åpen løsning til kjøkkenet. God takhøyde gir stue og kjøkken ekstra romfølelse!
Legg merke til:
- Komfortabel oppvarming med vannbåren gulvvarme
- Screens på vindu mot sør
- Hyggelig terrasse på 8 kvm
- Gjesteleilighet for sameiet
- Felles oppvarmet parkeringskjeller
- Bildelingsordning
- Flott hage med pergola, grillplass, benker og hengekøyer!
Ta kontakt for mer informasjon eller visning!
Velkommen til Husebyenga hages bygg 1, og en lys og tiltalende leilighet med fin beliggenhet i første etasje! Her bor man sentralt med alle sentrums fasiliteter, tog og buss innen kort gangveg. Det er ellers kun 900 meter både til Mjøsa med båthavn, strender og aktivitetstilbud, samt til skogen med et flott tilbud av turstier!
Leiligheten har god planløsning med gang, bod, stort flislagt bad, og romslig stue med åpen løsning til kjøkkenet. God takhøyde gir stue og kjøkken ekstra romfølelse!
Legg merke til:
- Komfortabel oppvarming med vannbåren gulvvarme
- Screens på vindu mot sør
- Hyggelig terrasse på 8 kvm
- Gjesteleilighet for sameiet
- Felles oppvarmet parkeringskjeller
- Bildelingsordning
- Flott hage med pergola, grillplass, benker og hengekøyer!
Ta kontakt for mer informasjon eller visning!
NB: Knappen for å vise hele beskrivelsen har kun en visuell effekt.
NB: Knappen for å vise hele beskrivelsen har kun en visuell effekt.
Salgsoppgaven beskriver vesentlig og lovpålagt informasjon om eiendommen
Se komplett salgsoppgaveNyttige lenker
Nærområdet
EiendomsMegler 1 Østlandet - avd. Nybygg
Vi loser deg trygt gjennom hele boligsalget
Annonseinformasjon
| FINN-kode | 449833167 |
|---|---|
| Sist endret | 06. feb. 2026 14:43 |
| Referanse | 6032261006 |
Annonsene kan være mangelfulle i forhold til lovpålagt opplysningsplikt. Før bindende avtale inngås oppfordres interessenter til å innhente komplett informasjon fra meglerforetaket, selger eller utleier.



























