Bildegalleri

Velkommen til Amalie Skrams Veg 80! Foto levert av Efkt ved Siv Lillevik.
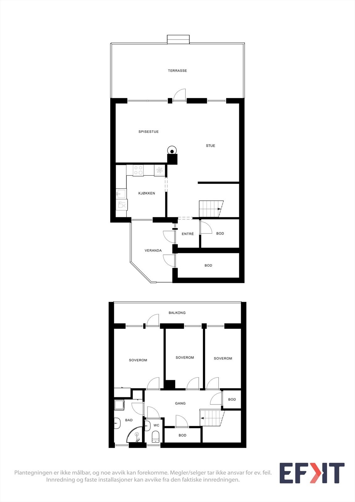
Familievennlig rekkehus m/ 3 soverom over 2 plan | Vestvendt terrasse og balkong | Garasjeplass med elbillader
Prisantydning1 490 000 kr
Nøkkelinfo
- Boligtype
- Leilighet
- Eieform
- Andel
- Soverom
- 3
- Internt bruksareal
- 96 m² (BRA-i)
- Bruksareal
- 115 m²
- Eksternt bruksareal
- 19 m² (BRA-e)
- Balkong/Terrasse
- 36 m² (TBA)
- Etasje
- 2
- Byggeår
- 1988
- Energimerking
- Rom
- 4
- Tomteareal
- 16 740 m² (eiet)
Fasiliteter
Balkong/Terrasse
Barnevennlig
Garasje/P-plass
Hage
Offentlig vann/kloakk
Peis/Ildsted
Rolig
Turterreng
Lademulighet
Visning
onsdag, 29. april
17:00 – 17:30
Ønsker du å delta på visningen ber vi deg melde deg på slik at vi vet at du kommer. Da kan vi bistå alle best mulig og gi deg tiden du trenger på visningen. Ta gjerne kontakt med megler før visning hvis du har noen spørsmål. Velkommen!
VisningspåmeldingOm boligen
Velkommen til Amalie Skrams Veg 80! Et innholdsrikt og familievennlig rekkehus med to vestvendte uteplasser og garasje.
Her bor du i et stille og trygt nabolag på Hanstad, med alt en familie trenger i hverdagen innen gangavstand. Fra stuen kan du gå rett ut på den store terrassen, mens barna leker trygt på fellesarealene utenfor. Med nærhet til skoler, barnehager, marka og Elverum sentrum er dette et ideelt hjem for en aktiv og enkel hverdag. Boligen har en god planløsning med tre soverom.
Høydepunkter:
- Vestvendt terrasse på 21,5 m² og balkong
- Garasjeplass i felles anlegg med elbillader
- Ny luft-til-luft varmepumpe (2024)
- Vinduer og terrassedører fra 2018
- Stille og barnevennlig med lekeplass på tunet
- Gangavstand til skole, barnehage og butikk
Velkommen til visning!
Her bor du i et stille og trygt nabolag på Hanstad, med alt en familie trenger i hverdagen innen gangavstand. Fra stuen kan du gå rett ut på den store terrassen, mens barna leker trygt på fellesarealene utenfor. Med nærhet til skoler, barnehager, marka og Elverum sentrum er dette et ideelt hjem for en aktiv og enkel hverdag. Boligen har en god planløsning med tre soverom.
Høydepunkter:
- Vestvendt terrasse på 21,5 m² og balkong
- Garasjeplass i felles anlegg med elbillader
- Ny luft-til-luft varmepumpe (2024)
- Vinduer og terrassedører fra 2018
- Stille og barnevennlig med lekeplass på tunet
- Gangavstand til skole, barnehage og butikk
Velkommen til visning!
NB: Knappen for å vise hele beskrivelsen har kun en visuell effekt.
NB: Knappen for å vise hele beskrivelsen har kun en visuell effekt.
Salgsoppgaven beskriver vesentlig og lovpålagt informasjon om eiendommen
Se komplett salgsoppgaveNyttige lenker
Nærområdet
EiendomsMegler 1 Elverum
Vi loser deg trygt gjennom hele boligsalget
Annonseinformasjon
| FINN-kode | 449824454 |
|---|---|
| Sist endret | 20. apr. 2026 11:53 |
| Referanse | 6014260169 |
Annonsene kan være mangelfulle i forhold til lovpålagt opplysningsplikt. Før bindende avtale inngås oppfordres interessenter til å innhente komplett informasjon fra meglerforetaket, selger eller utleier.


































