Bildegalleri

Frida Solberg i EIE eiendomsmegling har gleden av å presentere Nabben 10A - en attraktiv vertikaldelt tomannsbolig i et svært familievennlig område på Bjertnestunet i Nes kommune.
Bjertnestunet
Moderne og innbydende halvpart i familievennlig boområde | Dobbel garasje | Innerst i rolig blindgate
Prisantydning3 750 000 kr
Nøkkelinfo
- Boligtype
- Tomannsbolig
- Eieform
- Eier (Selveier)
- Soverom
- 3
- Internt bruksareal
- 118 m² (BRA-i)
- Bruksareal
- 167 m²
- Eksternt bruksareal
- 49 m² (BRA-e)
- Balkong/Terrasse
- 69 m² (TBA)
- Byggeår
- 2019
- Energimerking
- C - Lysegrønn
- Tomteareal
- 1 001 m² (eiet)
Fasiliteter
Barnevennlig
Balkong/Terrasse
Garasje/P-plass
Offentlig vann/kloakk
Parkett
Peis/Ildsted
Turterreng
Sentralt
Moderne
Rolig
Bademulighet
Om boligen
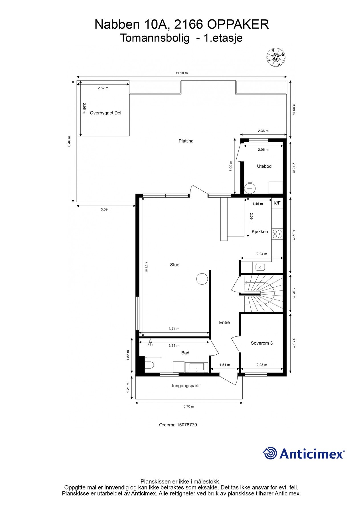
Frida Solberg i EIE eiendomsmegling har gleden av å presentere Nabben 10A - en attraktiv vertikaldelt tomannsbolig i et svært familievennlig område på Bjertnestunet i Nes kommune. Boligen ble bygget i 2019, har dobbel garasje, stort solrikt uteområde og en moderne standard. Herfra har du kun en kort kjøretur til skoler og barnehager, samt en rekke flotte servicetilbud på Årnes og Jessheim.
Boligen strekker seg over to plan med åpen stue og kjøkkenløsning med utgang til terrassen på 69 kvm, 3 romslige soverom med mulighet for 4 og muligheten til å etablere drømmebadet i 2. etg. Boligen har bod under trappen, garderoberom / bod i 2. etg. og garasje for rikelig med lagringsmuligheter.
Rett på utsiden av døren har du flotte turområder langs Glomma. Denne boligen passer ypperlig for deg om ønsker å bo sentralt, men tilbaketrukket og ikke minst en plass som passer for barnefamilien.
Velkommen til en hyggelig visning!
Boligen strekker seg over to plan med åpen stue og kjøkkenløsning med utgang til terrassen på 69 kvm, 3 romslige soverom med mulighet for 4 og muligheten til å etablere drømmebadet i 2. etg. Boligen har bod under trappen, garderoberom / bod i 2. etg. og garasje for rikelig med lagringsmuligheter.
Rett på utsiden av døren har du flotte turområder langs Glomma. Denne boligen passer ypperlig for deg om ønsker å bo sentralt, men tilbaketrukket og ikke minst en plass som passer for barnefamilien.
Velkommen til en hyggelig visning!
NB: Knappen for å vise hele beskrivelsen har kun en visuell effekt.
NB: Knappen for å vise hele beskrivelsen har kun en visuell effekt.
Salgsoppgaven beskriver vesentlig og lovpålagt informasjon om eiendommen
Se komplett salgsoppgaveNyttige lenker
Nærområdet
EIE eiendomsmegling Lørenskog
Annonseinformasjon
| FINN-kode | 449821745 |
|---|---|
| Sist endret | 10. feb. 2026 09:27 |
| Referanse | 32260019 |
Annonsene kan være mangelfulle i forhold til lovpålagt opplysningsplikt. Før bindende avtale inngås oppfordres interessenter til å innhente komplett informasjon fra meglerforetaket, selger eller utleier.





















































