Bildegalleri

Eiendomsmegler Krogsveen v/ Silje Frankplads ønsker velkommen til Frognerveien 5A

Frogner

2-roms eierleilighet fra 2019 i Frogner sentrum | Balkong og garasjeplass | Heis | Trappefritt

Prisantydning3 400 000 kr
Totalpris
3 496 040 kr
Omkostninger
96 040 kr
Felleskost/mnd.
2 047 kr
Fellesformue
2 867 kr
Formuesverdi
720 418 kr

Nøkkelinfo

Boligtype
Leilighet
Eieform
Eier (Selveier)
Soverom
1
Internt bruksareal
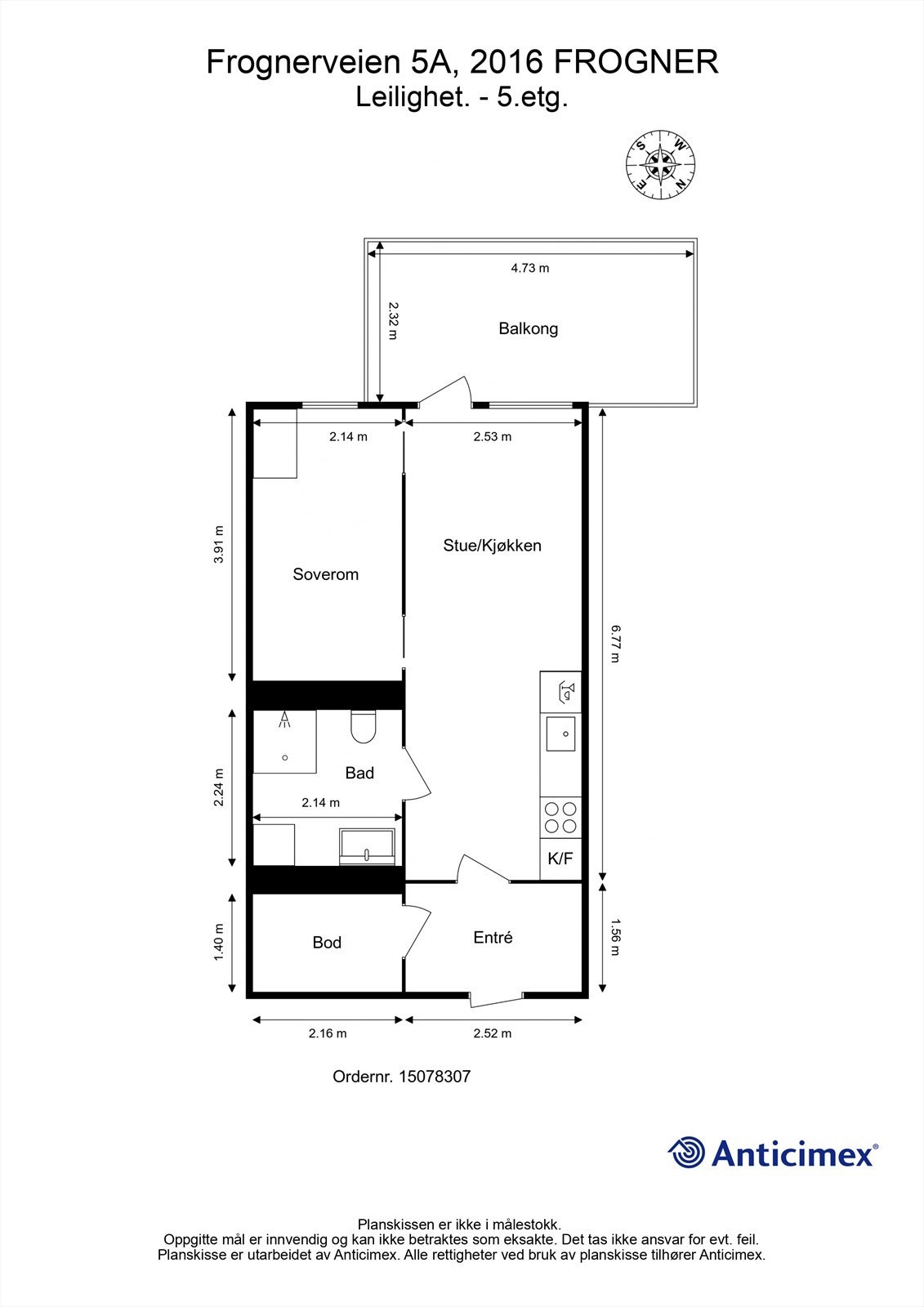
41 m² (BRA-i)
Bruksareal
46 m²
Eksternt bruksareal
5 m² (BRA-e)
Balkong/Terrasse
11 m² (TBA)
Etasje
5
Byggeår
2019
Energimerking
B - Lysegrønn
Rom
2
Tomteareal
5 713 m² (eiet)

Les mer om bruksareal her

Visning

tirsdag, 17. februar
17:00 – 17:45
For å delta på visning, ber vi om at du melder deg på. Da sikrer vi at du får nødvendig informasjon og at det er satt av tilstrekkelig med tid. Kontakt megler dersom annet tidspunkt ønskes. Husk å lese salgsoppgaven før visningen, så du stiller forberedt. NB. Visning utgår dersom det ikke er noen påmeldte. Ønsker du kun å bli holdt orientert, kan du fra eiendommens hjemmeside få varsel om solgtpris, eller kontakte megler.
Visningspåmelding

Om boligen

Eiendomsmegler Krogsveen v/ Silje Frankplads ønsker velkommen til Frognerveien 5A

Dette er en lys og moderne 2-roms eierleilighet beliggende i 5. etasje med trappefri adkomst og heis. Leiligheten disponerer parkeringsplass i felles garasjeanlegg med elbillader, samt gode lagringsmuligheter i kjellerbod. Fra stuen er det utgang til en romslig sørvestvendt balkong på med gode solforhold. Eiendommen har en attraktiv beliggenhet med kort vei til offentlig kommunikasjon.

Kort om eiendommen:
  • Parkeringsplass med el.bil lader i felles garasjeanlegg
  • Balkong
  • Kort vei til offentlig kommunikasjon
  • Gode lagringsmuligheter i kjellerbod
  • Trappefri adkomst med heis

    Velkommen på visning. Velkommen hjem!

Salgsoppgaven beskriver vesentlig og lovpålagt informasjon om eiendommen

Se komplett salgsoppgave

Nærområdet

Annonseinformasjon

FINN-kode449819564
Sist endret11. feb. 2026 08:28
ReferanseKR59.263

Rapporter annonse

Annonsene kan være mangelfulle i forhold til lovpålagt opplysningsplikt. Før bindende avtale inngås oppfordres interessenter til å innhente komplett informasjon fra meglerforetaket, selger eller utleier.