Bildegalleri

Innseilingen til Fredrikstad med Huthholmen i bakgrunn.
Kråkerøy
Ny pris! | Attraktiv endeleilighet ved elva på Kråkerøy | Stor vestvendt terrasse |egen Båtplass | 2 p-plasser
Prisantydning8 250 000 kr
Nøkkelinfo
- Boligtype
- Leilighet
- Eieform
- Selveier
- Soverom
- 2
- Internt bruksareal
- 105 m² (BRA-i)
- Bruksareal
- 111 m²
- Eksternt bruksareal
- 6 m² (BRA-e)
- Balkong/Terrasse
- 103 m² (TBA)
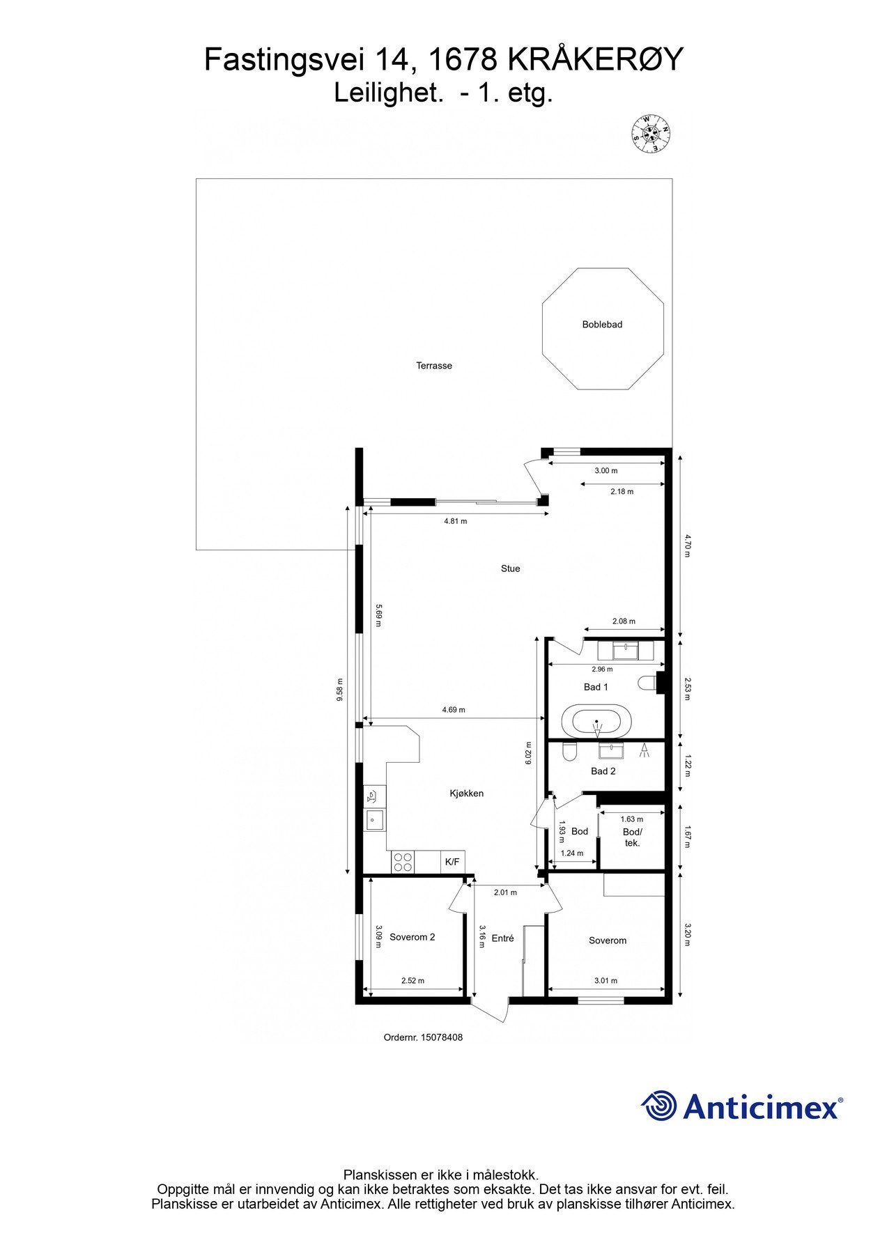
- Etasje
- 1
- Byggeår
- 2007
- Energimerking
- C - Lysegrønn
- Rom
- 3
- Tomteareal
- 7 278 m² (eiet)
Fasiliteter
Barnevennlig
Balkong/Terrasse
Garasje/P-plass
Heis
Turterreng
Utsikt
Moderne
Rolig
Bademulighet
Lademulighet
Om boligen
Denne moderne perlen av en selveierleilighet er beliggende på attraktive Fastingsvei på Kråkerøy. Leiligheten ligger i enden av byggets 1. etasje og har en funksjonell planløsning med to soverom, to bad, stue, tv-stue (tidligere soverom, som kan settes tilbake slik at leiligheten får 3 soverom) og kjøkken, samt utgang til en vestvendt terrasse på hele 103 m2 med Jacuzzi. Leiligheten har vannbåren gulvvarme i alle rom, felles varmtvann og gode lysforhold, i tillegg til motoriserte screens og markise. Det medfølger bod, to biloppstillingsplasser med elbillader (garasje og carport) samt egen båtplass på felles brygge. Beliggenheten er idyllisk ned mot elva, med flotte turområder og kort vei til Fredrikstad sentrum.
NB: Knappen for å vise hele beskrivelsen har kun en visuell effekt.
NB: Knappen for å vise hele beskrivelsen har kun en visuell effekt.
Salgsoppgaven beskriver vesentlig og lovpålagt informasjon om eiendommen
Se komplett salgsoppgaveNærområdet
STAVLUND AS
Vi kan også selge din bolig
Annonseinformasjon
| FINN-kode | 449813571 |
|---|---|
| Sist endret | 27. mai 2026 13:52 |
| Referanse | 192260001 |
Annonsene kan være mangelfulle i forhold til lovpålagt opplysningsplikt. Før bindende avtale inngås oppfordres interessenter til å innhente komplett informasjon fra meglerforetaket, selger eller utleier.












































