Bildegalleri

Velkommen til Vestad og Museumsvegen 9A!
Lys, pen og lettstelt halvpart av tomannsbolig på bakkeplan med meget sentral beliggenhet ved Glomma! Garasje og boder.
Prisantydning2 090 000 kr
Nøkkelinfo
- Boligtype
- Tomannsbolig
- Eieform
- Eier (Selveier)
- Soverom
- 2
- Internt bruksareal
- 77 m² (BRA-i)
- Bruksareal
- 125 m²
- Eksternt bruksareal
- 48 m² (BRA-e)
- Balkong/Terrasse
- 7 m² (TBA)
- Etasje
- 1
- Byggeår
- 1964
- Energimerking
- E - Oransje
- Rom
- 3
- Tomteareal
- 1 122 m² (eiet)
Fasiliteter
Balkong/Terrasse
Barnevennlig
Garasje/P-plass
Hage
Offentlig vann/kloakk
Peis/Ildsted
Rolig
Sentralt
Utsikt
Bademulighet
Fiskemulighet
Turterreng
Visning
mandag, 16. februar
19:00 – 19:30
Ved annonsert visning er det viktig at du melder deg på visningen ved å bruke visningspåmeldingsknappen eller kontakter megler. Annonserte visninger hvor det ikke er noen påmeldte innen kl. 16.00 dagen før visningsdagen vil ikke bli avholdt.
For visninger utover dette, ta direkte kontakt med megler.
VisningspåmeldingOm boligen
Velkommen til Museumsvegen 9A!
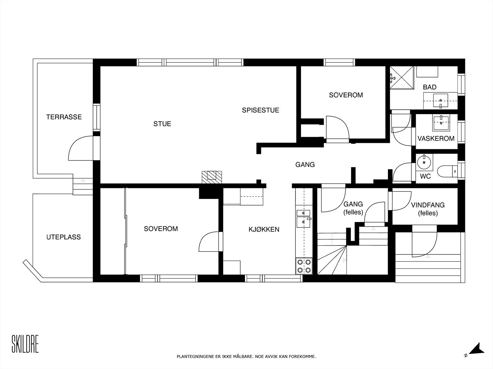
En pen og sjarmerende leilighet beliggende i 1.etasje av en horisontaldelt tomannsbolig. Leiligheten har et stort og hyggelig oppholdsrom, 2 soverom, bad, vaskerom og toalettrom. Kjeller med blant annet 4 boder. Utgang til overbygget balkong fra stuen med adkomst videre til hellebelagt uteplass med levegg. Leiligheten disponerer en garasje på ca. 30 kvm med 2 boder.
Leiligheten er kun en kort spasertur unna dagligvarebutikker, sentrumsfasiliteter, Terningen Arena, Skysstasjonen og flere friluftsområder. Her bor du med alt du trenger i hverdagen innenfor en kort radius. Glomma renner like nedenfor og det er ikke lange veien bort til det flotte museumsområde på Glomdalsmuseet og Skogmuseet. Det er godt tilrettelagt med gang- og sykkelstier i området.
En pen og sjarmerende leilighet beliggende i 1.etasje av en horisontaldelt tomannsbolig. Leiligheten har et stort og hyggelig oppholdsrom, 2 soverom, bad, vaskerom og toalettrom. Kjeller med blant annet 4 boder. Utgang til overbygget balkong fra stuen med adkomst videre til hellebelagt uteplass med levegg. Leiligheten disponerer en garasje på ca. 30 kvm med 2 boder.
Leiligheten er kun en kort spasertur unna dagligvarebutikker, sentrumsfasiliteter, Terningen Arena, Skysstasjonen og flere friluftsområder. Her bor du med alt du trenger i hverdagen innenfor en kort radius. Glomma renner like nedenfor og det er ikke lange veien bort til det flotte museumsområde på Glomdalsmuseet og Skogmuseet. Det er godt tilrettelagt med gang- og sykkelstier i området.
NB: Knappen for å vise hele beskrivelsen har kun en visuell effekt.
NB: Knappen for å vise hele beskrivelsen har kun en visuell effekt.
Salgsoppgaven beskriver vesentlig og lovpålagt informasjon om eiendommen
Se komplett salgsoppgaveNærområdet
Aktiv Innlandet
Annonseinformasjon
| FINN-kode | 449813246 |
|---|---|
| Sist endret | 09. feb. 2026 07:42 |
| Referanse | 1211260018 |
Annonsene kan være mangelfulle i forhold til lovpålagt opplysningsplikt. Før bindende avtale inngås oppfordres interessenter til å innhente komplett informasjon fra meglerforetaket, selger eller utleier.

























