Bildegalleri

Romslig vertikaldelt tomannsbolig over 2 etasjer
Vågsbygd/Åsane
Pen og innholdsrik vertikaldelt tomannsbolig i Vågsbygd. Solrik hage. Garasje. Barnevennlig. Velkommen!
Prisantydning5 700 000 kr
Nøkkelinfo
- Boligtype
- Tomannsbolig
- Eieform
- Eier (Selveier)
- Soverom
- 4
- Internt bruksareal
- 209 m² (BRA-i)
- Bruksareal
- 238 m²
- Eksternt bruksareal
- 29 m² (BRA-e)
- Balkong/Terrasse
- 61 m² (TBA)
- Etasje
- 2
- Byggeår
- 2002
- Energimerking
- C - Lysegrønn
- Rom
- 7
- Tomteareal
- 446 m² (eiet)
Fasiliteter
Balkong/Terrasse
Barnevennlig
Garasje/P-plass
Hage
Parkett
Peis/Ildsted
Rolig
Sentralt
Utsikt
Om boligen
Eiendomsmegler Norge ved Henrik Lossius ønsker deg velkommen til Hyllebakken 36B!
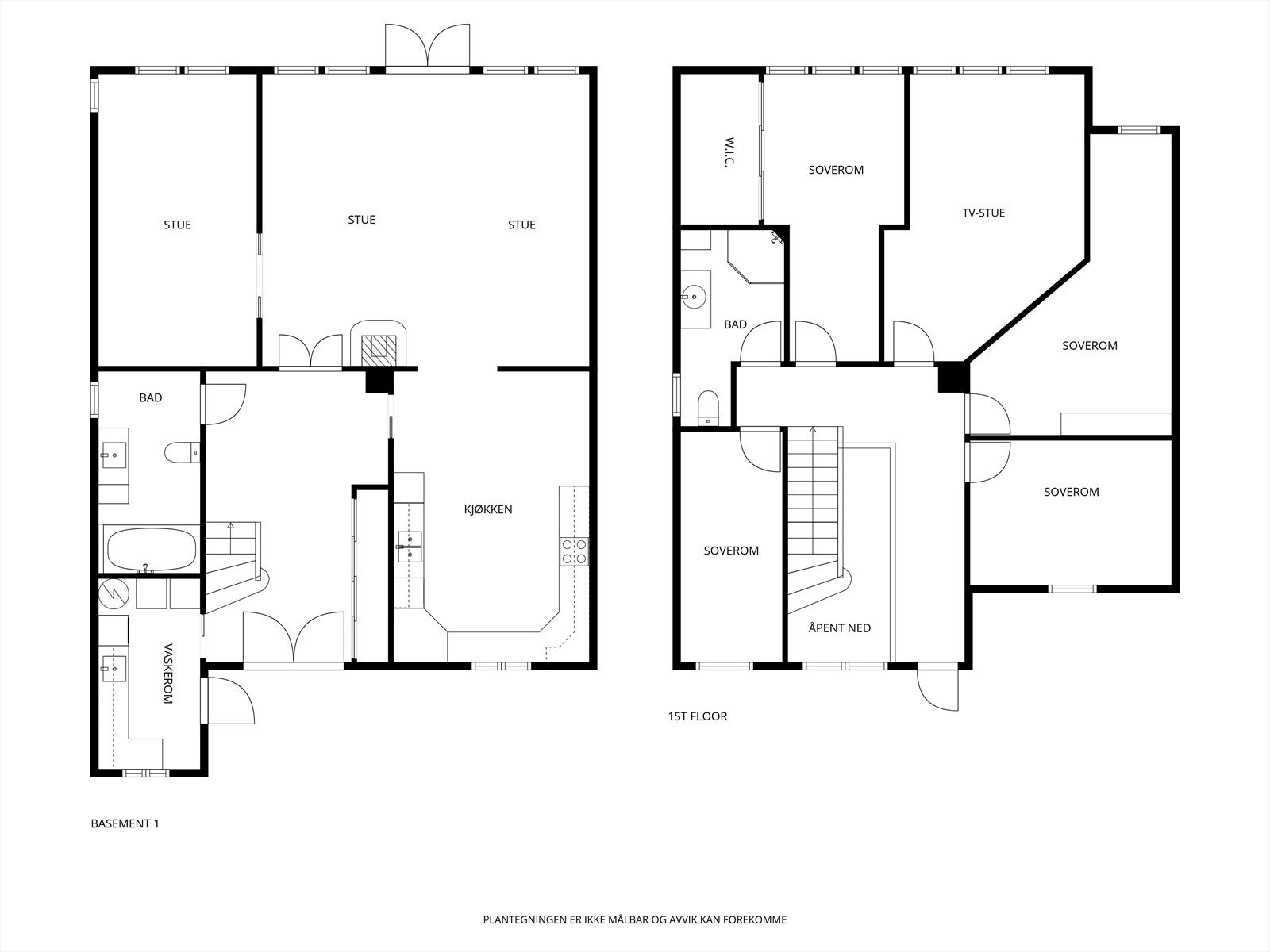
Dette er en pen og innholdsrik vertikaldelt tomannsbolig beliggende i et barnevennlig område i Vågsbygd. Boligen har en gjennomgående god standard og går over 2 etasjer.
Du parkerer bilen i garasjen(elbillader). Videre inn til et pent opparbeidet inngangsparti. Romslig gang/trappehall med garderobeskap til oppbevaring. Videre inn til lys og fin stue med god plass til sofagruppe og spisebord. Utgang til solrik hage/platting. Her kan deilige sommerdager nytes. Tv-stue i 1.etg og en i 2.etg. med plass til sofagruppe. Stort kjøkken med mye skap- og benkeplass. 2 flislagte bad, vaskerom og 4 gode soverom med plass til dobbeltseng.
Er du på utkikk etter en innholdsrik bolig du kan flytte rett inn i?
Velkommen!
Dette er en pen og innholdsrik vertikaldelt tomannsbolig beliggende i et barnevennlig område i Vågsbygd. Boligen har en gjennomgående god standard og går over 2 etasjer.
Du parkerer bilen i garasjen(elbillader). Videre inn til et pent opparbeidet inngangsparti. Romslig gang/trappehall med garderobeskap til oppbevaring. Videre inn til lys og fin stue med god plass til sofagruppe og spisebord. Utgang til solrik hage/platting. Her kan deilige sommerdager nytes. Tv-stue i 1.etg og en i 2.etg. med plass til sofagruppe. Stort kjøkken med mye skap- og benkeplass. 2 flislagte bad, vaskerom og 4 gode soverom med plass til dobbeltseng.
Er du på utkikk etter en innholdsrik bolig du kan flytte rett inn i?
Velkommen!
NB: Knappen for å vise hele beskrivelsen har kun en visuell effekt.
NB: Knappen for å vise hele beskrivelsen har kun en visuell effekt.
Salgsoppgaven beskriver vesentlig og lovpålagt informasjon om eiendommen
Se komplett salgsoppgaveNyttige lenker
Nærområdet
Eiendomsmegler Norge Kristiansand
Best der du bor
Annonseinformasjon
| FINN-kode | 449809907 |
|---|---|
| Sist endret | 06. feb. 2026 13:32 |
| Referanse | 50260039 |
Annonsene kan være mangelfulle i forhold til lovpålagt opplysningsplikt. Før bindende avtale inngås oppfordres interessenter til å innhente komplett informasjon fra meglerforetaket, selger eller utleier.













































