Bildegalleri

Velkommen til Jutulveien 35. En flott leilighet over 2 plan med utbyggingsmulighet og eksklusiv bruksrett til en stor hage.
Tåsen Hageby
Lys & vakker 3(4) roms leilighet over 2 plan med utbyggingsmulighet - Stor og solrik hage & veranda - IN ordning vedtatt
Prisantydning11 450 000 kr
Nøkkelinfo
- Boligtype
- Leilighet
- Eieform
- Andel
- Soverom
- 3
- Internt bruksareal
- 82 m² (BRA-i)
- Bruksareal
- 84 m²
- Eksternt bruksareal
- 2 m² (BRA-e)
- Balkong/Terrasse
- 20 m² (TBA)
- Etasje
- 2
- Byggeår
- 1920
- Energimerking
- G - Rød
- Rom
- 4
- Tomteareal
- 14 792 m² (eiet)
Fasiliteter
Balkong/Terrasse
Barnevennlig
Bredbåndstilknytning
Fellesvaskeri
Hage
Kjæledyr tillatt
Kabel-TV
Offentlig vann/kloakk
Parkett
Peis/Ildsted
Rolig
Sentralt
Utvidelsesmuligheter
Turterreng
Visning
torsdag, 12. februar
17:00 – 18:00
søndag, 15. februar
12:00 – 12:45
Alle våre visninger har påmelding. På denne måten sikrer vi at megler har god oversikt og tid til å imøtekomme alle interessenter. Meld deg på visning ved å trykke på lenken visningspåmelding.
VisningspåmeldingOm boligen
Nordvik Ullevål v/ Stian Pedersen har gleden av å presentere enda en leilighet i populære Tåsen Hageby!
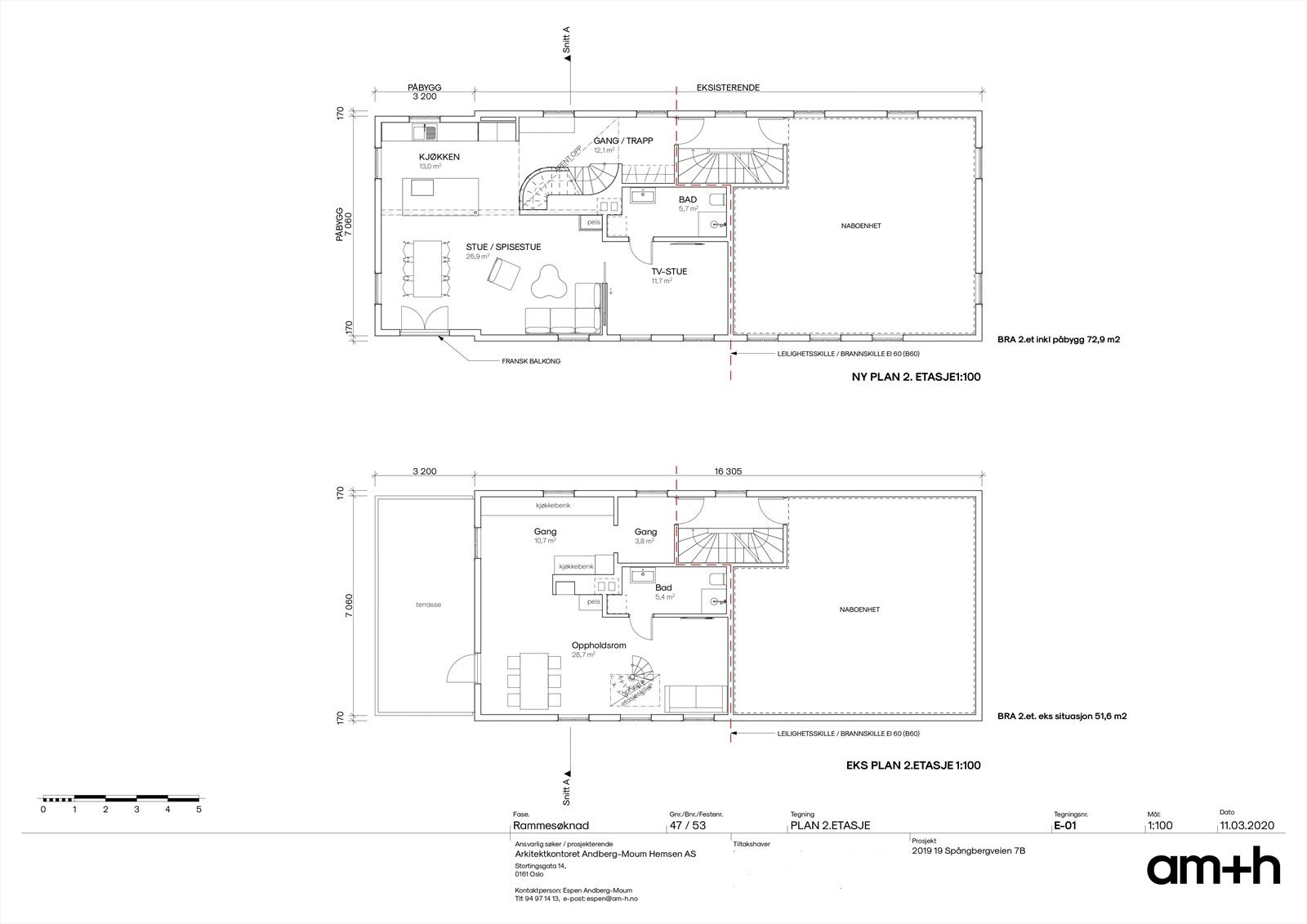
Jutulveien 35 er en flott leilighet og innehar en attraktiv beliggenhet. Den har også utbyggingsmuligheter, der du kan bygge inn terrassen gjennom 2 etasjen og loftet. Basert på tegning hos nabo som utbygget sin så økte boarealet med ca 38 kvm fordelt på begge etasjene. Nytt potensielt areal er da ca 120 kvm.
Hvis du ikke har planer om å utbygge så er det fortsatt en innholdsrik og flott leilighet. Gjennomgående og luftig stue med delvis åpen løsning til kjøkkenet. Utgang fra kjøkken til en stor veranda på 20 kvm. Egen stor hage som er perfekt for barnefamilie.
Her bor du i et sjarmerende og familievennlig nabolag med kort vei til skoler, barnehager og flotte grøntområder.
Jutulveien 35 er en flott leilighet og innehar en attraktiv beliggenhet. Den har også utbyggingsmuligheter, der du kan bygge inn terrassen gjennom 2 etasjen og loftet. Basert på tegning hos nabo som utbygget sin så økte boarealet med ca 38 kvm fordelt på begge etasjene. Nytt potensielt areal er da ca 120 kvm.
Hvis du ikke har planer om å utbygge så er det fortsatt en innholdsrik og flott leilighet. Gjennomgående og luftig stue med delvis åpen løsning til kjøkkenet. Utgang fra kjøkken til en stor veranda på 20 kvm. Egen stor hage som er perfekt for barnefamilie.
Her bor du i et sjarmerende og familievennlig nabolag med kort vei til skoler, barnehager og flotte grøntområder.
NB: Knappen for å vise hele beskrivelsen har kun en visuell effekt.
NB: Knappen for å vise hele beskrivelsen har kun en visuell effekt.
Salgsoppgaven beskriver vesentlig og lovpålagt informasjon om eiendommen
Se komplett salgsoppgaveNyttige lenker
Nærområdet
Nordvik Ullevål
Annonseinformasjon
| FINN-kode | 449804742 |
|---|---|
| Sist endret | 11. feb. 2026 11:26 |
| Referanse | 23-0039/26 |
Annonsene kan være mangelfulle i forhold til lovpålagt opplysningsplikt. Før bindende avtale inngås oppfordres interessenter til å innhente komplett informasjon fra meglerforetaket, selger eller utleier.












































