Bildegalleri

Christian Halvorsen v/EIE eiendomsmegling har gleden av å presentere Elveveien 26! Foto: Fredrik Hansson
Fjellhamar
Moderne 4-roms hjørneleilighet fra 2020 | 3 soverom | 3 p-plasser m/2 elbilladere | Balkong | Familievennlig beliggenhet
Prisantydning6 690 000 kr
Nøkkelinfo
- Boligtype
- Leilighet
- Eieform
- Eier (Selveier)
- Soverom
- 3
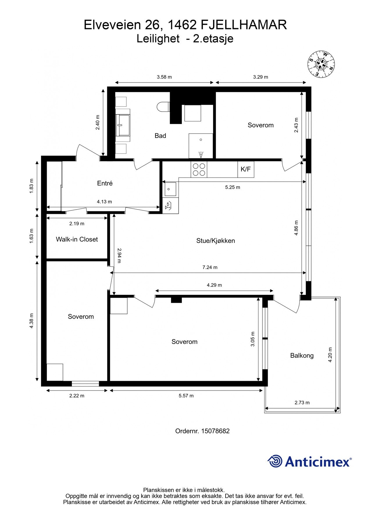
- Internt bruksareal
- 89 m² (BRA-i)
- Bruksareal
- 94 m²
- Eksternt bruksareal
- 5 m² (BRA-e)
- Balkong/Terrasse
- 11 m² (TBA)
- Etasje
- 2
- Byggeår
- 2020
- Energimerking
- B - Mørkegrønn
- Rom
- 4
- Tomteareal
- 3 854 m² (eiet)
Fasiliteter
Balansert ventilasjon
Balkong/Terrasse
Barnevennlig
Bredbåndstilknytning
Garasje/P-plass
Heis
Kabel-TV
Lademulighet
Moderne
Offentlig vann/kloakk
Parkett
Rolig
Sentralt
Turterreng
Visning
tirsdag, 24. februar
17:00 – 18:00
Om boligen
Christian Halvorsen v/EIE eiendomsmegling har gleden av å presentere Elveveien 26!
En moderne og stilren leilighet fra 2020 som byr på en smart planløsning, gode kvaliteter og en beliggenhet som passer perfekt for både barnefamilier og par. Her bor du i grønne og rolige omgivelser, samtidig som du har kort vei til alt du trenger i hverdagen. Fra stuen er det direkte utgang til en romslig balkong på ca. 11 m². Leiligheten har ingen gjenboere og vender mot et stille område med fin utsikt mot Haneborgåsen. Til boligen medfølger tre parkeringsplasser, hvorav to er utstyrt med elbillader.
Høydepunkter:
En moderne og stilren leilighet fra 2020 som byr på en smart planløsning, gode kvaliteter og en beliggenhet som passer perfekt for både barnefamilier og par. Her bor du i grønne og rolige omgivelser, samtidig som du har kort vei til alt du trenger i hverdagen. Fra stuen er det direkte utgang til en romslig balkong på ca. 11 m². Leiligheten har ingen gjenboere og vender mot et stille område med fin utsikt mot Haneborgåsen. Til boligen medfølger tre parkeringsplasser, hvorav to er utstyrt med elbillader.
Høydepunkter:
- Moderne hjørneleilighet med høy standard fra 2020
- Lys stue med utgang til balkong på ca. 11 m²
- 3 romslige soverom
- Vannbåren gulvvarme
- Delikat, helfliset baderom
- 3 parkeringsplasser, to med elbillader
- Easy living, ingen terskler
- Barnevennlig og attraktiv beliggenhet
- Flott felles takterrasse
NB: Knappen for å vise hele beskrivelsen har kun en visuell effekt.
NB: Knappen for å vise hele beskrivelsen har kun en visuell effekt.
Salgsoppgaven beskriver vesentlig og lovpålagt informasjon om eiendommen
Se komplett salgsoppgaveNyttige lenker
Nærområdet
EIE eiendomsmegling Lørenskog
Annonseinformasjon
| FINN-kode | 449793324 |
|---|---|
| Sist endret | 15. feb. 2026 14:02 |
| Referanse | 32260014 |
Annonsene kan være mangelfulle i forhold til lovpålagt opplysningsplikt. Før bindende avtale inngås oppfordres interessenter til å innhente komplett informasjon fra meglerforetaket, selger eller utleier.




































