Bildegalleri

Eiendomsmegler Norge v/ Johan R. Elieson har gleden av å ønske velkommen til visning av Kjos Ringvei 1B!
Vågsbygd/ Åsane
Romslig 4-roms topp-/hjørneleilighet med balkong, nydelig sjøutsikt og p.plass i kjeller! Heis. Attraktiv beliggenhet
Prisantydning2 990 000 kr
Nøkkelinfo
- Boligtype
- Leilighet
- Eieform
- Andel
- Soverom
- 3
- Internt bruksareal
- 83 m² (BRA-i)
- Bruksareal
- 83 m²
- Balkong/Terrasse
- 12 m² (TBA)
- Etasje
- 6
- Byggeår
- 1979
- Energimerking
- F - Oransje
- Rom
- 4
- Tomt
- Eiet
Fasiliteter
Balkong/Terrasse
Barnevennlig
Garasje/P-plass
Heis
Sentralt
Utsikt
Vaktmester-/vektertjeneste
Turterreng
Om boligen
Velkommen til visning av en romslig 4-roms andelsleilighet i Kjos Ringvei 1B! Fra stuen er det utgang til en stor, usjenert og solrik balkong med sjøutsikt. Det medfølger parkeringsplass i kjeller(nabobygg). Heis i bygget.
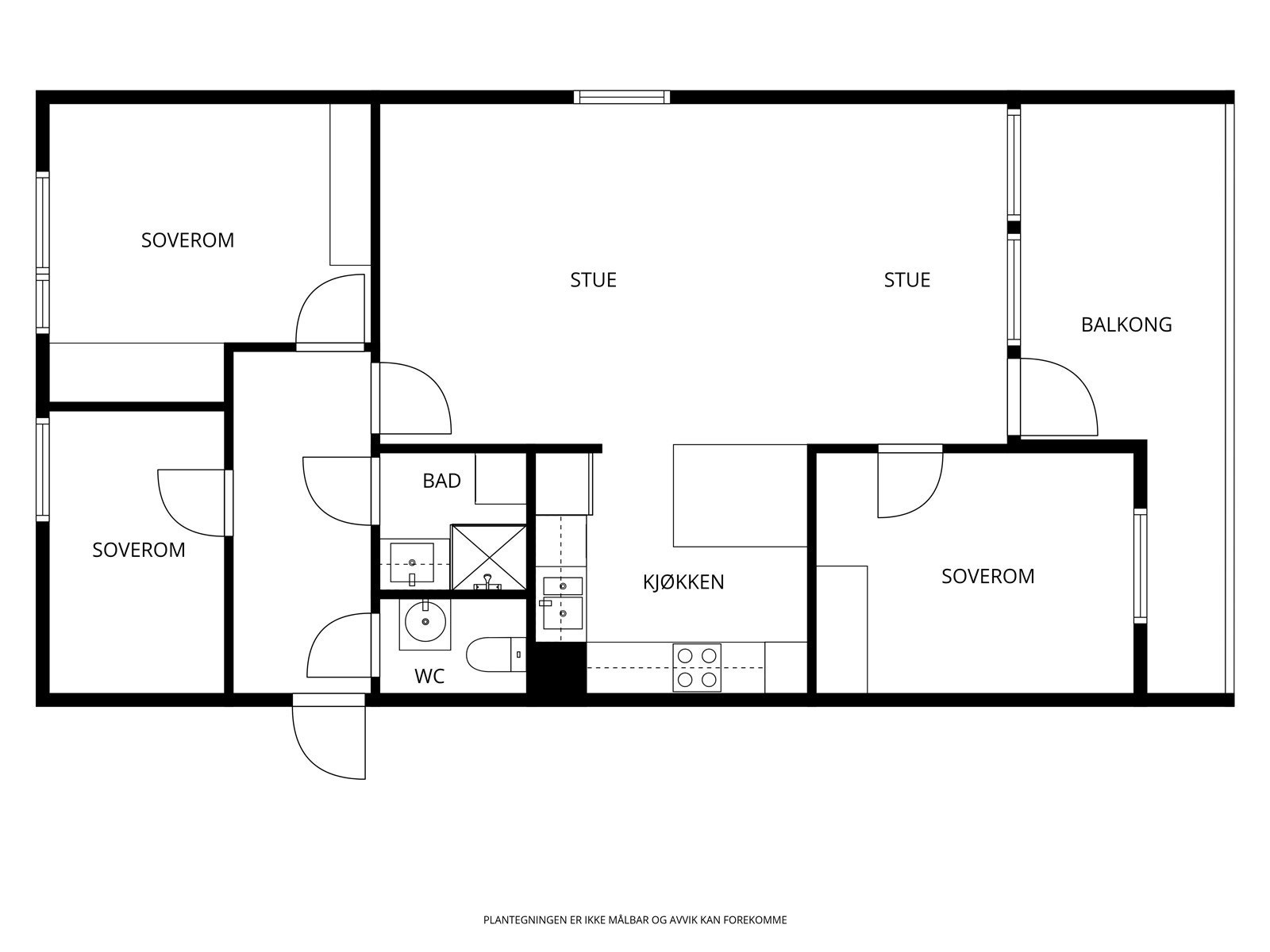
Leiligheten ligger på hjørnet i byggets øverste etasje (6.etg) og inneholder følgende planløsning:
Entre, gang, stor stue med åpen kjøkkenløsning, tre soverom, baderom og WC.
Det medfølger en bod samt skap i kjeller. Fra leiligheten er det en nydelig utsikt!
Flytter du inn hit vil du ha det meste i nærheten. Nærmeste dagligvarebutikk ligger i nabobygget (Spar Åsane), samt at du har gang- og sykkelavstand til Vågsbygd senter. Det går også hyppige bussavganger like ved.
Velkommen til visning!
Leiligheten ligger på hjørnet i byggets øverste etasje (6.etg) og inneholder følgende planløsning:
Entre, gang, stor stue med åpen kjøkkenløsning, tre soverom, baderom og WC.
Det medfølger en bod samt skap i kjeller. Fra leiligheten er det en nydelig utsikt!
Flytter du inn hit vil du ha det meste i nærheten. Nærmeste dagligvarebutikk ligger i nabobygget (Spar Åsane), samt at du har gang- og sykkelavstand til Vågsbygd senter. Det går også hyppige bussavganger like ved.
Velkommen til visning!
NB: Knappen for å vise hele beskrivelsen har kun en visuell effekt.
NB: Knappen for å vise hele beskrivelsen har kun en visuell effekt.
Salgsoppgaven beskriver vesentlig og lovpålagt informasjon om eiendommen
Se komplett salgsoppgaveNyttige lenker
Nærområdet
Eiendomsmegler Norge Kristiansand
Best der du bor
Annonseinformasjon
| FINN-kode | 449786677 |
|---|---|
| Sist endret | 06. feb. 2026 11:20 |
| Referanse | 50260035 |
Annonsene kan være mangelfulle i forhold til lovpålagt opplysningsplikt. Før bindende avtale inngås oppfordres interessenter til å innhente komplett informasjon fra meglerforetaket, selger eller utleier.






























