Bildegalleri

Aktiv Eiendomsmegling v/ Maria A. Klinge ønsker velkommen til Jegerstien 5A. Foto: André Tomas Ormset-Paredes
Vertikaldelt tomannsbolig med garasje og moderne fasiliteter, beliggende nær skole, barnehage og friluftsområder.
Prisantydning3 490 000 kr
Nøkkelinfo
- Boligtype
- Tomannsbolig
- Eieform
- Eier (Selveier)
- Soverom
- 4
- Internt bruksareal
- 124 m² (BRA-i)
- Bruksareal
- 146 m²
- Eksternt bruksareal
- 22 m² (BRA-e)
- Balkong/Terrasse
- 29 m² (TBA)
- Byggeår
- 2010
- Energimerking
- C - Gul
- Rom
- 5
- Tomteareal
- 461 m² (eiet)
Fasiliteter
Balkong/Terrasse
Barnevennlig
Garasje/P-plass
Hage
Offentlig vann/kloakk
Peis/Ildsted
Rolig
Turterreng
Visning
torsdag, 12. februar
16:30 – 17:30
Ved annonsert visning er det viktig at du melder deg på visningen ved å bruke visningspåmeldingsknappen eller kontakter megler. Annonserte visninger hvor det ikke er noen påmeldte innen kl. 16.00 dagen før visningsdagen vil ikke bli avholdt.
For visninger utover dette, ta direkte kontakt med megler.
VisningspåmeldingOm boligen
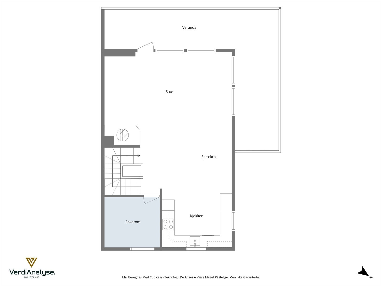
Aktiv Eiendomsmegling v/ Maria A. Klinge ønsker velkommen til en moderne vertikaldelt tomannsbolig på Storbakken i Frei, Kristiansund. Denne boligen ligger i et attraktivt område med kort vei til skole, barnehage, butikk, småbåthavn og friluftsområder. Området byr på gode solforhold og enkel adkomst via offentlig vei, perfekt for familier som ønsker nærhet til både natur og nødvendige fasiliteter.
Boligen er oppført i 2010 og har et bruksareal på 146 m² fordelt på to etasjer. Første etasje inneholder entré, bad, vaskerom, tre soverom og bod, mens andre etasje har stue/kjøkken og et ekstra soverom. Uteplassen består av en markterrasse og veranda med tilkomst fra stue og kjøkken. Det er parkering i garasje og på egen tomt. Boligen har normal til god standard med moderne tekniske installasjo
Boligen er oppført i 2010 og har et bruksareal på 146 m² fordelt på to etasjer. Første etasje inneholder entré, bad, vaskerom, tre soverom og bod, mens andre etasje har stue/kjøkken og et ekstra soverom. Uteplassen består av en markterrasse og veranda med tilkomst fra stue og kjøkken. Det er parkering i garasje og på egen tomt. Boligen har normal til god standard med moderne tekniske installasjo
NB: Knappen for å vise hele beskrivelsen har kun en visuell effekt.
NB: Knappen for å vise hele beskrivelsen har kun en visuell effekt.
Salgsoppgaven beskriver vesentlig og lovpålagt informasjon om eiendommen
Se komplett salgsoppgaveNærområdet
Aktiv Kristiansund
Annonseinformasjon
| FINN-kode | 449785605 |
|---|---|
| Sist endret | 06. feb. 2026 13:01 |
| Referanse | 1601260010 |
Annonsene kan være mangelfulle i forhold til lovpålagt opplysningsplikt. Før bindende avtale inngås oppfordres interessenter til å innhente komplett informasjon fra meglerforetaket, selger eller utleier.































